Version: 8.24.0Navigation ĂĽberspringen
10 €
540 m² BĂĽrofläche  â€˘  teilbar ab 270 m²
Immowelt logo

Bürofläche zur Miete • provisionsfrei
10 €
/m²
540 m² BĂĽrofläche  â€˘  teilbar ab 270 m²

Büro- oder Praxisfläche mit hochwertiger Ausstattung und klimatisierten Büroräumen

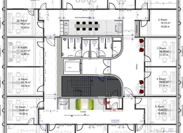
Bei der Bürofläche handelt es sich um eine hochwertig ausgestattete Bürofläche in einem sehr gepflegten Bürogebäude, welches sich auf einem Gelände für Fachmärkte befindet. Es stehen am Objekt ausreichend Pkw-Stellplätze zur Verfügung und die Anbindung an den Ring 3 ist hervorragend. Die Bürofläche im 3. OG wurde erst kürzlich aufwendig modernisiert. Neben der Entkernung der gesamten Fläche wurde ein neues Raumkonzept für das Geschoss geplant und umgesetzt. Die lichte Deckenhöhe beträgt 2,70 - 3,00 Meter. Alle Räume verfügen über Klimasplitgeräte und dienen zur Kühlung und zum beheizen.

Merkmale

  • frei ab 01.07.2026
  • vermietet
  • 3. Geschoss
  • Keller
  • Bodenbelag: Kunststoff
Zur hochwertigen Ausstattung der Bürofläche gehören eine offene großzügige und vollausgestattete Teeküche, Designelemente aus Holz, ein Lichtkonzept, Glastüren und teilweise Wände mit großzügigen Glasausschnitten, Elemente für die Raumakustik sowie ein Fußboden in Holzoptik und Zugangskontrolle über Transponder. Modernisierte, renovierte und getrennte WC-Einheiten. Alle Büroräume sind klimatisiert.

Grundrisse

Grundrisse
1 / 1

Realisiere Dein Projekt

Bausubstanz und Energie

Energieausweis

Endenergiebedarf (Wärme)

Endenergiebedarf (Strom)

  • Baujahr1991
  • Zustand der Immobilierenoviert / saniert
Immowelt logo

Mietkosten

Warmmiete
7.430,40 €
Nettomiete
10 €/m²
5.400 €
Nebenkosten
2.030,40 €
Heizkosten
in Warmmiete enthalten
Provision fĂĽr Mieter
provisionsfrei
Kaution
3BMM

Lage

address-icon
Hummelsbüttel, Hamburg / Hummelsbüttel (22339)
Der Anbieter hat die genaue Adresse nicht freigegeben
Das Bürogebäude ist sehr verkehrsgünstig zwischen Langenhorn Markt und Poppenbüttel am Ring 3 gelegen. Ein Fachmarktzentrum, ein Gewerbegebiet sowie das Raakmoor mit der Glashütter Landstraße und der Anbindung nach Schleswig-Holstein befinden sich in unmittelbarer Nähe. Eine Bushaltestelle vor dem Objekt bindet das Gebäude sehr gut an den ÖPNV an.

Weitere Informationen

Sonstiges Die Anmietung erfolgt provisionsfrei für den Mieter, die Mieterin. Stichworte Gesamtfläche: 540,00 m², Anzahl der Tagungsräume: 2, Bundesland: Hamburg, modernisiert: 2022

Weitere Services

Lust auf eine Besichtigung?
Eine Frage zur Immobilie?
Nachricht hinzufĂĽgen
Mit der Nutzung der oben angegebenen Telefonnummer oder durch Klicken auf „Kontaktieren“ akzeptierst Du die Allgemeinen Nutzungsbedingungen, denen Du jederzeit widersprechen kannst. Weitere Informationen zum Datenschutz

Ăśber den Anbieter

LĂĽbeckertordamm 1-3, 20099 Hamburg
partner badge
Partnerschaft
Herr Giuliano de SouzaDein Kontakt
Online-ID: 2jkpt54
Referenznummer: vm_bp_pw25
Wittlinger & Compagnie GmbH & Co. KG
Wittlinger & Compagnie GmbH & Co. KG
Bewertung: 4,8 von 5 Sternen
Nachricht hinzufĂĽgen
Mit der Nutzung der oben angegebenen Telefonnummer oder durch Klicken auf „Kontaktieren“ akzeptierst Du die Allgemeinen Nutzungsbedingungen, denen Du jederzeit widersprechen kannst. Weitere Informationen zum Datenschutz
Wie zufrieden bist du mit dieser Seite (nicht mit der Immobilie selbst)?