Dein zukünftiges Zuhause ist ein wunderschönes Doppelhaus, das ganz nach deinen Wünschen und Vorstellungen gestaltet wird. Mit einer großzügigen Wohnfläche von 177,5 m² und einer intelligenten Aufteilung auf vier Etagen bietet es mehr als genug Platz für die gesamte Familie.
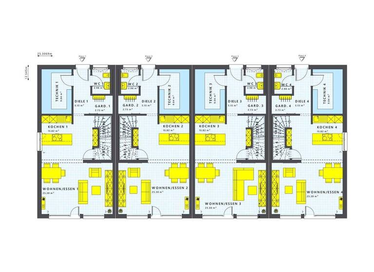
Der weitläufige Wohn- und Essbereich im Erdgeschoss ist ideal für gesellige Abende mit Freunden und Familie. Im Obergeschoss findest du drei große Kinderzimmer sowie ein modernes Badezimmer - perfekt für die kleinen Abenteurer. Das Dachgeschoss ist eine wahre Oase der Ruhe: Hier erwartet dich ein großes Schlafzimmer mit einem angrenzenden Ankleidezimmer, sowie ein eigenes Badezimmer mit einer erholsamen Badewanne. Die Ausstattungsdetails, wie die Bodenbeläge, können ganz nach deinen persönlichen Vorlieben gewählt werden.
Zusätzlich zu deinem individuellen Traumhaus bietet LivingHaus zahlreiche weitere Leistungen, um dein Bauprojekt so angenehm wie möglich zu gestalten. Die hochwertige Traumküche wird speziell für deinen Grundriss angepasst und kommt mit modernster Technik sowie cleveren Stauraumlösungen, sodass du direkt nach dem Einzug mit dem Kochen beginnen kannst.
Das I-KON Konzept steht für intelligentes Bauen: Dein Zuhause wird nicht nur nachhaltig und umweltfreundlich, sondern auch energieeffizient. Als I-KON Effizienzhaus 40+ QNG wird dein Haus sogar selbst regenerativen Strom produzieren. So wird dein Traumhaus nicht nur ein Ort der Entspannung, sondern auch ein Ort, an dem du dich kreativ entfalten kannst.
Merkmale
232 m² Grundstück
Einbauküche, offene Küche
Keller
2 Stellplätze: 2 Garagen
Gäste-WC
Garten
Terrasse
Grundrisse
Grundrisse
1 / 3
Virtueller Rundgang
Video
Bausubstanz und Energie
Möchtest du Details zum Energieverbrauch?
Zustand der ImmobilieProjektiert
HeizungsartZentralheizung
EnergieträgerLuft-/Wasser-Wärmepumpe
Preisdetails
Kaufpreis
976250 €976.250 €
5.500 €/m²
Preis pro Stellplatz
10000 €10.000 €
Provision für Käufer
provisionsfrei
Weitere Preisinformationen
2 Garagenstellplätze, Kaufpreis je: 10.000,00 EUR
Geschätzte Gesamtkosten
1.029.944 €1
Kaufpreis
976.250 €
Kaufnebenkosten
53.694 €
2
Notarkosten (1,5%)
14.644 €
Grunderwerbsteuer (3,5%)
34.169 €
Grundbucheintrag (0,5%)
4.881 €
1Der angezeigte Wert ist eine automatisch berechnete Schätzung von immowelt.
2Bei den Angaben handelt es sich um ortsübliche Werte. Individuelle Kosten können abweichen.
Lage
Achdorf, Landshut (84036)
Der Anbieter hat die genaue Adresse nicht freigegeben
Landshut ist ein idealer Standort für Familien, Naturliebhaber und Pendler. In der Umgebung findest du zahlreiche Bildungseinrichtungen, darunter mehrere Kindergärten und Schulen, die allesamt gut bewertet sind. So kannst du sicher sein, dass deine Kinder die bestmögliche Förderung erhalten. Für den täglichen Bedarf stehen dir Supermärkte wie Edeka und Rewe in unmittelbarer Nähe zur Verfügung. Die ärztliche Versorgung ist durch diverse Hausärzte und Fachärzte in der Stadt gewährleistet, sodass du im Falle eines Falles immer gut versorgt bist.
Freizeitangebote sind in Landshut vielfältig und umfangreich. Von malerischen Rad- und Wanderwegen in der Umgebung bis hin zu kulturellen Veranstaltungen im Stadtzentrum bietet die Stadt für jeden etwas. Zudem ist der öffentliche Nahverkehr gut ausgebaut, sodass du schnell und bequem die umliegenden Städte erreichen kannst. Landshut liegt verkehrsgünstig zur Autobahn, was Pendlern eine einfache Anreise zu den benachbarten Städten wie München ermöglicht. Hier findest du die perfekte Kombination aus urbanem Leben und naturnaher Erholung - dein neues Zuhause in Landshut wartet auf dich!
Weitere Informationen
Sonstiges
Das gesamte Projekt entspricht der KfW40+ QNG Norm und ermöglicht dir eine sehr umfassende Förderung sowie doppelte Sonder-AfA und vieles mehr.
Energiepass
Energieausweis wird bei Besichtigung vorgelegt.
Stichworte
Nutzfläche: 63,00 m², Anzahl der Schlafzimmer: 4, Anzahl der Badezimmer: 2, Anzahl Terrassen: 1, Anzahl Loggias: 1, 4 Etagen, Lage im Wohngebiet