Version: 8.24.0Navigation ĂĽberspringen
2.000 €
8 Zimmer  â€˘  315 m² BĂĽrofläche  â€˘  teilbar ab 290 m²
Immowelt logo

Bürogebäude zur Miete
2.000 €
8 Zimmer  â€˘  315 m² BĂĽrofläche  â€˘  teilbar ab 290 m²

Praxis- Büro-, Gewerbefläche direkt am Marktplatz zu vermieten:

Zur Vermietung stehen diese Praxis-/Büro-/Seminar-/Gewerberäume direkt am Marktplatz in Pewsum ab sofort zur Verfügung.
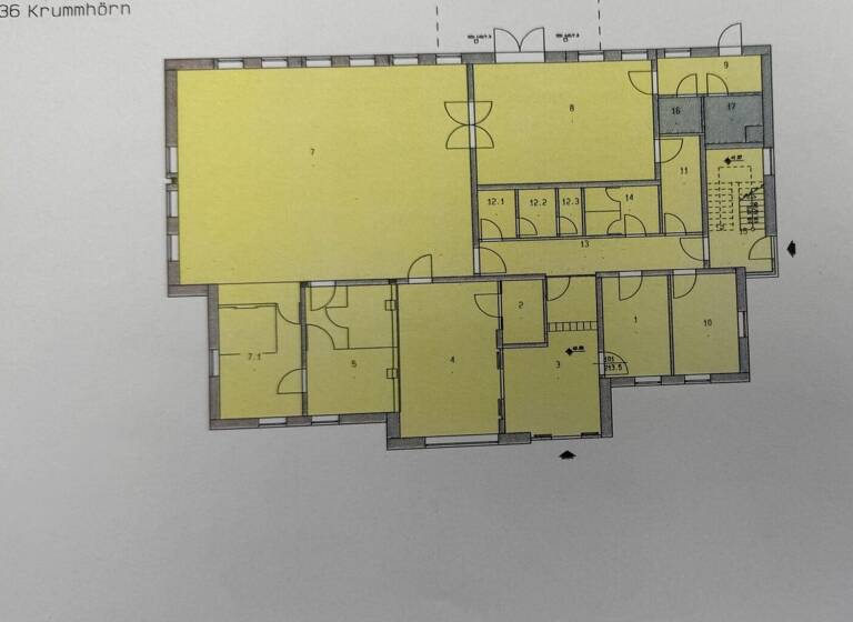
Das ebenerdige Objekt verfügt über 8 Räume zzgl. Toiletten und Nebenräume.
Zu diesem Objekt gehören zehn Parkplätze sowie ein überdachter Außenbereich (Carport).

Die Kosten fĂĽr den Haushaltsstrom und Gas rechnet der Mieter mit dem jeweiligen Rechnungssteller ab.

Merkmale

  • Bezug: sofort
  • Kein Keller
  • 10 Stellplätze: Carport, 10 AuĂźen-Stellplätze
  • Barrierefrei

Grundrisse

Grundrisse
1 / 1

Realisiere Dein Projekt

Bausubstanz und Energie

Der Anbieter hat keine Informationen zum Energieverbrauch bereit gestellt.
  • Zustand der ImmobilieGepflegt
  • EnergieträgerGas
Immowelt logo

Mietkosten

Nettomiete
2.000 €
Nebenkosten
300 €
Provision fĂĽr Mieter
3 Kaltmieten zzgl. MwSt.
Kaution
2 Kaltmieten
Weitere Preisinformationen

Kaution: 2 Kaltmieten, 1 Carportplatz
10 Stellplätze

Lage

address-icon
Pewsum, Krummhörn-Pewsum (26736)
Der Anbieter hat die genaue Adresse nicht freigegeben

Weitere Informationen

Stichworte Gesamtfläche: 338,00 m², Büroteilfläche: 290,00 m², 1 Etagen, Lage im Ort

Weitere Services

Lust auf eine Besichtigung?
Eine Frage zur Immobilie?
Nachricht hinzufĂĽgen
Mit der Nutzung der oben angegebenen Telefonnummer oder durch Klicken auf „Kontaktieren“ akzeptierst Du die Allgemeinen Nutzungsbedingungen, denen Du jederzeit widersprechen kannst. Weitere Informationen zum Datenschutz

Ăśber den Anbieter

Immobilien Hegemann
Immobilien HegemannMaklerbĂĽro
Zwischen beiden Bleichen 4, 26725 Emden
Herr Michael HegemannDein Kontakt
Online-ID: 2kjwa5z
Referenznummer: V2029
Immobilien Hegemann
Immobilien Hegemann
Bewertung: 4,3 von 5 Sternen
Nachricht hinzufĂĽgen
Mit der Nutzung der oben angegebenen Telefonnummer oder durch Klicken auf „Kontaktieren“ akzeptierst Du die Allgemeinen Nutzungsbedingungen, denen Du jederzeit widersprechen kannst. Weitere Informationen zum Datenschutz
Wie zufrieden bist du mit dieser Seite (nicht mit der Immobilie selbst)?