
Markus Hörmann Vermietung und Verpachtung
Herr Markus Hörmann
+49 ···
Nr. anzeigenPreise & Kosten
Provision für Käufer
provisionsfrei
Lage
- Freistaat Thüringen
- Stadt Eisenach mit etwa 43.000 Einwohnern
- Grundstück in zentraler Stadtlage
- Umgebung ist gewerblich geprägt
- wenige Autominuten zur A4
- Eckgrundstück Rennbahn / Wilhelm-Rinkens-Straße
- Strom, Gas, Wasser, Telefon liegt straßenseitig an
Das Renditeobjekt
Kategorie
Produktionshalle
Baujahr
1939 – 1980
Frei ab
vermietet
Energie & Heizung
Warum sehe ich diese Anzeige? – Du siehst diese Anzeige basierend auf Ihrer Navigation auf unserer Website und den Suchkriterien, die du verwendet hast.
Weitere Energiedaten
Energieträger
Gas
Details
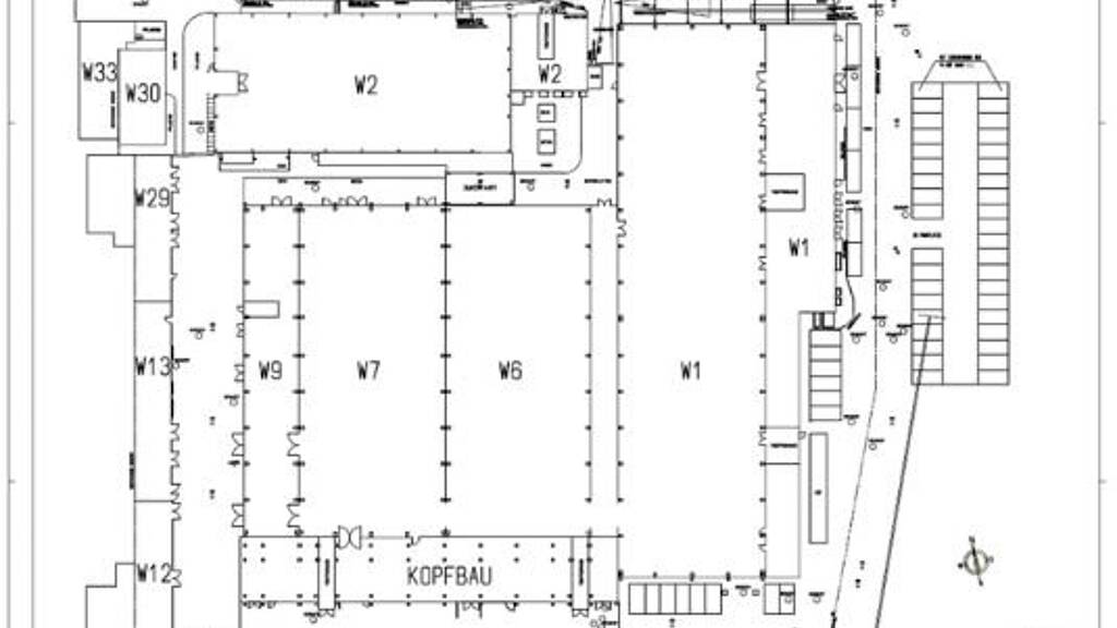
Objektbeschreibung
- großzügiges Produktions- und Verwaltungsgebäude
- ca. 270.000,00 € jährliche Nettokaltmiete momentan
- bis zu 14% Mietrendite bei Vermietung möglich
- ca. 650.000,00 € jährliche Nettokaltmiete möglich
- zentrale Lage in Eisenach
- ca. 5.000 m² Büro- und Sozialflächen
- ca. 13.500 m² Lager-, Werkstatt- und...
Weitere Informationen
Eckdaten
Adresse Rennbahn 25, 99817 Eisenach
Objektart Gewerbeimmobilie
Grundstücksfläche ca. 19.200 m²
Produktionsfläche ca. 13.500 m² (ggf. teilbar)
Büroflächen ca. 5.000 m² (ggf. teilbar)
Gesamtfläche ca. 18.500 m²
Objektzustand gepflegt
Baujahr zwischen 1939 – 1980
Wesentliche Energieträger...
Anbieter der Immobilie
Markus Hörmann Vermietung und Verpachtung
Kirchplatz 3, 89281 Illereichen
Online-ID: 2487d5r
Finde Angebote wie dieses
Hier geht es zu unserem Impressum, den Allgemeinen Geschäftsbedingungen, den Hinweisen zum Datenschutz und nutzungsbasierter Online-Werbung.