Version: 8.24.0Navigation überspringen
700.000 €
4 Zimmer  •  152,3 m²  •  1.000 m² Grundstück
Immowelt logo

Einfamilienhaus zum Kauf • provisionsfrei
700000 €
4.598 €/m²
4 Zimmer  •  152,3 m²  •  1.000 m² Grundstück

Bezugsfreies Doppelhaus/Hinterhaus, Waldstraßenviertel, 4,5 Zimmer & 2 Terrassen, sehr ruhig gelegen

Erfreuen Sie sich an der besonderen Architektur dieser Stadtvilla in Bestlage von Leipzig mit vielen historischen Details aus der Gründerzeit. Betreten Sie die lichtdurchfluteten großzügigen Räumlichkeiten - bereits beim Eintritt in das Foyer und des großzügig konzipierten Treppenhauses wird Ihnen ein imposanter erster Eindruck geboten, der Sie überzeugen wird, hier in Zukunft zu leben.

Die Liegenschaft befindet sich in attraktiver und sehr ruhiger Wohnlage im Leipziger Waldstraßenviertel. Angeboten werden 6 Eigentumswohnungen in einem villenartigen Mehrfamilienhaus und einem Kutscherhaus, in dem 2 Wohnungen untergebracht sind. Das große grüne Grundstück mit altem Baumbestand ist über eine Tordurchfahrt zu erreichen. Baujahr für beide Objekte ist ca. 1864.

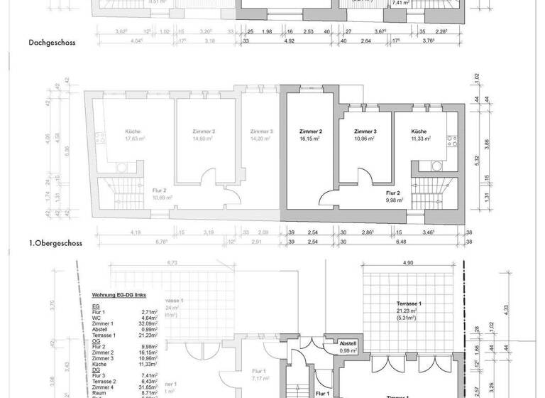
Das hier angebotene Gartenhaus ist leerstehend und verteilt sich auf 3 Etagen mit 4,5 Räumen, einer Küche, zwei Bädern, 3 Schlafzimmern sowie einer Terrasse mit 16,40 m², von der aus der Wohnbereich zu erreichen ist. Der Raum vor dem Schlafzimmer kann als Ankleidebereich oder Arbeitszimmer genutzt werden.
Das Haus ist zweigeschossig, nicht unterkellert, mit ausgebautem Dachgeschoss und hat einen Kamin im Wohnzimmer. Das Doppelhaus misst eine Fläche von 152,25 m² und hat einen anteiligen Garten.

Im Jahr 1998 erfolgte bei beiden Gebäuden eine vollständige Modernisierung und Sanierung nach Auflagen des Denkmalschutzes. Das Objekt wurde 2023 an das Fernwärmenetz angeschlossen. Die zentrale Warmwasserversorgung erfolgt über die Heizungsanlage. Es ist kein Energieausweis erforderlich, da es sich um ein Denkmalschutzobjekt handelt.

Zur gemeinschaftlichen Nutzung gehören ein Billardtisch und eine Sauna im Keller.

" frisch, engagiert, solide "

Die Künne Immobilien Gruppe ist professioneller Dienstleister der Immobilienbranche und steht Ihnen in den Bereichen Projektentwicklung, Verkauf, Vermietung, Verwaltung und Facility Management zur Verfügung.

Für weitere Informationen und Einblicke besuchen Sie unsere Homepage: www.kuenne-gruppe.de Sie wollen Ihre Immobilie verkaufen? Egal ob Mehrfamilien- oder Einfamilienhaus, Eigentumswohnung, Grundstück oder Neubau- bzw. Bauträgerprojekt. Wir vermitteln kompetent, transparent und zügig Ihre Immobilie, bundesweit.

Merkmale

  • 1.000 m² Grundstück
  • Gäste-WC
  • Balkon
  • Garten
  • Denkmalschutz-Afa

Grundrisse

Grundrisse
1 / 1

Realisiere Dein Projekt

Bausubstanz und Energie

Energieausweis

Ein Energieausweis ist für diesen Gebäudetyp nicht notwendig.
  • Baujahr1864
  • Zustand der Immobilierenoviert / saniert
  • EnergieträgerFernwärme
Immowelt logo

Preisdetails

Kaufpreis
700000 €
4.597,70 €/m²
Provision für Käufer
provisionsfrei
Weitere Preisinformationen
Nettorendite Soll in %: 2,18
Soll-Mieteinnahmen pro Jahr: 15.324,00 EUR
Geschätzte Gesamtkosten
752.500 €1
Kaufpreis
700.000 €
Notarkosten (1,5%)
10.500 €
Grunderwerbsteuer (5,5%)
38.500 €
Grundbucheintrag (0,5%)
3.500 €
1Der angezeigte Wert ist eine automatisch berechnete Schätzung von immowelt.
2Bei den Angaben handelt es sich um ortsübliche Werte. Individuelle Kosten können abweichen.

Lage

address-icon
Zentrum-NordwestLeipzig (04105)
Der Anbieter hat die genaue Adresse nicht freigegeben
Das Objekt befindet sich in Leipzig, im Stadtteil Zentrum-Nordwest, ca. 500 m vom Stadtzentrum entfernt.

Das Zentrum-Nordwest ist eines der schönsten und vielfältigsten Stadtviertel, das Leipzig zu bieten hat. Das Quartier bietet eine sehr gute Lage und ist in dreierlei Hinsicht einzigartig: Es umfasst das Rosental und damit den Zoologischen Garten. Es beherbergt das Leipziger Sportforum, bestehend aus der Arena, dem Zentralstadion und der Festwiese. Teil von Zentrum-Nordwest ist das Waldstraßenviertel - Leipzigs größtes zusammenhängendes Gründerzeitviertel.

Die Lage bietet zahlreiche Einkaufsmöglichkeiten sowie eine umfangreiche Nahversorgung, sodass tägliche Erledigungen problemlos bewältigt werden können. Zentrum-Nordwest zeichnet sich des Weiteren durch eine gute Verkehrsanbindung sowohl im ÖPNV als auch im Individualverkehr aus. Das Waldstraßenviertel ist mit seinen gründerzeitlichen Häuserzeilen und klassizistischen Villen eine der attraktivsten Wohngegenden in ganz Leipzig.

Leipzig ist eine kreisfreie Stadt im Nordwesten des Freistaates Sachsen, gehört zu den sechs Oberzentren Sachsens und ist Sitz der Landesdirektion Leipzig.
Die Stadt Leipzig hat aktuell 624.689 Einwohner (Stand 2022).
Die Stadt bildet gemeinsam mit der benachbarten Großstadt Halle (Saale) einen Ballungsraum, der Teil der Metropolregion Sachsendreieck ist.
An Leipzig führen mehrere Autobahnen vorbei: im Süden die A 38, im Westen die A 9 und im Norden die A 14. In Richtung Süden nach Chemnitz ist außerdem die A 72 teilweise im Bau bzw. in Planung. Durch das Leipziger Stadtgebiet führen die Bundesstraßen B 2, B 6, B 87, B 181, B 184 und B 186. Der vier Kilometer lange Tunnel, welcher die Innenstadt Leipzigs vom Hauptbahnhof zum Bayerischen Bahnhof unterquert, wurde 2013 als Stammstrecke der S-Bahn Mitteldeutschland in Betrieb genommen.

Weitere Informationen

Sonstiges Alle Angaben sind ohne Gewähr und basieren ausschließlich auf Informationen, die uns von unserem Auftraggeber zur Verfügung gestellt wurden. Wir übernehmen keine Gewähr für die Vollständigkeit, Richtigkeit und Aktualität dieser Angaben. Stichworte Anzahl der Schlafzimmer: 3, Anzahl der Badezimmer: 2, Anzahl Balkone: 1, Balkon-Terrassen-Fläche: 16,40 m², Bundesland: Sachsen, 3 Etagen, Wohnungsnr.: HH 07, modernisiert: 1998, Distanz zum Flughafen: 21.68, Distanz zum Hauptbahnhof: 1.41, Distanz zum Bus: 0.32

Weitere Services

Lust auf eine Besichtigung?
Eine Frage zur Immobilie?
Nachricht hinzufügen
Mit der Nutzung der oben angegebenen Telefonnummer oder durch Klicken auf „Kontaktieren“ akzeptierst Du die Allgemeinen Nutzungsbedingungen, denen Du jederzeit widersprechen kannst. Weitere Informationen zum Datenschutz

Über den Anbieter

Marko Künne Immobilien
Käthe-Kollwitz-Straße 58c, 04109 Leipzig
Online-ID: 2n27g58
Referenznummer: HH WE 07
Marko Künne Immobilien
Marko Künne Immobilien
Bewertung: 4 von 5 Sternen
Nachricht hinzufügen
Mit der Nutzung der oben angegebenen Telefonnummer oder durch Klicken auf „Kontaktieren“ akzeptierst Du die Allgemeinen Nutzungsbedingungen, denen Du jederzeit widersprechen kannst. Weitere Informationen zum Datenschutz
Wie zufrieden bist du mit dieser Seite (nicht mit der Immobilie selbst)?