Version: 8.22.4Navigation überspringen
3.054 €
68,1 m² Lagerfläche
Immowelt logo

Halle/Industriefläche zum Kauf
3053,55 Euro pro Quadratmeter
68,1 m² Lagerfläche

U1 in 5 Minuten erreichbar - Kurzzeitvermietung möglich - Lift im Haus - Zusammenlegung von Wohnungen möglich - Dachgeschoß Ausblick

Exklusive sanierungsbedürftige Altbau Wohnungen - Neubauwohnungen im Dachgeschoss - Grundrisse Veränderbar

Das Projekt im Herzen des 10. Wiener Bezirks, Favoriten, präsentiert eine moderne und vielseitige Wohn- und Geschäftslösung. Das Gebäude erstreckt sich über fünf Stockwerke, einschließlich des Hochparterres, und verfügt über ein ausgebautes Dachgeschoß, das zusätzlichen Wohnraum und beeindruckende Aussichten bietet.

Insgesamt bietet das Projekt 26 individuelle Wohneinheiten, die von ca. 26,6 m² bis zu großzügigen ca. 70 m²  reichen. Diese Vielfalt an Größen ermöglicht es, unterschiedliche Bedürfnisse und Lebensstile zu berücksichtigen. Von gemütlichen Einzimmerapartments bis hin zu großzügigen Vierzimmerwohnungen, bietet das Projekt eine breite Palette an Möglichkeiten. Mit einem Aufzug ausgestattet, gewährleistet das Gebäude eine komfortable Zugänglichkeit zu den verschiedenen Etagen.

Besonders herausragend ist die Möglichkeit der Zusammenlegung von Wohnungen, was den Bewohnern die Flexibilität gibt, ihre Wohnfläche nach individuellen Bedürfnissen zu gestalten. Diese Anpassungsfähigkeit unterstreicht den modernen Ansatz des Projekts und schafft Raum für persönliche Entfaltung.

Verfügbare Einheiten im Haus:

* Top 7-8: Hochparterre, 3 Zimmer; WFL ca. 65,17 m²; 175.000,-- Euro - verkauft
* Top 15: 1. OG, 2 Zimmer; WFL ca. 39,76 m²; 149.000,-- Euro
* Top 18: 1. OG, 1,5 Zimmer; WFL ca. 39,79 m²; 149.000,-- Euro (nicht saniert)
* Top 19: 2. OG, 1 Zimmer; WFL ca. 45,26 m²; 149.000,-- Euro (nicht saniert)
* Top 20-21: 2. OG, 1 Zimmer; WFL ca. 32,09 m²; 115.000,-- Euro - verkauft
* Top 23: 2. OG, 3 Zimmer; WFL ca. 57,50 m²; 219.000,-- Euro 
* Top 26: 3. OG, 1 Zimmer; WFL ca. 42,38 m²; 169.000,-- Euro (nicht saniert)
* Top 28-29: 3. OG, 1 Zimmer; WFL ca. 43,28 m² m²; 145.000,-- Euro (nicht saniert) - verkauft
* Top 30: 3. OG, 1,5 Zimmer; WFL ca. 46,74 m²; 189.000,-- Euro
* Top 31: 3. OG, 1 Zimmer; WFL ca. 34,05 m²; 125.000,-- Euro (nicht saniert) - verkauft
* Top 33: DG, 1,5 Zimmer; WFL ca. 61,42 m²; 285.000,-- Euro
* Top 34: DG, 1 Zimmer; WFL ca. 30,05 m²; 149.000,-- Euro 
* Top 35: DG, 2 Zimmer; WFL ca. 48,92 m²; 235.000,-- Euro 
* Top 36: DG, 1 Zimmer; WFL ca. 36,88 m²; 175.000,-- Euro 
* Top 37: DG, 2 Zimmer; WFL ca. 64,04 m²; 299.000,-- Euro 
* Geschäftslokal 1: Souterraine, NFL ca. 107,66 m², 199.000,-- Euro
* Geschäftslokal 2: Souterraine, NFL ca. 67 m², 129.000,-- Euro

Bei erfolgreichem Geschäftsabschluss fällt eine Provision von 3% vom Kaufpreis zzgl. 20% USt. an.

Lt. Wohnungseigentumsvertrag besteht (im Rahmen der gesetzlichen Verordnungen) die Möglichkeit der Kurzzeitvermietung. 
Sonderwünsche können gerne in gemeinsamer Absprache berücksichtigt werden. 

 

Lage und Infrastruktur:

In der unmittelbaren Umgebung stehen Ihnen diverse Einkaufsmöglichkeiten sowie ein vielfältiges Angebot an Restaurants und Cafés zur Verfügung.
Die wenige Gehminuten entfernte Favoritenstraße sorgt zusätzlich für Freizeit- und Shoppingspaß. 
Dank der Nähe zur U1 sind die Innenstadt, aber auch der Hauptbahnhof in weniger Minuten erreicht! 

U-Bahn:
U1 ca. 300m 

Straßenbahn: 
O, 11 ca. 150m 
6 ca. 350m

Bus: 
7A ca. 250m
65A ca. 400m
68A, 68B ca. 500m

Kindergarten ca. 850m 
Volksschule ca. 650m 
Mittelschule ca. 190m 
Gymnasium ca. 850m 

 

Gerne steht Ihnen Herr Alexandru Filimon für weitere Fragen bzw. flexibel gestaltbare Besichtigungstermine unter 0660 285 03 30  zur Verfügung.  

WWW.RINGSMUTH-IMMOBILIEN.AT [http://www.ringsmuth.at/]

Wir weisen ausdrücklich auf unser wirtschaftliches Naheverhältnis mit dem Abgeber/ der Abgeberin, so wie die Doppelmaklertätigkeit hin!

Irrtum und Änderungen vorbehalten!

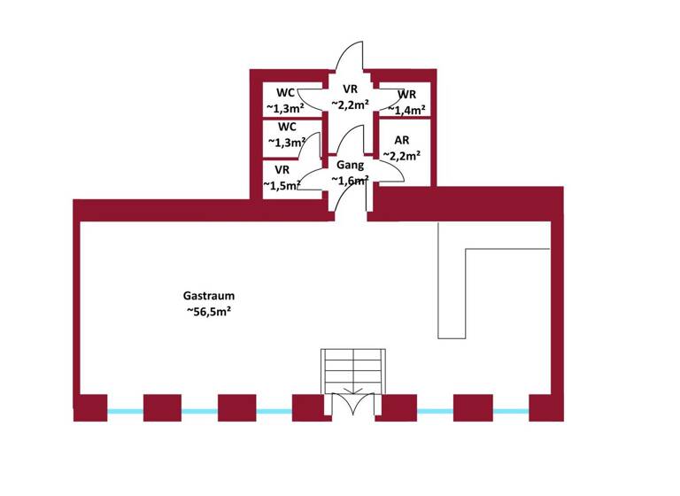
Geschäftslokal 1

Das Geschäftslokal mit knapp 68,09 m² Wohnfläche gliedert sich in folgende, funktionelle Raumaufteilung:

* Eingang
* Gastraum
* Gang
* Warteraum 1
* WC 1
* Warteraum 2
* WC 2
* Abstellraum 1
* Abstellraum 2

Kaufpreis:

Der Kaufpreis beläuft sich auf 129.000,-- Euro.

Bei erfolgreichem Geschäftsabschluss fällt eine Provision von 3% vom Kaufpreis zzgl. 20% USt. an.

Betriebskosten: 

Die monatlichen Betriebskosten belaufen sich derzeit auf 279,44 Euro exkl. USt. 

 

GERNE STEHT IHNEN HERR ALEXANDRU FILIMON FÜR WEITERE FRAGEN BZW. FLEXIBEL GESTALTBARE BESICHTIGUNGSTERMINE UNTER 0660 285 0330 ZUR VERFÜGUNG.  

www.ringsmuth-immobilien.at [http://www.ringsmuth.at/]

Wir weisen ausdrücklich auf unser wirtschaftliches Naheverhältnis mit dem Abgeber/der Abgeberin und auf unsere Vermittlungstätigkeit als Doppelmakler hin. 

Irrtum und Änderungen vorbehalten!

Wir weisen darauf hin, dass zwischen dem Vermittler und dem zu vermittelnden Dritten ein familiäres oder wirtschaftliches Naheverhältnis besteht.

Infrastruktur / Entfernungen

Gesundheit
Arzt <500m
Apotheke <500m
Klinik <500m
Krankenhaus <2.000m

Kinder & Schulen
Schule <500m
Kindergarten <500m
Universität <1.000m
Höhere Schule <2.500m

Nahversorgung
Supermarkt <500m
Bäckerei <500m
Einkaufszentrum <1.000m

Sonstige
Geldautomat <500m
Bank <500m
Post <500m
Polizei <1.000m

Verkehr
Bus <500m
U-Bahn <500m
Straßenbahn <500m
Bahnhof <500m
Autobahnanschluss <1.500m

Angaben Entfernung Luftlinie / Quelle: OpenStreetMap

Merkmale

  • Personenaufzug
  • Bad mit Dusche
  • Bodenbelag: Fliesen, Laminat

Grundrisse

Grundrisse
1 / 2

Realisiere Dein Projekt

Bausubstanz und Energie

Heizwärmebedarf (HWB)

C

Gesamtenergieeffizienz (fGEE)

B
Immowelt logo

Preisdetails

Kaufpreis
129000 €
3.053,55 €/m²
Provision für Käufer
3% des Kaufpreises zzgl. 20% USt.

Lage

address-icon
Wien (1100)
Der Anbieter hat die genaue Adresse nicht freigegeben
U-Bahn:
U1 ca. 300m 

Straßenbahn: 
O, 11 ca. 150m 
6 ca. 350m

Bus: 
7A ca. 250m
65A ca. 400m
68A, 68B ca. 500m

Kindergarten ca. 850m 
Volksschule ca. 650m 
Mittelschule ca. 190m 
Gymnasium ca. 850m

Weitere Informationen

Stichworte Wohnfläche: 68,09 m², Nutzfläche: 68,09 m², Anzahl der separaten WCs: 2, Bundesland: Wien, 5 Etagen

Weitere Services

Lust auf eine Besichtigung?
Eine Frage zur Immobilie?
Nachricht hinzufügen
Mit der Nutzung der oben angegebenen Telefonnummer oder durch Klicken auf „Kontaktieren“ akzeptierst Du die Allgemeinen Nutzungsbedingungen, denen Du jederzeit widersprechen kannst. Weitere Informationen zum Datenschutz

Über den Anbieter

Hackhofergasse 1, 1190 WIEN
partner badge
3 Jahre Partnerschaft
Herr Alexandru FilimonDein Kontakt
Online-ID: 2lvpz5a
Referenznummer: OBGC202509010925006220444277c7d
Ringsmuth Immobilien
Ringsmuth Immobilien
Bewertung: 5 von 5 Sternen
Nachricht hinzufügen
Mit der Nutzung der oben angegebenen Telefonnummer oder durch Klicken auf „Kontaktieren“ akzeptierst Du die Allgemeinen Nutzungsbedingungen, denen Du jederzeit widersprechen kannst. Weitere Informationen zum Datenschutz
Wie zufrieden bist du mit dieser Seite (nicht mit der Immobilie selbst)?