Version: 8.24.1Navigation überspringen
19,50 €
1 Zimmer  •  35,1 m² Bürofläche
Immowelt logo

Bürofläche zur Miete
19,50 €
/m²
1 Zimmer  •  35,1 m² Bürofläche

Helles Büro in Shared Office-Bereich - Campusfeeling, klimatisiert

THE VIEW liegt im Münchner Südosten. Das architektonisch hoch ansprechende Ensemble verbindet urbane Standortvorteile mit den attraktiven Vorzügen des Münchner Umlandes. Die Verkehrsanbindung ist sowohl regional über die BAB München-Salzburg und die Rosenheimer Landstraße ideal in die Münchner Innenstadt gegeben wie auch überregional / international mit der unmittelbaren Nähe zur Autobahn und der schnellen Erreichbarkeit zum Münchner Flughafen überzeugend.

Die Freizeitmöglichkeiten für eine entspannte Work-Life-Balance sind mit dem angrenzenden Neubiberger Umweltgarten hervorragend gegeben. Für wohl verdiente Breaks vom konzentrierten Arbeiten bieten sich hier unendliche Möglichkeiten: Joggen / Skaten / Fußballplatz und Volleyballfeld, entspanntes Naturerlebnis in den Hachinger Bachauen, Surfen bei Jochen Schweizer oder Action beim Skydiven.

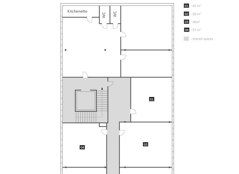
Die angebotene Bürofläche liegt im Haus 27.
Beziehen Sie Ihr eigenes Büro (Büro Nr. 4 auf Grundriss) in unseren Shared Office Bereichen. Die Allgemeinflächen wie eine großzügige Küche mit Aufenthaltsqualität, Flure und Toilettenwerden geteilt. Sie können ganz nach Bedarf Konferenzräume und Eventflächen stunden- oder tageweise anmieten.

In den Nebenkosten sind bereits auch die Reinigung der Allgemeinflächen enthalten.

Die Bürofläche verfügt über eine hochwertige Ausstattung (unter anderem mit Doppelboden für eine smarte Verkabelung), und ist dank Vollverglasung sehr lichtdurchflutet. Aufgrund der Lage im 2.OG ergibt sich eine beeindruckende Aussicht und ein schneller Zugang zur Dachterrasse, welche für alle Mieter nutzbar ist.

Schon der Eingangsbereich ist - vor allem für den Empfang von Gästen - ausgesprochen repräsentativ. Vereinbaren Sie jederzeit einen Besichtigungstermin und überzeugen sie sich selbst, wir sind gerne für Sie da.

Die Nebenkostenpauschale beträgt 4,90 € pro m². Die Mehrwertsteuer von derzeit 19% wird auf den Gesamtbetrag hinzugerechnet.

Merkmale

  • 2. Geschoss
  • Einbauküche
  • Personenaufzug
  • 300 Stellplätze: 300 Außen-Stellplätze
  • voll klimatisiert
  • Bodenbelag: Teppich
Hinter einer architektonisch bemerkenswerten Glasfassade befinden sich lichtdurchflutete, angenehme Büroräume. Die repräsentative Immobilie bietet mit ihrer hochwertigen Ausstattung das ideale Umfeld für Mieter aus den Bereichen IT-Technologie, Finanzdienstleister, für Medienunternehmen und Artztpraxen. In der Presse hat sich der "THE VIEW" einen Namen als prägendes Wahrzeichen und Landmark von Ottobrunn gemacht. Nutzen Sie die Vorteile eines starken Standorts für starke Unternehmen und motivierte Mitarbeiter.

Der moderne Bürokomplex bietet Ihnen die ideale und individuelle Infrastruktur für ein erfolgreiches Arbeiten. Profitieren Sie von unserer langjährigen Erfahrung in der Vermietung: Sie nennen uns Ihre Bedürfnisse und Anforderungen, wir kümmern uns um den Rest. Flexible Raumkonzepte ermöglichen uns, Ihnen maßgeschneiderte Büroflächen anzubieten, stets mit der von Ihnen gewünschten Flexibilität bezüglich Laufzeit und Expansionsmöglichkeiten. Über hundert kleine, mittlere und große Mieter haben sich bereits von unserem persönlichen Service überzeugen lassen. Unser Team ist täglich vor Ort und bietet Ihnen damit direkte Ansprechpartner für Ihre Belange.

Die Räume sind klimatisiert.

Grundrisse

Grundrisse
1 / 1

Realisiere Dein Projekt

Bausubstanz und Energie

Energieausweis

Endenergiebedarf (Wärme)

Endenergiebedarf (Strom)

  • Baujahr2001
  • EnergieträgerFernwärme
Immowelt logo

Mietkosten

Warmmiete
1.380,55 €
Nettomiete zzgl. Nebenkosten
19,50 €/m²
1.103,31 €
Provision für Mieter
Bitte beachte, das Angebot kann bei Vertragsabschluss die Zahlung einer Provision beinhalten. Weitere Informationen erhältst Du vom Anbieter.
Kaution
3 Monatsmieten
Weitere Preisinformationen
300 Stellplätze
Nebenkosten pro qm: 4,90 EUR

Lage

address-icon
Ottobrunn (85521)
Der Anbieter hat die genaue Adresse nicht freigegeben
Der "THE VIEW" liegt am südöstlichen Stadtrand Münchens in zentraler Verkehrslage.
Er ist mit dem Auto über die BAB München-Salzburg, Ausfahrt Ottobrunn oder über Perlach-Neubiberg-Rosenheimer Landstraße ideal angebunden. 300 Pkw-Stellplätze (teilweise in der Tiefgarage) bieten eine stressfreie Anfahrt zum Büro.

Der Linienbus 210 hält im 10-Minuten-Takt direkt vor dem Objekt und bringt sie in wenigen Minuten zur Haltestelle "Neuperlach Süd" mit direktem S- und U-Bahn Anschluss (U5, S7).
Die S-Bahnstation "Neubiberg" ist in 5 Minuten zu Fuß erreichbar.

Ottobrunn ist bekannt als Technologiestandort im wirtschaftlich starken Münchner Umfeld. Der Top-Standort bietet Synergien und Entwicklungspotential. Der Freizeitwert für Sie und Ihre Mitarbeiter ist herausragend. Im inspirierenden Umfeld des Büropark Ottobrunn ergeben sich Synergien in der interessanten Gemeinschaft der Mieter aus verschiedensten Branchen. Bei regelmäßigen Get-together-Events herrschen ein angeregter Austausch und ein gutes Klima zwischen den Mietern untereinander.

Weitere Informationen

Sonstiges Ottobrunn ist dem Münchner Telefonnetz angeschlossen und hat eine Münchner Vorwahl, der Gemeindesteuersatz liegt bei günstigen 340. Geschäfte des täglichen Bedarfs sowie Restaurants und Hotels liegen in unmittelbarer Nähe. Stichworte Gesamtfläche: 56,58 m², 4 Etagen

Weitere Services

Lust auf eine Besichtigung?
Eine Frage zur Immobilie?
Nachricht hinzufügen
Mit der Nutzung der oben angegebenen Telefonnummer oder durch Klicken auf „Kontaktieren“ akzeptierst Du die Allgemeinen Nutzungsbedingungen, denen Du jederzeit widersprechen kannst. Weitere Informationen zum Datenschutz

Über den Anbieter

Alte Landstr. 21, 85521 Ottobrunn
Nicolai CzernyDein Kontakt

Weitere Unterlagen

Online-ID: 2jexc5d
Referenznummer: 99094#hl7AaD
Grundstücksgesellschaft Czerny
Grundstücksgesellschaft Czerny
Bewertung: 5 von 5 Sternen
Nachricht hinzufügen
Mit der Nutzung der oben angegebenen Telefonnummer oder durch Klicken auf „Kontaktieren“ akzeptierst Du die Allgemeinen Nutzungsbedingungen, denen Du jederzeit widersprechen kannst. Weitere Informationen zum Datenschutz
Wie zufrieden bist du mit dieser Seite (nicht mit der Immobilie selbst)?