Version: 8.24.0Navigation überspringen
4.000 €
648 m² Lagerfläche  •  teilbar ab 324 m²
Immowelt logo

Werkstatt zur Miete • provisionsfrei
4.000 €
648 m² Lagerfläche  •  teilbar ab 324 m²

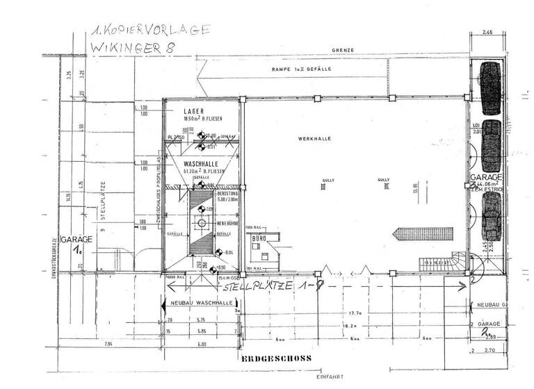
648m² Werkstatt über 2 Etagen mit Hebebühnen, Waschhalle und Stellplätzen im Industriegebiet

Die optimal geschnittene und leicht zugängliche Autowerkstatt erstreckt sich über zwei Etagen. Im Erdgeschoss findet sich die Hauptwerkstatt, während im Untergeschoss, das über einen seitlichen Zugang für Fahrzeuge verfügt, eine vielseitig nutzbare Schreinerei untergebracht ist. Diese Immobilie befindet sich im industriellen Herzen von Königsbrunn und bietet zahlreiche Annehmlichkeiten: Dazu zählen drei Hebebühnen, eine geräumige Waschhalle, ein Lagerbereich sowie acht Stellplätze für Kundenfahrzeuge. Der geflieste Boden in der Werkstatt sorgt für eine praktische und leicht zu reinigende Oberfläche, und die teilweise neue Elektrik stellt sicher, dass alle Geräte effizient betrieben werden können.

Merkmale

  • frei ab sofort
  • 600 m² Grundstück
  • Außen-Stellplatz
  • Barrierefrei
  • Hebebühne
  • Bodenbelag: Fliesen
  • Beleuchtung: Deckenbeleuchtung
Der großzügige Autowerkstattbereich bietet Ihnen nicht nur drei leistungsstarke Hebebühnen, sondern umfasst auch eine neu installierte, kleine Lackierhalle, die unbenutzt auf ihre erste Nutzung wartet. Die Waschhalle ist mit einem effizienten Ölabscheider ausgestattet und verfügt über ein praktisches Rolltor sowie separate Sanitäranlagen, die eine vorbereitete Dusche mit einschließen. In der großzügigen Schreinerei finden Sie eine hochwertige Absauganlage und eine voll ausgestattete Küche, die den Arbeitsalltag erheblich erleichtert. Der Zugang zum unterirdischen Bereich erfolgt bequem über den Innenhof, während Ihnen acht Stellplätze direkt vor dem Gebäude zur Verfügung stehen, die ausreichend Platz für Ihre Fahrzeuge bieten.

Grundrisse

Grundrisse
1 / 2

Realisiere Dein Projekt

Bausubstanz und Energie

Energieausweis

Ein Energieausweis ist für diesen Gebäudetyp nicht notwendig.
  • HeizungsartEtagenheizung
  • EnergieträgerÖl
Immowelt logo

Mietkosten

Nettomiete
4.000 €
Nebenkosten
322 €
Heizkosten
nicht in Nebenkosten enthalten
Provision für Mieter
provisionsfrei
Kaution
3 Kaltmieten

Lage

address-icon
Wikingerstraße 8Königsbrunn (86343)
Die Lage im Gewerbegebiet von Königsbrunn, unweit von Augsburg, zeichnet sich durch ihre hervorragende Erreichbarkeit aus. Die unmittelbare Nähe zur B17 ermöglicht einen schnellen Zugang zur Autobahn A8.

Weitere Services

Lust auf eine Besichtigung?
Eine Frage zur Immobilie?
Nachricht hinzufügen
Mit der Nutzung der oben angegebenen Telefonnummer oder durch Klicken auf „Kontaktieren“ akzeptierst Du die Allgemeinen Nutzungsbedingungen, denen Du jederzeit widersprechen kannst. Weitere Informationen zum Datenschutz

Über den Anbieter

Oberer Graben 25, 86152 Augsburg
partner badge
Partnerschaft
Frau Christiane Lembert
Frau Christiane LembertDein Kontakt
Online-ID: 2nyk35h
home Immobilien GmbH
title
home Immobilien GmbH
Bewertung: 4 von 5 Sternen
Nachricht hinzufügen
Mit der Nutzung der oben angegebenen Telefonnummer oder durch Klicken auf „Kontaktieren“ akzeptierst Du die Allgemeinen Nutzungsbedingungen, denen Du jederzeit widersprechen kannst. Weitere Informationen zum Datenschutz
Wie zufrieden bist du mit dieser Seite (nicht mit der Immobilie selbst)?