Version: 8.26.0Navigation überspringen
8,45 €
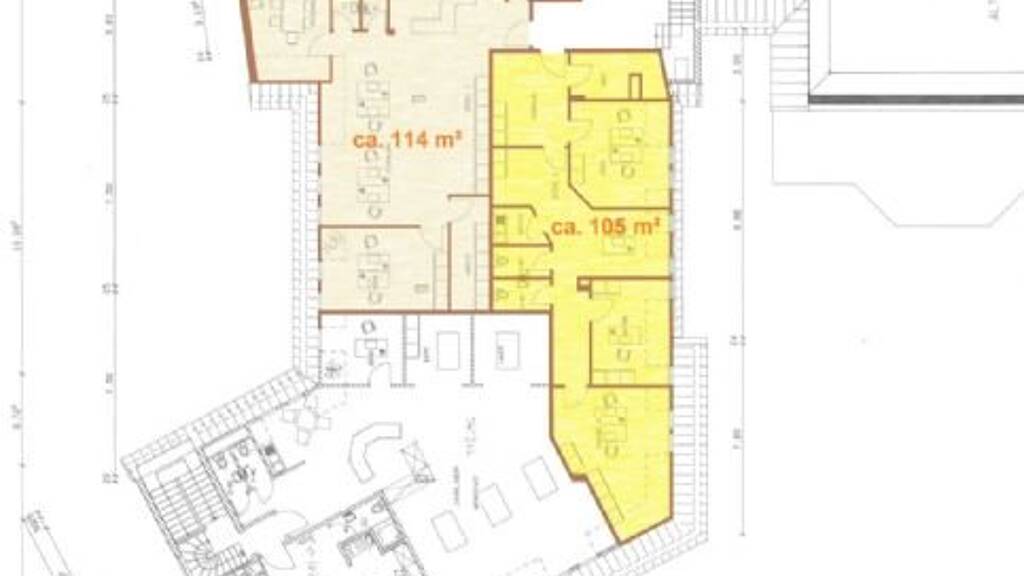
219 m² Bürofläche  •  teilbar ab 105 m²
Immowelt logo

Bürogebäude zur Miete • provisionsfrei
8,45 €
/m²
219 m² Bürofläche  •  teilbar ab 105 m²

Büroflächen im Herzen Roths nähe Schloss

In der Nähe des Rother Schloss am Altstadtring werden Büroflächen in verschiedenen Größen vermietet.
Im 2.OG befindet sich eine Büroeinheit mit 114 m² sowie Alternativ mit 105 m² frei zur Anmietung. Weitere Flächen im 1. Obergeschoss mit 390 m² und mit 217 m² sind vorhanden.
Die Flächen können je nach Absprache mit dem Eigentümer getrennt bzw. zusammengelegt werden.
Die Büroeinheit wird nach Mieterwünschen neu ausgebaut; Bezug kann ca. 3 Monate nach Mietvertragsabschluss erfolgen.
Als Grundausstattung sind Teppichboden, abgehängte Rasterdecken, sowie Anschlüsse für eine Teeküche kalkuliert.
Die Mietdauer beträgt 10 Jahre - bei einem Mietverhältnis mit einer Laufzeit von lediglich 5 Jahren ist dem Vermieter ein Baukostenzuschuss zu bezahlen. Die Miete beträgt 8,45 € / m² zzgl. Betriebskosten-Vorauszahlung zzgl. MwSt. Im Untergeschoss liegt eine Tiefgarage mit insgesamt 33 Kfz-Stellplätzen.
Keine zusätzliche Mieterprovision!

Merkmale

  • Bezug: kurzfristig möglich
  • 2. Geschoss
- flexible Flächen möglich
- 33 Tiefgaragen-Stellplätze
- zentrale Lage

Grundrisse

Verschaffe dir einen genauen Überblick über die Raumaufteilung.selection_property_house-icon

Bausubstanz und Energie

Energieausweis

Endenergieverbrauch (Wärme)

Endenergieverbrauch (Strom)

  • Baujahr1989
  • Zustand der ImmobilieMassivhaus, Gepflegt
Immowelt logo

Mietkosten

Nettomiete zzgl. Nebenkosten
8,45 €/m²
1.851 €
Provision für Mieter
provisionsfrei
Kaution
3 Monatsmieten
Weitere Preisinformationen
Nettokaltmiete: 1.851,00 EUR

Lage

address-icon
Roth (91154)
Der Anbieter hat die genaue Adresse nicht freigegeben

Weitere Informationen

Sonstiges Es liegt ein Energieverbrauchsausweis vor.
Dieser ist gültig bis 3.2.2030.
Endenergieverbrauch beträgt kwh/(m²*a).
Wesentlicher Energieträger der Heizung ist Gas.

Ihr Ansprechpartner:
Stefan Wartzack

wartzack@ri-immobilien.de Stichworte Gesamtfläche: 219,00 m², Distanz zur nächsten Einkaufsmöglichkeit: 0.50, Distanz zur Autobahn: 1.00, Distanz vom Zentrum: 1.00

Weitere Services

Lust auf eine Besichtigung?
Eine Frage zur Immobilie?
Mit einer persönlichen Nachricht hast du bessere Chancen auf eine Antwort.
Mit der Nutzung der oben angegebenen Telefonnummer oder durch Klicken auf „Kontaktieren“ akzeptierst Du die Allgemeinen Nutzungsbedingungen, denen Du jederzeit widersprechen kannst. Weitere Informationen zum Datenschutz

Über den Anbieter

O'Brien-Str. 3, 91126 Schwabach
partner badge
10 Jahre Partnerschaft
Herr Stefan Wartzack
Herr Stefan WartzackDein Kontakt
Online-ID: 23G33CGJYDSV
Referenznummer: 4027
Wie zufrieden bist du mit dieser Seite (nicht mit der Immobilie selbst)?