Version: 8.22.6Navigation überspringen
959.000 €
4 Zimmer  •  146 m²  •  524 m² Grundstück
Immowelt logo

Einfamilienhaus zum Kauf
959000 €
7.534 €/m²
4 Zimmer  •  146 m²  •  524 m² Grundstück

Hochwertig ausgestattetes Architektenhaus in kurzer Distanz zum Bodensee

Das ideal nach Süd-Westen ausgerichtete Grundstück befindet sich in direkter Feldrandlage. Mit einer Lorbeerhecke fast vollständig eingefriedet, bietet es ein hohes Maß an Privatsphäre in dieser ohnehin äußerst ruhigen Lage. Das leicht abfallende Grundstück ist liebevoll und dennoch pflegeleicht angelegt. Die Sonnenterrasse, belegt mit Holzdielen, und das daran angrenzende Poolbecken sind nur zwei der Highlights dieses einzigartigen Angebots.

Bebaut wurde das Grundstück im Jahr 2013 mit einem Einfamilienhaus in Holzständerbauweise. Eine großzügige Wohnfläche von ca. 146 m² verteilt sich auf ein Vollgeschoss und das ausgebaute Dachgeschoss in welchem sich noch Ausbaupotential für eine große Dachgaube befindet welche z.B. als Home Office genutzt werden kann.

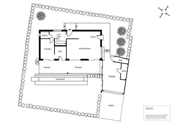
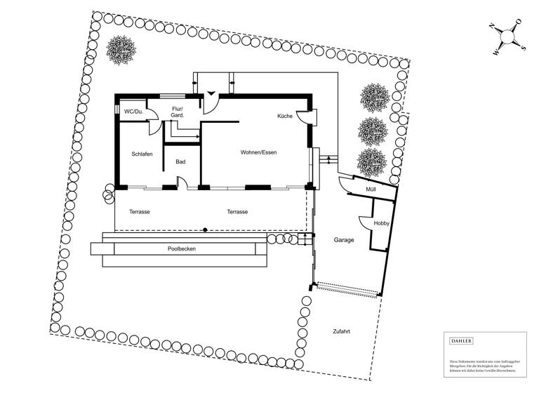
Über die Auffahrt ist die Garage zu befahren, über welche der Eingang des Hauses im Nord-Osten zu erreichen ist. Das Erdgeschoss ist in einen privaten und einen Wohnbereich unterteilt. Die offene Küche fügt sich hervorragend in den Wohn- und Essbereich ein. Bodentiefe Fensterfronten sowie eine breite Schiebetür lassen viel Tageslicht herein und schaffen eine lichtdurchflutete Atmosphäre. An sonnigen Tagen wird die Terrasse gern zum zweiten Wohnzimmer und kann mittels Markise verschattet werden.

Abschließend bietet diese Ebene ein Duschbad sowie das Master-Schlafzimmer mit Wannenbad. In diesem Bereich bestehen ebenso bodentiefe Fenster und ein Zugang auf die Terrasse mit Blick in den Garten.

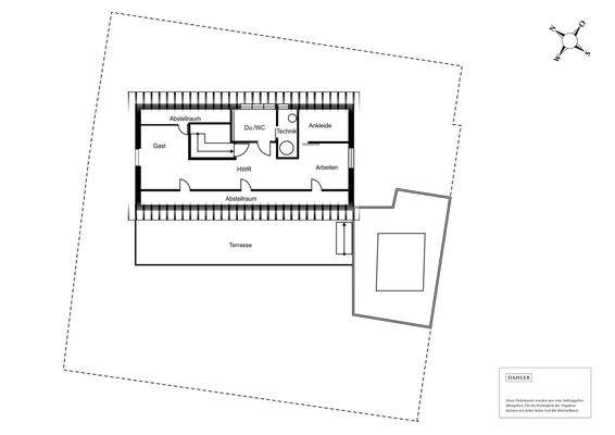
Das Dachgeschoss beherbergt zwei Abseiten für zusätzlichen Stauraum, ein Duschbad sowie zwei separate Bereiche, welche gut als Gästebereich und Büro bzw. Kinderzimmer nutzbar sind.

Beheizt wird die Immobilie über eine Gasheizung, verlegt als Fußbodenheizung. Die Versorgung mit Warmwasser erfolgt über eine Solaranlage auf dem Dach. Die doppelt verglasten Holzfenster sind mit Außenjalousien versehen.

Merkmale

  • Bezug: nach Vereinbarung
  • 524 m² Grundstück
  • Garage
  • Terrasse
* gehobene Ausstattung mit Vollholzparkett aus Eiche
* Mittelblock in der Küche mit Gasherd, Backofen, Spülbecken und reichlich Stauraum
* Holzfronten und Arbeitsplatte passend zum Bodenbelag
* Küchenzeile hinter breiten Schiebetüren, Kühl-/Gefrierkombination und weiterer Stauraum integriert
* maßgefertigte Schrankwand im Wohnbereich
* Natursteinwand mit TV-Anschlüssen als Blickfang
* Duschbad im Erdgeschoss mit großformatigen, beigen Wand- und Mosaikbodenfliesen, Waschbecken, WC und offener Dusche
* Duschbad im Obergeschoss mit großformatigen, grauen Boden- und Wandfliesen in Holzoptik, Waschbecken, WC und bodengleicher Dusche mit Glasabtrennung
* Bad en Suite im Erdgeschoss als Wellnessoase mit Badewanne, Waschbecken auf Holzwaschtisch und Handtuchheizung
* Deckenspots im gesamten Haus

Grundrisse

Grundrisse
1 / 2

Realisiere Dein Projekt

Bausubstanz und Energie

Energieausweis

A
  • Baujahr2013
  • Zustand der ImmobilieGepflegt
  • HeizungsartFußbodenheizung
  • EnergieträgerGas
Immowelt logo

Preisdetails

Kaufpreis
959000 €
7.534,25 €/m²
Provision für Käufer
3,57 % inkl. der gesetzl. MwSt., bezogen auf den Kaufpreis
Weitere Preisinformationen
1 Garagenstellplatz
Geschätzte Gesamtkosten
1.060.366 €1
Kaufpreis
959.000 €
Notarkosten (1,5%)
14.385 €
Grunderwerbsteuer (5%)
47.950 €
Provision für Käufer (3,57%)
34.236 €
Grundbucheintrag (0,5%)
4.795 €
1Der angezeigte Wert ist eine automatisch berechnete Schätzung von immowelt.
2Bei den Angaben handelt es sich um ortsübliche Werte. Individuelle Kosten können abweichen.

Lage

address-icon
BonndorfÜberlingen (88662)
Der Anbieter hat die genaue Adresse nicht freigegeben
Das angebotene Einfamilienhaus befindet sich in Bonndorf, dem nordwestlichsten Ortsteil Überlingens. Mit guter Anbindung an die Kreisstadt und die Gemeinde Bodman-Ludwigshafen lässt sich ein entspannter und ruhiger Lebensstil mit allen Vorzügen einer exzellenten Infrastruktur auf der Sonnenseite des Bodensees vereinen.

Der etwa 550 Einwohner umfassende Ortsteil Bonndorf bietet im Norden eine reine Wohnsiedlung mit Einfamilienhausbebauung. Das hier vorgestellte Einfamilienhaus befindet sich in äußerst ruhiger Ortsrandlage und bietet daher eine Mischung aus naturnaher Lage mit schneller Anbindung an das Stadtzentrum, welches in etwa 10 Minuten mit dem Auto erreicht ist.

Golfen, Wandern, Baden in der Therme - Überlingen hat viele Freizeitaktivitäten zu bieten und ist daher auch bei Urlaubern ein sehr beliebtes Ziel. Die traditionsreiche Gartenstadt vermittelt durch die zahlreichen Grünanlagen ein entschleunigtes Lebensgefühl. Die Stadt Bodman-Ludwigshafen ist ebenso schnell erreicht und bietet weitere Freizeitmöglichkeiten.

Wer gute Gastronomie, die Nähe zum Bodensee, ein charmantes Stadtflair und die Herzlichkeit des Südens zu schätzen weiß, ist hier genau richtig. Besorgungen des täglichen Bedarfs können in dem zentral gelegenen Edeka getätigt werden. Auch eine Apotheke ist in wenigen Minuten mit dem Auto erreicht. Für eine große Auswahl an Restaurants, Cafés, Boutiquen und weiteren Einkaufsmöglichkeiten ist es bis zum Überlinger Stadtzentrum nicht weit. Das Krankenhaus Helios Spital ist ebenfalls lediglich vier Kilometer entfernt gelegen.

Überlingen ist bekannt für herausragende Bildungseinrichtungen wie das Salem Kolleg, regional und überregional eine der traditionsreichsten und bekanntesten schulischen Einrichtungen. Kindergärten, Grundschulen sowie weiterführende Schulen sind allesamt gut erreichbar.

Die Anbindung ist dank des gut vernetzten Bundesstraßennetz sehr gut und Fernziele sind schnell erreicht. Für den Nahverkehr besteht ein Busliniennetz. Aus Überlingen sowie Bodman-Ludwigshafen fahren einige Fähren zu beliebten Ausflugszielen am See ab.

Weitere Informationen

Stichworte Garage vorhanden, Anzahl der separaten WCs: 1, Anzahl Terrassen: 1, 2 Etagen

Weitere Services

Lust auf eine Besichtigung?
Eine Frage zur Immobilie?
Nachricht hinzufügen
Mit der Nutzung der oben angegebenen Telefonnummer oder durch Klicken auf „Kontaktieren“ akzeptierst Du die Allgemeinen Nutzungsbedingungen, denen Du jederzeit widersprechen kannst. Weitere Informationen zum Datenschutz

Über den Anbieter

Im Hafengießer 6, 88662 Überlingen
partner badge
Partnerschaft
Frau Cornelia von SchevenDein Kontakt
Online-ID: 2fazp5d
Referenznummer: DC-UEB610
DAHLER Überlingen
DAHLER Überlingen
Bewertung: 4 von 5 Sternen
Nachricht hinzufügen
Mit der Nutzung der oben angegebenen Telefonnummer oder durch Klicken auf „Kontaktieren“ akzeptierst Du die Allgemeinen Nutzungsbedingungen, denen Du jederzeit widersprechen kannst. Weitere Informationen zum Datenschutz
Wie zufrieden bist du mit dieser Seite (nicht mit der Immobilie selbst)?