

DAHLER Augsburg
Frau Kirsten Mortensen
082 ···
Nr. anzeigenPreise & Kosten
Provision für Käufer
3,00 Prozent inkl. der gesetzl. MwSt., bezogen auf den Kaufpreis
Lage
* Die Doppelhaushälfte befindet sich in der Stadt Königsbrunn, einer lebhaften Stadt in Bayern, die über eine ausgezeichnete Anbindung verfügt
* Das Haus liegt in einer ruhigen und familienfreundlichen Wohngegend, ideal für alle, die nach einem friedlichen Rückzugsort suchen
* Das Zentrum der drittgrößten Stadt Bayerns...
Das Haus
Kategorie
Doppelhaushälfte
Baujahr
1990
Derzeitige Nutzung
vermietet
Energie & Heizung
Warum sehe ich diese Anzeige? – Du siehst diese Anzeige basierend auf Ihrer Navigation auf unserer Website und den Suchkriterien, die du verwendet hast.
Energieausweistyp
Verbrauchsausweis
Gebäudetyp
Wohngebäude
Baujahr laut Energieausweis
1990
Wesentliche Energieträger
GAS
Gültigkeit
bis 04.03.2035
Effizienzklasse
D
Endenergieverbrauch
124,70 kWh/(m²·a)
Weitere Energiedaten
Energieträger
Gas
Heizungsart
offener Kamin, Zentralheizung
Details
Objektbeschreibung
* Doppelhaushälfte, Baujahr 1990
* Gesamtgrundstück ca. 386 m² (davon entfallen auf die Garage mit Stellplatz davor ca. 36 m²)
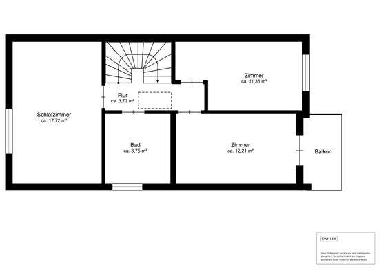
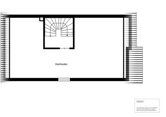
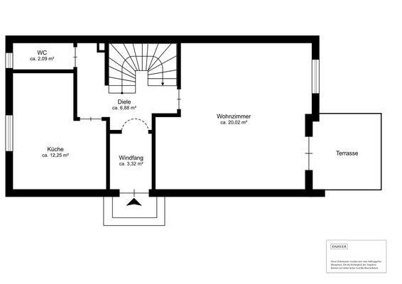
* Wohnfläche ca. 130 m² aufgeteilt auf 3 Etagen (EG, OG, DG) und Balkon
* großer Garten umrahmt mit einer hohen Hecke
* Südterrase mit Markise
* Garten auf der Nordseite mit...
Ausstattung
* neue Eingangstür (2024) und neue Fenster auf der Westseite (2024)
* gemütlicher Kachelofen im Wohnzimmer
* Wohnzimmer, Küche und Flur sind mit Fliesen ausgestattet
* vom Wohnzimmer aus gelangt man auf die sonnige Südterrasse
* Fußbodenheizung im Erdgeschoss und Bad im Obergeschoss
* 3 Schlafzimmer mit...
Preisinformation
1 Garagenstellplatz
Weitere Informationen
Sonstiges
Grunderwerbsteuer, Notar- und Grundbuchkosten sind vom Käufer zutragen. Die Provision in Höhe von 3,57 Prozent inkl. der gesetzl. MwSt., bezogen auf den Kaufpreis ist bei Abschluss des Kaufvertrages verdient und fällig und vom Käufer an die DAHLER Augsburg, Inhaber: Homes Bayern GmbH zu zahlen. DAHLER Augsburg...
Anbieter der Immobilie
DAHLER Augsburg
Karlstraße 2, 86150 Augsburg

Online-ID: 2jxpe5k
Referenznummer: DC-AUG3116
Finde Angebote wie dieses
Hier geht es zu unserem Impressum, den Allgemeinen Geschäftsbedingungen, den Hinweisen zum Datenschutz und nutzungsbasierter Online-Werbung.