Version: 8.22.4Navigation überspringen
420.000 €
3 Zimmer  •  EG
Immowelt logo

Wohnung zum Kauf
420000 €
3 Zimmer  •  EG

Provisionsfrei! Hoher Wohngenuss in Innsbruck-Arzl, 3 Zimmer-Gartenwohnung

In der Wohnanlage Arzl-Schlums in der Arzler Straße 38a gelangt eine 3 Zimmer-Gartenwohnung zum Verkauf.

Die Wohnanlage wurde im Jahr 2000 von der Neue Heimat Tirol errichtet.

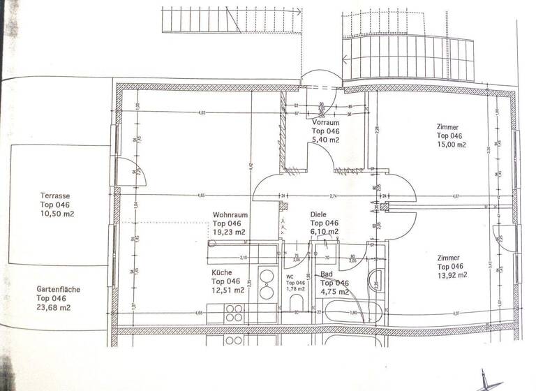
Der offene, durchdachte und großzügige Grundriss ermöglicht noch individuelle Gestaltungsmöglichkeiten des Eingangs/Wohn- und Küchenbereiches.

 

_RAUMAUFTEILUNG:_

* Eingangsbereich mit Fliesenboden
* offener Wohn- und Essbereich
* offene Küche mit Fliesenboden
* 2 Schlafzimmer mit Vinylboden und ostseitiger Ausrichtung
* 1 Badezimmer mit Badewanne und Anschluss für die Waschmaschine
* 1 separates WC
* Terrasse westseitig
* Garten westseitig
* 1 Kellerabteil
* 1 Tiefgaragenabstellplatz

_KAUFPREIS:_

* € 420.000,--

_Derzeit noch vermietet!_

_Der Mietvertrag hat eine Laufzeit bis zum 30.11.2027. Der monatliche Nettomietzins (ohne Betriebs- und Heizkosten) beträgt inkl. PKW-Stellplatz € 1.400,--._

 

_KAUFERWERBSNEBENKOSTEN:_

* lt. Beiblatt und insbesondere
* 3,5 % Grunderwerbsteuer
* 1,1 % Grundbuchseintragungsgebühr (Neuerungen seit 1.7.2024)
* Kosten für die Errichtung des Kaufvertrages und Treuhandschaft lt. Anwaltstarif zuzügl. USt. und Barauslagen

Ich freue mich auf Ihre Kontaktaufnahme!

_ANMERKUNG:_

Die angeführten Angaben und Informationen dienen lediglich als unverbindliche Vorinformation und bleiben somit ohne jede Gewähr. Die Angaben erfolgen aufgrund jener Informationen und Unterlagen, welche der DeinSein Immo Krallinger GmbH von Dritten zur Verfügung gestellt wurden.

Achtung!

Bitte beachten Sie, dass wir aufgrund geänderter Konsumentschutzbestimmungen und der Nachweispflicht gegenüber dem Abgeber nur Anfragen mit vollständigen Kontaktdaten beantworten können.

 

 

 

Der Vermittler ist als Doppelmakler tätig.

Infrastruktur / Entfernungen

Gesundheit
Arzt <500m
Apotheke <500m
Klinik <2.000m
Krankenhaus <1.500m

Kinder & Schulen
Schule <1.000m
Kindergarten <1.000m
Universität <2.000m
Höhere Schule <1.000m

Nahversorgung
Supermarkt <500m
Bäckerei <500m
Einkaufszentrum <500m

Sonstige
Bank <1.000m
Geldautomat <1.000m
Post <1.500m
Polizei <1.000m

Verkehr
Bus <500m
Straßenbahn <1.000m
Bahnhof <1.500m
Autobahnanschluss <3.000m
Flughafen <6.500m

Angaben Entfernung Luftlinie / Quelle: OpenStreetMap

Merkmale

  • Bezug: nach Absprache
  • Erdgeschoss
  • offene Küche
  • Garage
  • Gäste-WC
  • Terrasse
  • Badewanne

Grundrisse

Grundrisse
1 / 1

Realisiere Dein Projekt

Bausubstanz und Energie

Heizwärmebedarf (HWB)

C

Gesamtenergieeffizienz (fGEE)

C
  • Baujahr2000
  • HeizungsartZentralheizung
  • EnergieträgerGas
Immowelt logo

Preisdetails

Kaufpreis
420000 €
Preis pro Stellplatz
9 €
Provision für Käufer
Bitte beachte, das Angebot kann bei Vertragsabschluss die Zahlung einer Provision beinhalten. Weitere Informationen erhältst Du vom Anbieter.
Weitere Preisinformationen
1 Garagenstellplatz, Miete: 9,00 EUR

Lage

address-icon
Innsbruck (6020)

Weitere Informationen

Stichworte Tiefgarage vorhanden, West-Balkon/Terrasse, Nutzfläche: 78,70 m², Anzahl der Badezimmer: 1, Anzahl der separaten WCs: 1, Anzahl Terrassen: 1, Balkon-Terrassen-Fläche: 10,50 m², Gartenfläche: 23,68 m², Kellerfläche: 3,57 m², Bundesland: Tirol

Weitere Services

Lust auf eine Besichtigung?
Eine Frage zur Immobilie?
Nachricht hinzufügen
Mit der Nutzung der oben angegebenen Telefonnummer oder durch Klicken auf „Kontaktieren“ akzeptierst Du die Allgemeinen Nutzungsbedingungen, denen Du jederzeit widersprechen kannst. Weitere Informationen zum Datenschutz

Über den Anbieter

Vogeltennen 2, 6111 Volders
partner badge
Partnerschaft
Frau Barbara KrallingerDein Kontakt
Online-ID: 2nbyb5c
Referenznummer: OBGC20251209094142028749c7868c5
DeinSein Immo Krallinger GmbH
DeinSein Immo Krallinger GmbH
Nachricht hinzufügen
Mit der Nutzung der oben angegebenen Telefonnummer oder durch Klicken auf „Kontaktieren“ akzeptierst Du die Allgemeinen Nutzungsbedingungen, denen Du jederzeit widersprechen kannst. Weitere Informationen zum Datenschutz
Wie zufrieden bist du mit dieser Seite (nicht mit der Immobilie selbst)?