Version: 8.25.1Navigation überspringen
2.300 €
5 Zimmer  •  151 m²  •  180 m² Grundstück
Immowelt logo

Haus zur Miete
2.300 €
5 Zimmer  •  151 m²  •  180 m² Grundstück

Großzügiges Wohnen im MTK: 5 Zimmer, viel Potenzial!

Dieses großzügige 5-Zimmer-Haus besticht durch eine hochwertige Ausstattung und eine durchdachte Raumaufteilung auf allen Ebenen.
Schon beim Betreten des Erdgeschosses wird der besondere Charakter deutlich: Ein edler Granitboden zieht sich durch den Flur und die Wohnbereiche und sorgt in Kombination mit der Fußbodenheizung (im gesamten Haus) für ein luxuriöses und zugleich behagliches Wohnklima. In den Zimmern wurden hochwertige Feinsteinfliesen verlegt, die modern und pflegeleicht zugleich sind.
Das Herzstück des Hauses ist die voll ausgestattete Einbauküche, die bereits mit einem Kühlschrank und einer Spülmaschine auf Sie wartet. Für maximalen Komfort sorgen zwei Badezimmer sowie ein zusätzliches Gäste-WC.

Merkmale

  • Bezug: Sofort
  • 180 m² Grundstück
  • Einbauküche
  • Kein Keller
  • 2 Stellplätze: 2 Garagen
Zimmer: 5 großzügig geschnittene Zimmer
Heizung: Moderne Fußbodenheizung im gesamten Objekt (inkl. Keller)
Energieeffizienz: Energieverbrauchsklasse B (58 kWh/(m²·a))
Böden: Edler Granit im Erdgeschoss und im Treppenbereich, hochwertige Feinsteinfliesen in den Zimmern
Küche: Einbauküche inklusive Elektrogeräten (Kühlschrank, Spülmaschine)
Sanitär: 2 Badezimmer sowie 1 Gäste-WC (ein Bad und das Gäste-WC mit Fenster)
Außenbereich: Eigener Garten zur Entspannung
Parken: 2 Stellplätze im Innenhof direkt am Haus

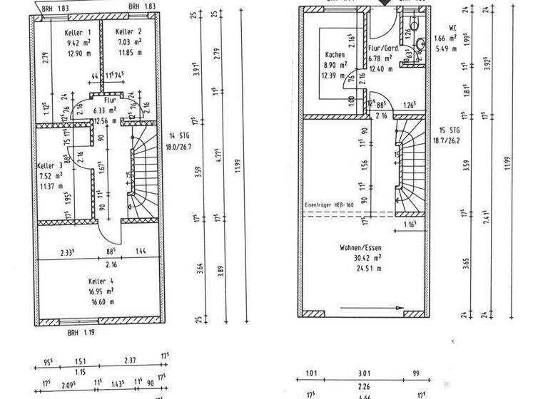
Grundrisse

Grundrisse
1 / 2

Realisiere Dein Projekt

Bausubstanz und Energie

Möchtest du Details zum Energieverbrauch?info_energy_calculation-icon
  • Baujahr2006
  • Zustand der Immobilierenoviert / saniert
Immowelt logo

Mietkosten

Kaltmiete
15,23 €/m²
2.300 €
Nebenkosten
350 €
Heizkosten
in Warmmiete enthalten
Zusätzliche Kosten
Miete pro Stellplatz
50 €
Kaution
6900 €
Weitere Preisinformationen
2 Garagenstellplätze, Miete je: 50,00 EUR

Lage

address-icon
Schwalbach a.T. (65824)
Der Anbieter hat die genaue Adresse nicht freigegeben
Schwalbach am Taunus kombiniert naturnahes Wohnen mit einer erstklassigen Infrastruktur direkt vor den Toren Frankfurts. Das Haus befindet sich in einer äußerst familienfreundlichen Lage, in der alle wichtigen Ziele des täglichen Lebens fußläufig erreichbar sind:

Schulen: Das Albert-Einstein-Gymnasium ist nur ca. 700 m entfernt, die Friedrich-Ebert-Schule ist 1700 m entfernt, die Grundschule (Geschwister-Scholl-Schule) erreichen Sie nach ca. 1.000 m - ideal für einen sicheren Schulweg.
Einkaufen: Mehrere Supermärkte und Geschäfte des täglichen Bedarfs liegen in unmittelbarer Nähe (ca. 300-400 m).
Anbindung: Schwalbach bietet eine hervorragende S-Bahn-Anbindung (S3) nach Frankfurt und Bad Soden sowie einen schnellen Autobahnanschluss (A66/A5).

Weitere Informationen

Stichworte Garage vorhanden, Nutzfläche: 151,00 m², Anzahl der Badezimmer: 2

Weitere Services

Lust auf eine Besichtigung?
Eine Frage zur Immobilie?
Mit einer persönlichen Nachricht hast du bessere Chancen auf eine Antwort.
Mit der Nutzung der oben angegebenen Telefonnummer oder durch Klicken auf „Kontaktieren“ akzeptierst Du die Allgemeinen Nutzungsbedingungen, denen Du jederzeit widersprechen kannst. Weitere Informationen zum Datenschutz

Über den Anbieter

Gundermannstr. 80, 80935 München
partner badge
Partnerschaft
SV Immobilien UGDein Kontakt
Keine Telefonnummer hinterlegt
Keine Telefonnummer hinterlegt
Online-ID: 26REM5UMT1PW
Referenznummer: jPk-3fbe
selbst vermarkten
selbst vermarkten
Bewertung: 4,2 von 5 Sternen
Mit einer persönlichen Nachricht hast du bessere Chancen auf eine Antwort.
Mit der Nutzung der oben angegebenen Telefonnummer oder durch Klicken auf „Kontaktieren“ akzeptierst Du die Allgemeinen Nutzungsbedingungen, denen Du jederzeit widersprechen kannst. Weitere Informationen zum Datenschutz
Wie zufrieden bist du mit dieser Seite (nicht mit der Immobilie selbst)?