PROVISIONSFREI - Baujahr: 2025 – Erstbezug! 2-Zimmer-Whg. mit Süd-West-Balkon in 91807 Solnhofen
Dies ist eine der 6 Neubauwohnungen. Sollten Sie Interesse an weiteren Wohnungen in diesem Objekt haben, melden Sie sich gerne bei uns, dann erhalten Sie selbstverständlich die entsprechenden Exposés.
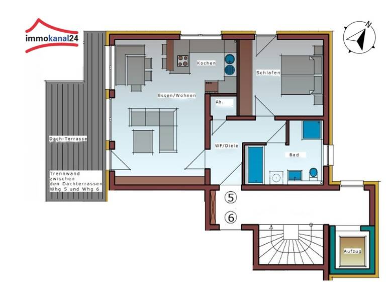
Die 2-Zimmer-Wohnung mit ca. 70,25 m² Wohnfläche befindet sich im 2. Obergeschoss eines modernen Mehrfamilienhauses mit nur sechs Wohneinheiten und Aufzug.
Die Wohnung überzeugt durch einen großzügigen Wohn- und Essbereich mit offener Küche, ein helles Schlafzimmer sowie ein stilvolles Badezimmer mit Fenster, Dusche und Badewanne. Ein praktischer Abstellraum rundet den Grundriss ab. Vom Wohnzimmer aus gelangen Sie direkt auf den sonnigen Süd-West-Balkon – ideal zum Entspannen und Genießen.
Zur Wohnung gehört ein eigener Kelleranteil; gemeinschaftlich stehen ein Fahrradkeller, Wasch- und Trockenraum sowie der Heiz- und Technikraum zur Verfügung.
Merkmale
frei ab sofort
2. Geschoss
offene Küche
Personenaufzug
Außen-Stellplatz
Balkon
Fernblick
Grundrisse
Grundrisse
1 / 1
Realisiere Dein Projekt
Bausubstanz und Energie
Energieausweis
A+
Baujahr2025
HeizungsartFußbodenheizung
EnergieträgerElektro, Luft-/Wasser-Wärmepumpe
Preisdetails
Kaufpreis
298000 €298.000 €
4.241,99 €/m²
Preis pro Stellplatz
8800 €8.800 €
Provision für Käufer
provisionsfrei
Geschätzte Gesamtkosten
314.390 €1
Kaufpreis
298.000 €
Kaufnebenkosten
16.390 €
2
Notarkosten (1,5%)
4.470 €
Grunderwerbsteuer (3,5%)
10.430 €
Grundbucheintrag (0,5%)
1.490 €
1Der angezeigte Wert ist eine automatisch berechnete Schätzung von immowelt.
2Bei den Angaben handelt es sich um ortsübliche Werte. Individuelle Kosten können abweichen.
Lage
Solnhofen (91807)
Der Anbieter hat die genaue Adresse nicht freigegeben
Die Wohnung befindet sich in ruhiger Wohnlage in Solnhofen, einer charmanten Gemeinde im Naturpark Altmühltal. Einkaufsmöglichkeiten für den täglichen Bedarf, Bäcker, Arztpraxis, Kindergarten und Grundschule sind im Ort vorhanden und in wenigen Minuten erreichbar. Der Bahnhof Solnhofen bietet gute Zugverbindungen nach Treuchtlingen und Eichstätt. Über die Bundesstraße B13 ist eine schnelle Anbindung an die Städte Weißenburg, Ingolstadt und Nürnberg gewährleistet. Die idyllische Umgebung lädt zu Spaziergängen, Radtouren und Freizeitaktivitäten in der Natur ein.
Weitere Informationen
Sonstiges
Info: Anzahl Etagen: 3
Bitte beachten: Anfragen ohne gültiger E-Mail-Adresse und Telefonnummer können nicht bearbeitet werden.
Alle Angaben ohne Gewähr. Die Inhalte dieses Exposés stammen vom Anbieter. Grundrisse sind nicht maßstabsgetreu. Für Daten Dritter übernehmen wir keine Haftung. Das Angebot ist nur für Sie bestimmt und darf nicht an Dritte weitergegeben werden.
Der Makler weist ausdrücklich darauf hin, dass er auch für den Verkäufer eine provisionspflichtige Nachweis- und/oder Vermittlungstätigkeit aufgenommen hat und davon Gebrauch nehmen kann, sofern dies nicht zu einer vertragswidrigen Kollision mit den Interessen des Kaufinteressenten führt.
Vereinbaren Sie gleich noch heute Ihren Besichtigungstermin. Um eine schnelle Bearbeitung Ihrer Anfrage zu gewährleisten, geben Sie bitte Ihre vollständige Anschrift mit Telefonnummer an, Herr Schiller wird Sie umgehend kontaktieren.