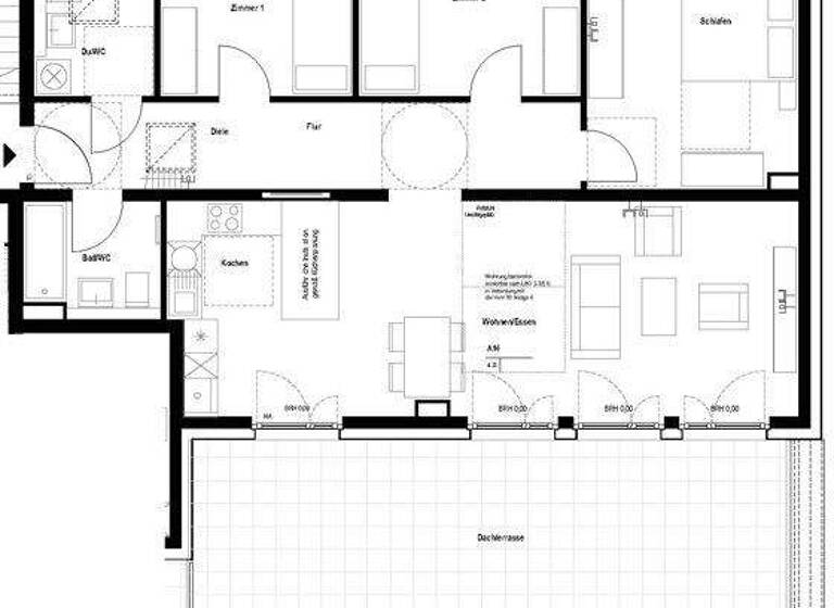
Auf der gigantische Dachterrasse die Seele baumeln lassen! Penthouse-Wohnung mit 4 Zimmer, 135 m² + EBK!
Ihre großzügige Penthouse-Wohnung ist in allen Wohn- und Schlafräumen mit hochwertigem Parkettboden ausgestattet. Wer helle Wohnungen mag, wird diese lichtdurchfluteten Räume lieben! Der offene Küchenraum mit komplett neuer, moderner Einbauküche schafft ein ausgesprochen angenehmes Wohnambiente. Das Highlight der drei lichtdurchfluteten Schlafzimmer ist zweifellos der jeweils großzügige Schnitt. Das elegante Bad ist mit einer Badewanne und einem WC ausgestattet, zusätzlich verfügt die Wohnung über ein Gästebad mit Dusche und WC. Besonders bequem ist auch der Waschmaschinenanschluss in Ihrer Wohnung. Die Dachterrasse stellt höchste Wohn- und Lebensqualität sicher. Zu Ihrer Wohnung gehört selbstverständlich auch ein großzügig bemessener Tiefgaragenplatz.
Auf dem ehemaligen Kindersolbad-Gelände in Bad-Friedrichshall-Jagstfeld erwarten Sie im "salt & river" 12 Mehrfamilienhäuser mit 195 hochwertigen Neubau-Wohnungen. Die 1- bis 5-Zimmerwohnungen bieten für Singles, Paare und Familien das passende Zuhause. Die Ausstattung der Wohnungen lässt keine Wünsche offen: Eichenparkettboden mit Fußbodenheizung, dreifachverglaste Schallschutzfenster, hochwertige und vollständig ausgestattete Einbauküchen mit Markengeräten, Malervlies als Wandverkleidung, modern geflieste Bäder mit Markenarmaturen, Gegensprechanlage mit Videofunktion, Breitbandkabelanschluss in allen Räumen und viele Annehmlichkeiten mehr. Die meisten Wohnungen verfügen über einen Außenbereich in Form einer Terrasse, eines Balkons oder einer Dachterrasse. Jedes Haus verfügt über eine moderne Aufzugsanlage, über welche Sie bequem Ihre gewünschte Etage erreichen können. Ein Hausmeisterservice kümmert sich liebevoll um die Pflege und Instandhaltung des Objektes und der Außenanlagen.
Erfahren Sie mehr auf unserer Projektseite: www.salt-and-river.buwog.com
Salinenstraße 4, Jagstfeld, Bad Friedrichshall (74177)
Leben am Wasser in einer sympathischen Stadt - Herzlich willkommen in der Drei-Flüsse-Salzstadt Bad Friedrichshall. Bad Friedrichshall kann ohne Übertreibung behaupten, die einzige Drei-Flüsse-Salzstadt in Deutschland zu sein. In der Stadt münden der Kocher und die Jagst in den Neckar und machen die Drei-Flüsse-Landschaft ebenso einzigartig, wie das einzige besuchbare Salzbergwerk Baden-Württembergs. Durch herrliche Radtouren und schöne Wanderwege, Segway-, Inliner- und Kanutouren entlang Kocher, Jagst und Neckar besitzt unsere Stadt einen hohen Erholungswert und bietet noch echte Naturerlebnisse und reizvolle Landschaften. In Bad Friedrichshall lässt besonders der Neckar mit einer breiten Aue Platz fürs Wirtschaftsleben, Handel, Dienstleistung, Gewerbe und Industrie in der Drei-Flüsse-Salzstadt weisen ein beeindruckendes Spektrum auf. Hier ist von der international tätigen Firma bis zum Kleinunternehmer alles zuhause. Der Bahnknotenpunkt Hauptbahnhof Bad Friedrichshall ist Knotenpunkt der Strecken Stuttgart-Würzburg und Stuttgart-Heidelberg/Frankfurt. Die Autobahnen A6 und A81 schaffen günstige Verbindungen nach Heilbronn, Stuttgart, Würzburg, Karlsruhe, Mannheim und Nürnberg.
Weitere Informationen
Sonstiges
Hinweise darüber, wie die BUWOG-Immobilien Treuhand Ihre personenbezogenen Daten als Interessent verarbeitet, erhalten Sie unter www.buwog-immobilientreuhand.de/datenschutz. Alle Angaben in diesem Exposé wurden sorgfältig und so vollständig wie möglich gemacht. Gleichwohl kann das Vorhandensein von Fehlern nicht ausgeschlossen werden. Die Angaben in diesem Expose erfolgen daher ohne jede Gewähr. Maßgeblich sind die im Mietvertrag geschlossenen Vereinbarungen. Soweit die Grundrissgrafiken Maßangaben und Einrichtungen enthalten, wird auch für diese jegliche Haftung ausgeschlossen. Mietverhandlungen sind ausschließlich über den benannten Ansprechpartner zu führen. Mietpreisänderungen bleiben vorbehalten.
Weitere Immobilienangebote finden Sie unter www.buwog-immobilientreuhand.de und in der BUWOG HOME App.