Version: 8.25.1Navigation überspringen
395.000 €
6 Zimmer  •  130 m²  •  481 m² Grundstück  •  frei ab sofort
Immowelt logo

Einfamilienhaus zum Kauf
395000 €
3.038 €/m²
6 Zimmer  •  130 m²  •  481 m² Grundstück  •  frei ab sofort

Starkes Entwicklungspotential | Einfamilienhaus mit genehmigter Neubauoption (4 WE)

Dieses Einfamilienhaus in ruhiger Lage von Ilsfeld bietet eine Kombination, die aktuell selten am Markt zu finden ist: Ein großzügiges Grundstück, solide Bestandsstruktur und gleichzeitig eine bereits genehmigte Neubauperspektive. Das bestehende Gebäude erstreckt sich über Erdgeschoss, Dachgeschoss sowie ein vollwertiges Untergeschoss und bietet eine klassische Wohnaufteilung mit insgesamt sechs Zimmern. Die Substanz bildet eine Basis für eine umfassende Renovierung - alternativ eröffnet sich hier die Möglichkeit eines Neubeginns. Besonders hervorzuheben ist die bereits vorliegende Baugenehmigung für die Errichtung eines Vierfamilienhauses. Damit richtet sich das Objekt nicht nur an Eigennutzer mit Vision, sondern insbesondere an Projektentwickler, Investoren oder Bauherren, die das Potenzial des Grundstücks voll ausschöpfen möchten. Das großzügige Grundstück mit ca. 481 m² bietet neben dem bestehenden Gebäude ausreichend Fläche für zukünftige Entwicklung. Der weitläufige Garten schafft dabei sowohl im aktuellen Zustand als auch perspektivisch attraktive Nutzungsmöglichkeiten. Abgerundet wird das Angebot durch eine Garage sowie mehrere Außenstellplätze. Einordnung: Dieses Angebot ist bewusst nicht als klassisches Einfamilienhaus zu verstehen, sondern als Projekt mit klarer Perspektive – sei es durch Sanierung des Bestands oder durch Realisierung der bereits genehmigten Neubebauung.

Merkmale

  • frei ab sofort
  • 481 m² Grundstück
  • Einbauküche, separate Küche
  • Keller
  • Garage, 3 Außen-Stellplätze
  • 2 WCs, Gäste-WC
  • Garten
  • Badezimmer: Badewanne, Bad mit Dusche, Bad mit Fenster

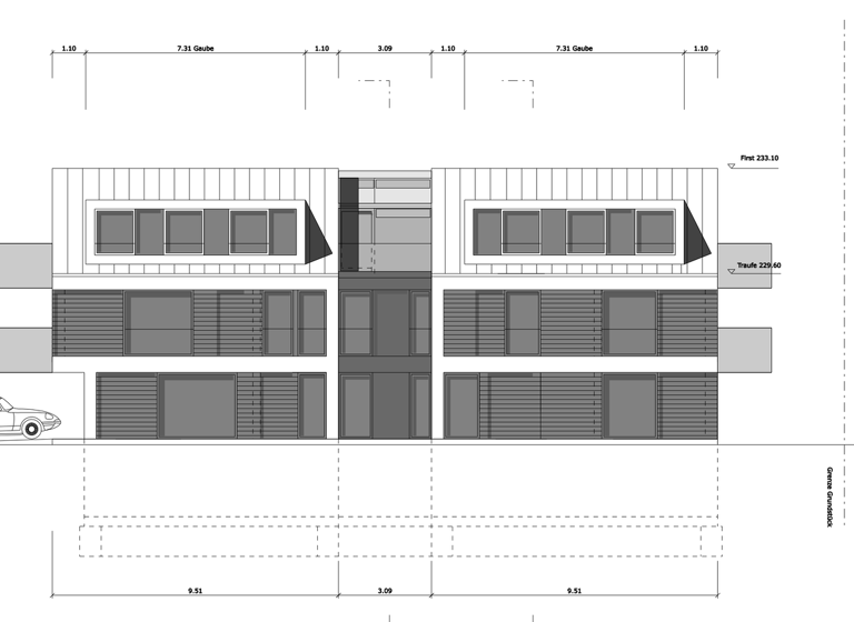
Grundrisse

Grundrisse
1 / 2

Realisiere Dein Projekt

Bausubstanz und Energie

Energieausweis

G
  • Baujahr1926
  • Zustand der Immobilierenovierungsbedürftig / sanierungsbedürftig
Immowelt logo

Preisdetails

Kaufpreis
395000 €
3.038,46 €/m²
Provision für Käufer
Unser Nachweis und/oder Vermittlungshonorar beträgt vom Käufer bei einem Kauf zzgl. 2,975 % Provision (inkl. ges. MwSt.), fällig bei Vertragsabschluss.
Geschätzte Gesamtkosten
434.421 €1
Kaufpreis
395.000 €
Notarkosten (1,5%)
5.925 €
Grunderwerbsteuer (5%)
19.750 €
Provision für Käufer (2,98%)
11.771 €
Grundbucheintrag (0,5%)
1.975 €
1Der angezeigte Wert ist eine automatisch berechnete Schätzung von immowelt.
2Bei den Angaben handelt es sich um ortsübliche Werte. Individuelle Kosten können abweichen.

Lage

address-icon
Brückenstraße 19Ilsfeld (74360)
Ilsfeld gilt mit seinen knapp 9.400 Einwohnern als lebendige Weinbaugemeinde. Die reizvolle landschaftliche Lage ist ein gern besuchtes Ziel für Ausflügler und Naherholungssuchende.

Weitere Informationen

Rechtshinweis: Die Angaben in diesem Exposé beruhen auf uns erteilten Informationen. Eine Haftung für die Richtigkeit und Vollständigkeit können wir jedoch nicht übernehmen.

Weitere Services

Lust auf eine Besichtigung?
Eine Frage zur Immobilie?
Nachricht hinzufügen
Mit der Nutzung der oben angegebenen Telefonnummer oder durch Klicken auf „Kontaktieren“ akzeptierst Du die Allgemeinen Nutzungsbedingungen, denen Du jederzeit widersprechen kannst. Weitere Informationen zum Datenschutz

Über den Anbieter

Küfergasse 13, 71720 Oberstenfeld
partner badge
Partnerschaft
Herr Matthias  Reisser
Herr Matthias ReisserDein Kontakt

Weitere Unterlagen

Online-ID: 26Q2DQ27ZEG8
Immobilien Center Bottwartal GmbH & Co. KG
title
Immobilien Center Bottwartal GmbH & Co. KG
Bewertung: 5 von 5 Sternen
Nachricht hinzufügen
Mit der Nutzung der oben angegebenen Telefonnummer oder durch Klicken auf „Kontaktieren“ akzeptierst Du die Allgemeinen Nutzungsbedingungen, denen Du jederzeit widersprechen kannst. Weitere Informationen zum Datenschutz
Wie zufrieden bist du mit dieser Seite (nicht mit der Immobilie selbst)?