Version: 8.25.1Navigation überspringen
3SI Makler GmbH
480.000 €
2 Zimmer  •  46,5 m²  •  4. Geschoss

Wohnung zum Kauf - Erstbezug
480000 €
10.327 €/m²
2 Zimmer  •  46,5 m²  •  4. Geschoss

Fitness, Sauna, Co-Working Space - Wohnen in Top Lage nahe Donaukanal

OBERE DONAUSTRASSE 23 | 1020 WIEN

Hier kaufen Sie nicht nur eine Wohnung, sondern ein Upgrade für Ihr Leben. Jede einzelne Wohnung verfügt über private Freiflächen - großzügige Balkone, geschützte Loggien oder weitläufige Terrassen erweitern Ihren Wohnraum ins Freie. Bodentiefe Fensterflächen lassen viel Licht in die Räume und schaffen eine Atmosphäre von Weite und Eleganz.  
Fertigstellung April 2026

PROVISIONSFREI FÜR DEN KÄUFER!

HIGHLIGHTS & AUSSTATTUNG: DESIGN TRIFFT KOMFORT

* Perfektes Klima: Fußbodenheizung, Fußbodentemperierung im Sommer 
* Nachhaltigkeit: Energieversorgung über Geothermie und Photovoltaik 
* Licht & Luft: Bodentiefe Holz-Alu-Fenster, elektrisch bedienbare Raffstores, im Erdgeschoss Rollläden 
* Sicherheit & Technik: Video-Gegensprechanlage, Sicherheitskamera und eine "Smart-Ready"-System ausgeführt.
* High-Speed Internet: Glasfaserleitungen 
* Family & Kids: autofreie Zone an der Oberfläche, geschützte Kleinkinderspielplätze  

MEHR ALS WOHNEN: DIE COMMUNITY-FEATURES INKLUSIV

* Co-Working Space
* High-End Fitnessstudio mit modernen Geräten und Yoga-Zone
* privat reservierbarer Saunabereich
* Gemeinschaftsterrassen 
* Paketfachanlage 
* Dog & Bike Wash Station - Raum mit Fahrrad- und Hundewaschplatz und Werkbank 
* Quartiers-App 
* Mobility Point - Es gibt ein Sharing-Angebot für Autos und E-Bikes direkt im Quartier 
* Waschküchen 

DAS PROJEKT IN ZAHLEN (OBERE DONAUSTRASSE 23)

* Gebäudestruktur: 2 Stiegen 
* Wohnungsgrößen: von ca. 34 m² bis 108 m²
* Zimmeranzahl: Effiziente 1,5 bis 4 Zimmer
* Raumhöhe: Großzügige ca. 2,60 m 
* Tiefgarage
* Besucherparkplätze in der Tiefgarage
* Energieversorgung: über Geothermie und Photovoltaik 

IHR EXKLUSIVER "SHORT-CUT" IN DEN AUGARTEN UND KONNEKTIVITÄT: IN 5 MINUTEN ÜBERALL

* Das Haus 23 verfügt über einen Durchgang Richtung Augarten
* Öffentliche Anbindung: U4-Station "Roßauer Lände", Straßenbahn 31
* in wenigen Minuten in der City (Schottenring) 

Die Fertigstellung ist für April 2026 geplant.

Individuelle Umbauarbeiten wie das Schließen von Wänden, der Einbau von Türen, Rigipsdekcen oder der Tausch von Badewanne auf Dusche können auf Wunsch separat beauftragt werden. 

Weitere verfügbare Wohnungen können Sie der beigefügten Preisliste entnehmen und uns gerne diesbezüglich kontaktieren. 

Die Vertragserrichtung und Treuhandabwicklung ist gebunden an die Kanzlei Saxinger Rechtsanwalts GmbH, Wächtergasse 1, 1010 Wien. Die Kosten betragen 0,9 % des Kaufpreises zzgl. 20 % USt. die Barauslagen sind in dem Honorar enthalten. Die Beglaubigungskosten belaufen sich auf 400 € bzw. 450 € je inkl. Umsatzsteuer, falls eine Pfandurkunde beglaubigt unterfertig wird.

Renderings: Copyright Squarebytes

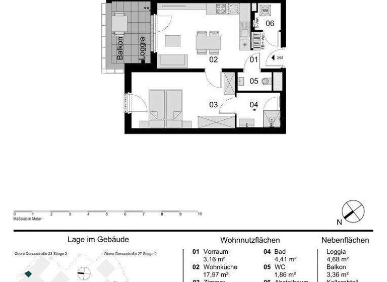
TOP 64 - STIEGE 2

Diese moderne Wohnung befindet sich im 4. Obergeschoß. Die Einheit verfügt über eine Wohnnutzfläche von insgesamt 46,48 m² und bietet zusätzlich eine ca. 4,68 m² Loggia und 3,36 m² großen Balkon.  

Die Raumaufteilung im Detail:

* Wohnküche
* Schlafzimmer 
* Bad en Suite mit Dusche
* separate Toilette
* Vorraum
* Abstellraum
* Balkon

Diese Wohnung eignet sich ideal als ein gemütliches Eigenheim wie auch zur Anlage. 

Kaufpreisübersicht:

*
Anlegerpreis: € 480.000 (netto + 20% Ust.)

*
Eigennutzerpreis: € 528.000 (brutto)

DIE IMMOBILIE WIRD PROVISIONSFREI VERKAUFT.

Wir weisen darauf hin, dass zwischen dem Vermittler und dem zu vermittelnden Dritten ein familiäres oder wirtschaftliches Naheverhältnis besteht.

Der Vermittler ist als Doppelmakler tätig.

Infrastruktur / Entfernungen

Gesundheit
Arzt <250m
Apotheke <250m
Klinik <300m
Krankenhaus <1.150m

Kinder & Schulen
Schule <275m
Kindergarten <125m
Universität <325m
Höhere Schule <300m

Nahversorgung
Supermarkt <50m
Bäckerei <350m
Einkaufszentrum <1.875m

Sonstige
Geldautomat <50m
Bank <600m
Post <675m
Polizei <575m

Verkehr
Bus <200m
U-Bahn <200m
Straßenbahn <325m
Bahnhof <200m
Autobahnanschluss <2.000m

Angaben Entfernung Luftlinie / Quelle: OpenStreetMap

Merkmale

  • 4. Geschoss
  • offene Küche
  • Personenaufzug
  • Balkon
  • Barrierefrei
  • Bad mit Dusche

Grundrisse

Grundrisse
1 / 1

Realisiere Dein Projekt

Bausubstanz und Energie

Heizwärmebedarf (HWB)

A

Gesamtenergieeffizienz (fGEE)

A+
  • Baujahr2025
  • Zustand der ImmobilieNeubau, Erstbezug
  • HeizungsartFußbodenheizung
  • EnergieträgerErdwärme, Luft-/Wasser-Wärmepumpe
MediumRectangleTop

Preisdetails

Kaufpreis
480000 €
10.327,02 €/m²
Provision für Käufer
Bitte beachte, das Angebot kann bei Vertragsabschluss die Zahlung einer Provision beinhalten. Weitere Informationen erhältst Du vom Anbieter.

Lage

address-icon
Obere Donaustraße 23Wien (1020)
Karmeliterviertel, Augarten, Servitenviertel, Roßauer Lände, Donaukanal

Weitere Informationen

Stichworte Parkhaus vorhanden, Nord-West-Balkon/Terrasse, Fahrradraum, Anzahl der Badezimmer: 1, Anzahl der separaten WCs: 1, Anzahl Balkone: 1, Anzahl Loggias: 1, Balkon-Terrassen-Fläche: 8,04 m², Bundesland: Wien, 7 Etagen, Wohnungsnr.: 64 Wellness: Wellnessbereich

Weitere Services

Lust auf eine Besichtigung?
Eine Frage zur Immobilie?
Nachricht hinzufügen
Mit der Nutzung der oben angegebenen Telefonnummer oder durch Klicken auf „Kontaktieren“ akzeptierst Du die Allgemeinen Nutzungsbedingungen, denen Du jederzeit widersprechen kannst. Weitere Informationen zum Datenschutz

Über den Anbieter

3SI Makler GmbH
3SI Makler GmbHMaklerbüro
Tegetthoffstraße 7, 1010 Wien
partner badge
Partnerschaft
Frau Karoline SzczepankiewiczDein Kontakt
Online-ID: 26U9CUH399VP
Referenznummer: OBGC20260324224851049ce82a43645
3SI Makler GmbH
3SI Makler GmbH
Bewertung: 2,6 von 5 Sternen
Nachricht hinzufügen
Mit der Nutzung der oben angegebenen Telefonnummer oder durch Klicken auf „Kontaktieren“ akzeptierst Du die Allgemeinen Nutzungsbedingungen, denen Du jederzeit widersprechen kannst. Weitere Informationen zum Datenschutz
MediumRectangleTop
MediumRectangleBottom
MediumRectangleTop
Wie zufrieden bist du mit dieser Seite (nicht mit der Immobilie selbst)?