Version: 8.24.0Navigation ĂĽberspringen
287.175 €
3 Zimmer  â€˘  82 m²  â€˘  2. Geschoss
Immowelt logo

Wohnung zum Kauf
287175 €
3.502 €/m²
3 Zimmer  â€˘  82 m²  â€˘  2. Geschoss

Wohnung 82m2 zum Kauf - Split-Dalmatia, Sucuraj

NEUBAU GERÄUMIGE WOHNUNG IM 1. OBERGESCHOSS (SÜDWEST-AUSRICHTUNG)

Sucuraj, Insel Hvar | Ruhige Lage | 5 Min. zum Fährhafen, Strand & Ortszentrum

Zum Verkauf steht eine geräumige und sehr komfortable Wohnung im zweiten Obergeschoss eines modernen Neubau-Wohngebäudes, gelegen in einer ruhigen, von Grün umgebenen Lage, auf ebenem Gelände, in Sucuraj auf der Insel Hvar.

Die Wohnung ist nach Südwesten ausgerichtet und bietet viel Tageslicht während des gesamten Tages sowie eine warme, freundliche Wohnatmosphäre. Der Fährhafen, die Strände und das Ortszentrum sind in 5 Gehminuten erreichbar, ohne Steigungen.

WOHNUNGSDETAILS

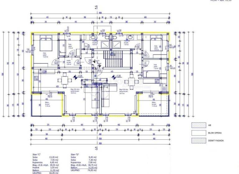
Wohnfläche: 82,05 m

Balkon: 11,55 m

Etage: 1. Obergeschoss

Ausrichtung: SĂĽdwest

Die Wohnung besteht aus:

groĂźzĂĽgigem Wohnzimmer mit KĂĽche und Essbereich 39,55 m

Schlafzimmer 13,20 m

zweitem Zimmer (Kinderzimmer / Arbeitszimmer / Gästezimmer) 7,55 m

Badezimmer 6,65 m

Flur 3,55 m

Balkon 11,55 m, ideal zum GenieĂźen der Nachmittagssonne

Der durchdachte Grundriss bietet Großzügigkeit, Funktionalität und hohen Wohnkomfort und macht diese Wohnung ideal für Familien, ganzjähriges Wohnen oder als attraktive Investition.

ÜBER DAS GEBÄUDE

modernes Wohngebäude mit drei Etagen

2 Wohnungen pro Etage insgesamt 6 Wohnungen

AuĂźenstellplatz fĂĽr jede Wohnung vorhanden

hochwertige Bauweise

moderne Ausführung und sorgfältig ausgewählte Materialien

LAGE

Sucuraj ist ein ruhiger Inselort, bekannt für sein klares Meer, schöne Strände und entspannte Atmosphäre, und bietet gleichzeitig alle notwendigen Einrichtungen.
Die Insel Hvar, eine der sonnigsten Inseln der Adria, verbindet Natur, Lebensqualität und hervorragendes Investitionspotenzial.

Der Investor ist eine juristische Person der Käufer zahlt keine Immobilienerwerbssteuer.

FĂĽr weitere Informationen und zur Vereinbarung eines Besichtigungstermins kontaktieren Sie bitte:

MARIJA BOSNJAK
Tel: +385 95 37 27 471
E-Mail: marija.bosnjak@dogma-nekretnine.com

ID CODE: ST4666

Marija Bosnjak
Asistent u posredovanju
Mob: 095/372-7471
Tel: +385 95 372 7471
E-mail: marija.bosnjak@dogma-nekretnine.com
www.dogma-nekretnine.com

Igor Srzic
Asistent u posredovanju
Mob: 098/997-3804
Tel: +385 95 372 7471
E-mail: igor.srzic@dogma-nekretnine.com
www.dogma-nekretnine.com

Merkmale

  • 2. Geschoss

Grundrisse

Grundrisse
1 / 1

Realisiere Dein Projekt

Bausubstanz und Energie

Der Anbieter hat keine Informationen zum Energieverbrauch bereit gestellt.
  • Baujahr2025
Immowelt logo

Preisdetails

Kaufpreis
287175 €
3.502,13 €/m²
Provision für Käufer
Bitte beachte, das Angebot kann bei Vertragsabschluss die Zahlung einer Provision beinhalten. Weitere Informationen erhältst Du vom Anbieter.

Lage

address-icon
Sucuraj
Der Anbieter hat die genaue Adresse nicht freigegeben

Weitere Informationen

Stichworte Anzahl der Schlafzimmer: 2, Anzahl der Badezimmer: 1, 1 Etagen

Weitere Services

Lust auf eine Besichtigung?
Eine Frage zur Immobilie?
Nachricht hinzufĂĽgen
Mit der Nutzung der oben angegebenen Telefonnummer oder durch Klicken auf „Kontaktieren“ akzeptierst Du die Allgemeinen Nutzungsbedingungen, denen Du jederzeit widersprechen kannst. Weitere Informationen zum Datenschutz

Ăśber den Anbieter

Crozilla.com
Crozilla.comMaklerbĂĽro
Nova cesta 60, 10000 ZAGREB
Dogma nekretnineDein Kontakt
Online-ID: 2nk7z5l
Referenznummer: 18836227_3
Crozilla.com
Crozilla.com
Nachricht hinzufĂĽgen
Mit der Nutzung der oben angegebenen Telefonnummer oder durch Klicken auf „Kontaktieren“ akzeptierst Du die Allgemeinen Nutzungsbedingungen, denen Du jederzeit widersprechen kannst. Weitere Informationen zum Datenschutz
Wie zufrieden bist du mit dieser Seite (nicht mit der Immobilie selbst)?