Wohnung 63m2 zum Kauf - Zadar, Povljana
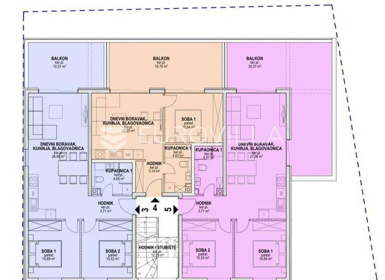
Predstavljamo Vam projekt vrhunske novogradnje u Povljani na otoku Pagu na top lokaciji! Projekt se sastoji od zgrade s 8 jedinica stambene namjene rasporedenih na ukupno 3 etaze. Zgrada je udaljena svega 180 m od mora i popularnih pjescanih plaza ovog mjesta. Takoder, u neposrednoj blizini se nalazi i centar Povljane kao i svi ostali sadrzaji potrebni za kvalitetan i ispunjen zivot ili odmor.S3 - 62,55m2 - 1. katStan S3 nalazi se na 1. katu zgrade te je ukupne neto korisne povrsine 62,55m2 dok njegova bruto povrsina iznosi 68,81m2. Sastoji se od otvorenog prostora kuhinje, blagovaonice i dnevnog boravka (26,46m2), hodnika (3,71m2), potpuno opremljene kupaonice (4,65m2), dvije spavace sobe (10,96m2 i 10,52m2) te natkrivenog balkona s kojeg se pruza prekrasan pogled na more (12,51m2). Stanu uz to pripada i jedno vanjsko parkirno mjesto.Zgrada se trenutacno nalazi u fazi zavrsnih radove te se useljenje ocekuje pocetkom 2026. godine.Od opreme i materijala valja istaknuti :Konstrukcija od armiranog betona s 10 cm termoizolacijeKvalitetna ALU i PVC stolarija s komarnicima i roletama na elektricno upravljanjeVisoka kvaliteta keramike i sanitarijaProtuprovalna i protupozarna vrataKlima uredaji u svim sobama i dnevnom boravkuStaklene ograde na balkonimaDvoriste ogradeno kamenim zidovimai jos mnogo toga..Povljana je sarmantno dalmatinsko mjesto na otoku Pagu, poznato po dugim pjescanim plazama i kristalno cistom moru. Idealan je izbor za nekretnine za odmor ili turisticki najam - autentican dalmatinski ugodaj, prostrane terase i blizina lokalnih restorana. Dobra prometna povezanost cestom te blizina vaznijih otocnih i kopnenih odredista cine Povljanu privlacnom investicijskom lokacijom na Pagu.Za vise informacija i dogovor o razgledavanju, slobodno nam se obratite... Vise na eurovilla.hr, ID: 468369