

Bürofläche zur Miete1.350 €193,5 m² Bürofläche
1.350 €
193,5 m² Bürofläche
Flexibel gestaltbare Büros im Zentrum von Haren (Ems) zur Miete
Merkmale
- Bezug: sofort
- Kein Keller
- Gäste-WC
- Terrasse
- Bodenbelag: Laminat
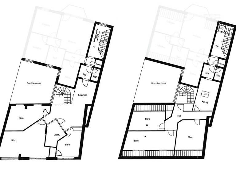
Grundrisse
Grundrisse
1 / 1
Realisiere Dein Projekt
Bausubstanz und Energie
Der Anbieter hat keine Informationen zum Energieverbrauch bereit gestellt.
- EnergieträgerGas
Mietkosten
Nettomiete
1.350 €
Nebenkosten
260 €
Provision für Mieter
3 Netto Kaltmieten zzgl. MwSt.
Kaution
2 Nettokaltmieten
Weitere Preisinformationen
Nettokaltmiete: 1.350,00 EUR
Lage

Haren (49733)
Der Anbieter hat die genaue Adresse nicht freigegeben
Weitere Informationen
Weitere Services
Lust auf eine Besichtigung?
Eine Frage zur Immobilie?
Über den Anbieter
Boschstraße 15, 49733 Haren (Ems)
Firma Julian FehrmannDein Kontakt
Online-ID: 2lemh5t
Referenznummer: 25957

FEHRMANN Immobilienvermittlungs GmbH & Co. KG
Bewertung: 4,1 von 5 Sternen
Wie zufrieden bist du mit dieser Seite (nicht mit der Immobilie selbst)?

