Version: 8.24.0Navigation ĂĽberspringen
3.260 €
4 Zimmer  â€˘  259 m² BĂĽrofläche
Immowelt logo

BĂĽro zur Miete
3.260 €
4 Zimmer  â€˘  259 m² BĂĽrofläche

Modernes WohnbĂĽro mit Charakter und Dachterrasse im Harburger Binnenhafen

Objektbeschreibung Modernes WohnbĂĽro mit Charakter und Dachterrasse im Harburger Binnenhafen

Adresse: Theodor-Yorck-StraĂźe 4, 21079 Hamburg

Ein Büro zum Wohlfühlen – Arbeiten mit Flair und Ausblick

Sie suchen eine außergewöhnliche Gewerbefläche, die sowohl funktional als auch stilvoll ist? Dieses moderne Wohnbüro im Harburger Binnenhafen überzeugt nicht nur durch seine hochwertige Ausstattung und großzügige Raumaufteilung, sondern auch durch eine exklusive Dachterrasse und die attraktive Lage direkt am Wasser.
Die Immobilie befindet sich im 3. Obergeschoss eines Neubaus aus dem Jahr 2014 und bietet auf insgesamt 259 m² Fläche eine hervorragende Grundlage für kreative, administrative oder beratende Tätigkeiten.

Trotz wohnlicher Gestaltung ist ausschließlich eine gewerbliche Nutzung zulässig, da sich die Fläche in einem reinen Gewerbegebiet befindet. Raumaufteilung Flächenaufteilung und Nutzungsmöglichkeiten

* Gesamtfläche: ca. 259 m²

Davon:

* Nutzfläche (Innenräume): ca. 209 m²
* Dachterrasse: ca. 50 m²

Die Fläche ist optimal geschnitten und bietet zahlreiche Nutzungsmöglichkeiten – z.B. als Büro für Agenturen, Start-ups, Architekten, Beratungsunternehmen oder Kanzleien mit Anspruch an Design, Funktion und Atmosphäre.

Durch die offene, großzügige Raumstruktur lässt sich die Einheit flexibel an unterschiedliche Arbeitskonzepte anpassen – vom klassischen Einzelbüro bis hin zu offenen Teamzonen oder einer Kombination aus Büro- und Besprechungsräumen.

Merkmale

  • frei ab sofort
  • 3. Geschoss
  • Personenaufzug
  • DSL-Anschluss
  • teilweise möbliert
  • teilweise klimatisiert
  • Bodenbelag: Fliesen

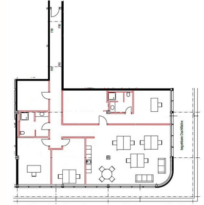
Grundrisse

Grundrisse
1 / 1

Realisiere Dein Projekt

Bausubstanz und Energie

Energieausweis

Endenergiebedarf (Wärme)

Endenergiebedarf (Strom)

  • Baujahr2014
  • HeizungsartFuĂźbodenheizung
  • EnergieträgerFernwärme
Immowelt logo

Mietkosten

Nettomiete
3.260 €
Nebenkosten
647,50 €
Provision fĂĽr Mieter
Bitte beachte, das Angebot kann bei Vertragsabschluss die Zahlung einer Provision beinhalten. Weitere Informationen erhältst Du vom Anbieter.
Kaution
3 Bruttomieten

Lage

address-icon
Theodor-Yorck-Straße 4, Harburg, Hamburg (21079)
Lage – Harburger Binnenhafen: Arbeiten am Wasser

Die Immobilie befindet sich im Herzen des Harburger Binnenhafens – einem der spannendsten Stadtentwicklungsgebiete Hamburgs. Der Standort verbindet auf einzigartige Weise historische Industriearchitektur mit modernen Neubauten und bietet ein urban-maritime Atmosphäre.

Die Lage im Detail:

* Direkte Nähe zum Wasser: Kanäle, Hafenbecken, Uferwege
* Inspirierendes Umfeld: Alte Silos & Speicher, moderne Büros & Wohngebäude
* Vielfältige Gastronomie: Restaurants, Cafés und Bars fußläufig erreichbar
* Abwechslungsreiche Nachbarschaft: Wohnen und Arbeiten verschmelzen zu einem lebendigen Stadtteil
* Gute Nahversorgung: Einkaufsmöglichkeiten, Ärzte, Apotheken im direkten Umfeld

Verkehrsanbindung:

* Bushaltestellen (Linien 142 & 154): wenige Schritte vom Gebäude entfernt
* Harburger Bahnhof: ca. 7 Minuten entfernt – mit S-Bahn und Fernverkehr
* Schnelle Anbindung an B75, A253, A1 und A7 – ideal für Pendler und überregionale Erreichbarkeit
* Entfernung zur Hamburger Innenstadt: ca. 20 Minuten mit dem Auto oder Ă–PNV

Weitere Informationen

Besichtigungstermine Grundriss & Besichtigung

Ein beispielhafter Grundriss zur besseren Vorstellung der Raumaufteilung ist vorhanden (nicht maĂźstabsgetreu und nicht zur baulichen Umsetzung geeignet).
Besichtigungen sind nach Absprache möglich. Bitte beachten Sie, dass dieses Exposé keine verbindliche Vertragsgrundlage darstellt, sondern der Vorabinformation dient.

Besichtigungstermine sind kurzfristig nach Vereinbarung möglich.

Zusammenfassung – Ihre Vorteile auf einen Blick

* Repräsentative Bürofläche mit Wohnflair
* 209 m² Innenfläche + 50 m² Dachterrasse
* Top-Lage im Harburger Binnenhafen
* Modern & hochwertig ausgestattet
* Flexibel nutzbare Raumaufteilung
* Attraktive Verkehrsanbindung & Infrastruktur Stichworte Serviceleistungen: Hausmeister

Weitere Services

Lust auf eine Besichtigung?
Eine Frage zur Immobilie?
Nachricht hinzufĂĽgen
Mit der Nutzung der oben angegebenen Telefonnummer oder durch Klicken auf „Kontaktieren“ akzeptierst Du die Allgemeinen Nutzungsbedingungen, denen Du jederzeit widersprechen kannst. Weitere Informationen zum Datenschutz

Ăśber den Anbieter

Hans-Fitze-Str. 4, 21073 Harburg
partner badge
Partnerschaft
Nazim ArslanDein Kontakt

Weitere Unterlagen

Online-ID: 2lky65d
HE-NA GrundstĂĽcksgesellschaft GbR
Nachricht hinzufĂĽgen
Mit der Nutzung der oben angegebenen Telefonnummer oder durch Klicken auf „Kontaktieren“ akzeptierst Du die Allgemeinen Nutzungsbedingungen, denen Du jederzeit widersprechen kannst. Weitere Informationen zum Datenschutz
Wie zufrieden bist du mit dieser Seite (nicht mit der Immobilie selbst)?