Maklerdienste Günther & Partner Inh. Tony Günther

Herr Tony Günther

Gemütliche 1 Raum WE mit Einbauküche auf dem Brühl-Boulevard (Chemnitz)

€ 190
Kaltmiete zzgl. NK
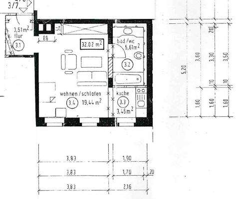
32 m²
Wohnfläche ca.
1
Zimmer

Der Anbieter dieses Objekts hat gegenüber der AVIV Germany GmbH als Betreiber dieses Online-Marktplatzes erklärt, nicht als Unternehmer im Sinne des § 1 KSchG zu handeln. Die im Verbraucherschutzrecht der Union verankerten Verbraucherrechte (insbesondere Informationspflichten und Rücktritts- bzw. Widerrufsrechte) finden auf den Vertrag zwischen dem Anbieter des Objekts und Ihnen (dem Interessenten) keine Anwendung.

Gewerblicher Anbieter

Der Anbieter dieses Objekts hat gegenüber der AVIV Germany GmbH als Betreiber dieses Online-Marktplatzes erklärt, als Unternehmer im Sinne des § 1 KSchG zu handeln.

AdresseElisenstr. 18
09111 Chemnitz 
(Zentrum)
Auf Karte ansehen

Preise & Kosten

Kaltmiete € 190 Nebenkosten € 30 Heizkosten € 30 Warmmiete € 250 4 Stellplätze, je € 30

Kaution

570

Lage

Das überaus gepflegte und sanierte Mehrfamilienhaus befindet sich im sehr beliebten Chemnitzer Stadtviertel Brühl. In den unweit entfernten grünen Parks der Stadt (Schönherr-Park und Küchwald-Park) sowie am Schloßteich lädt zur Erholung nach Arbeit oder Studium ein. Diverse trendige Läden, Kulturstätten für Kleinkünstler...

Mehr anzeigen

Die Wohnung

Wohnungslage

1. Geschoss

Derzeitige Nutzung

frei

  • Bad mit Wanne
  • Einbauküche
  • Böden: Fliesenboden, Laminat
  • Fenster: Holzfenster
  • Weitere Räume: Kelleranteil
  • Anschlüsse: DSL-Anschluss, Kabelanschluss
  • Haustiere erlaubt

Wohnanlage

  • Baujahr: 1885
  • Personenaufzug
  • 4 Stellplätze
  • Serviceleistungen: Reinigungsservice

Energie & Heizung

A+
A
B
C
D
E
F
G
H
0 25 50 75 100 125 150 175 200 225 250 +

Energieausweistyp

Bedarfsausweis

Gebäudetyp

Wohngebäude

Baujahr laut Energieausweis

1885

Wesentliche Energieträger

Fernwärme

Gültigkeit

30.08.2023 bis 30.08.2033

Effizienzklasse

C

Endenergiebedarf

86,30 kWh/(m²·a)

Weitere Energiedaten

Energieträger

Fernwärme

Heizungsart

Zentralheizung

Details

Objektbeschreibung

Objektbeschreibung
Frei zur Miete ab dem 01.01.2026 findet sich diese schöne, sonnige und sehr gepflegte 1-Raum-Wohnung mit kleiner Küchenzeile in ruhiger Nebenstraßenlage des Chemnitzer Szene- und Kulturviertel "Brühl-Boulevard".

Das Mehrfamilienhaus wurde 1997 umfnagreich saniert und weist sich durch die Anbindung...

Mehr anzeigen

Weitere Informationen

Sonstiges/Besichtigungstermine
Alle Angaben sind ohne Gewähr und basieren ausschließlich auf Informationen, die uns von unserem Auftraggeber übermittelt wurden. Wir übernehmen keine Gewähr für die Vollständigkeit, Richtigkeit und Aktualität dieser Angaben. Die Fotoanlagen wurden von der der Fa. Maklerdienste Günther &...

Mehr anzeigen

Anbieter der Immobilie

Partner

Maklerdienste Günther & Partner Inh. Tony Günther

im Durchschnitt  4,20  Sterne
(bei 1 Bewertungen)

Rudolf-Breitscheid-Str. 16, 09405 Zschopau

Geschäftszeiten
user

Herr Tony Günther

Dein Ansprechpartner

Anbieter-Website Anbieter-Profil Anbieter-Impressum

Online-ID: 2m5jm5a

Finde Angebote wie dieses

imageimageimage

Hier geht es zu unserem Impressum, den Allgemeinen Geschäftsbedingungen, den Hinweisen zum Datenschutz und nutzungsbasierter Online-Werbung.