

IFC Immobiliengesellschaft mbH
Herr Paul-Ludwig Blümel
034 ···
Nr. anzeigenPreise & Kosten
Provision für Käufer
Die Provision beträgt 3,5 % vom Kaufpreis (zzgl. der geltenden MwSt.).
Das Haus
Kategorie
Bauernhaus
Baujahr
1871
Energie & Heizung
Warum sehe ich diese Anzeige? – Du siehst diese Anzeige basierend auf Ihrer Navigation auf unserer Website und den Suchkriterien, die du verwendet hast.
Weitere Energiedaten
Energieträger
Gas
Heizungsart
Zentralheizung
Details
Objektbeschreibung
Baujahr:
ca. 1900 - Mietshaus (MH) - vermietetes Einfamilienhaus - denkmalgeschützt
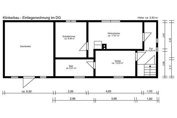
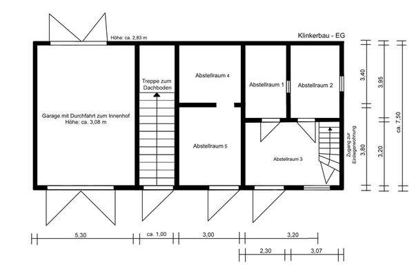
ca. 1900 - Klinkerbau mit Einliegerwohnung - denkmalgeschützt
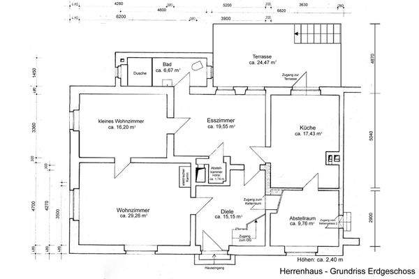
ca. 1871 - Herrenhaus (HH) - denkmalgeschützt
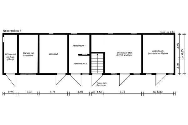
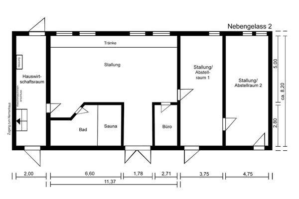
ca. 1900 - 2 Nebengelässer und Scheunen - umfassend saniert ca. 1990
Raumaufteilung -...
Ausstattung
Dach:
ca. 1995 - HH / MH und Nebengelässer - gedeckt
Scheune - Profilblech
Fassade:
ca. 1995 - HH - geputzt
ca. 2010 - HH - gestrichen
Mietshaus und Klinkerbau verklinkert - original gepflegter Zustand
ca. 1990 - Nebengelässer - geputzt und gestrichen
Fenster:
ca. 1995 - HH - Kunststoff...
Weitere Informationen
Extras:
- Herrenhaus teilweise Flamenco-Spanndecken
- zusätzliche Kachelöfen im Herrenhaus
- Klinkerbau mit ehemaligem Schlachthaus im EG und sanierungsbedürftiger Wohnung im DG
- vermietetes Einfamilienhaus (MH) als Kapitalanlage - monatliche Kaltmiete - derzeit: 369,13 € - ca. 1995 vollständig saniert und mit...
Dokumente
Anbieter der Immobilie

Online-ID: 2mrbr5j
Referenznummer: 2021
Finde Angebote wie dieses
Hier geht es zu unserem Impressum, den Allgemeinen Geschäftsbedingungen, den Hinweisen zum Datenschutz und nutzungsbasierter Online-Werbung.