Version: 8.26.0Navigation überspringen
Mietkosten auf Anfrage
844 m² Bürofläche
Immowelt logo

Bürofläche zur Miete • provisionsfrei
Mietkosten auf Anfrage
844 m² Bürofläche

Freistehendes Bürogebäude * Aufzug * 15 Stellplätze

Im Reutlinger Stadtteil Betzingen steht ein gepflegtes Bürogebäude mit ca. 844m² zur Miete. Es wurde 1965 errichtet.

In den vergangenen Jahren wurden die Fenster, Böden und Türen modernisiert. 2021 wurde die Heizung ausgetauscht.

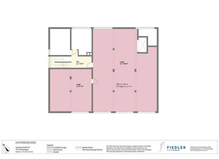
Das Erdgeschoss (ca. 308m²) bietet neben einem Empfangsbereich 8 flexibel nutzbare Büroräume (ca. 16m² - ca. 30m²). Im Obergeschoss (ca. 293m²) sind weitere 9 flexibel nutzbare Büroräume (ca. 10m² - ca. 55m²) vorhanden. Neben der im Erdgeschoss vorhandenen Dusche sind beide Geschosse mit je einer Teeküche, WCs, Brüstungskanälen und elektrischen Außenjalousien ausgestattet. Im Untergeschoss stehen rund 230m² Lagerfläche zur Verfügung.

Der Zugang zum Gebäude erfolgt sowohl über einen Eingang in den Empfangsbereich als auch über einen separaten Eingang direkt ins Treppenhaus. Der Lasten-/Personenaufzug ermöglicht eine Zugänglichkeit in alle Geschosse.

Das Gebäude zeichnet sich durch eine flexible Nutzung und eine großzügige Fensterverteilung aus, die in allen Räumen für eine helle natürliche Belichtung sorgt.

Auf dem Grundstück stehen 15 Parkplätze zur Verfügung.

Merkmale

  • Bezug: Nach Absprache
  • Lastenaufzug
- 2 Eingänge
- 1 Personen-/Lastenaufzug UG-OG
- 2 Teeküchen (EG, OG)
- Dusche (EG)
- WCs (EG, OG)
- Glasfaser
- Alarmanlage
- Brüstungskanäle
- Elektrische Außenjalousien
- Starkstrom
- 1 Werbetafel am Gebäude
-1 Standschild vor Gebäude
- 15 Parkplätze

Grundrisse

Grundrisse
1 / 3

Bausubstanz und Energie

Möchtest du Details zum Energieverbrauch?info_energy_calculation-icon
  • Baujahr1965
  • Zustand der ImmobilieGepflegt
  • HeizungsartZentralheizung
  • EnergieträgerGas
Immowelt logo

Mietkosten

Miete auf Anfrage
Provision für Mieter
provisionsfrei
Kaution
keine Angabe

Lage

address-icon
Auwiesenstraße 30BetzingenReutlingen (72770)
Das Objekt befindet sich im Reutlinger Stadtteil Betzingen in einem Mischgebiet. Der ÖPNV ist über den Bahnhof Betzingen und eine Bushaltestelle in der Nähe fußläufig gut erreichbar. Die Auffahrt zur Bundesstraße B 28 liegt rund 1 km entfernt und ins Stadtzentrum von Reutlingen sowie zum Hauptbahnhof gelangt man in knapp 3 km Entfernung.

Die umliegenden Städte Tübingen, Metzingen und Pfullingen sind ebenfalls schnell in ca. 10 min Fahrzeit erreichbar. In der Nachbarschaft gibt es neben der Wohnbebauung verschiedene kleinere Gewerbebetriebe sowie in fußläufiger Entfernung u.a. einen Supermarkt, eine Metzgerei, eine Bäckerei, eine Pension und einen städtischen Kindergarten.

Weitere Informationen

Sonstiges Provisionsfrei, Vermittlung im Eigentümerauftrag.
Wir bitten um Ihr Verständnis dafür, dass wir in der Internetpräsentation keine Preise nennen können. Die Preisfindung bei Gewerbeobjekten ist erst möglich, wenn der Bedarf eines Interessenten erfasst sowie eventuell notwendige Gebäudeanpassungen und vertragliche Rahmenbedingungen bekannt sind. Deshalb sollten Preis- und Finanzierungsfragen in einem persönlichen Gespräch geklärt werden. Stichworte Stellplatz vorhanden, Nutzfläche: 844,00 m², Gesamtfläche: 844,00 m², modernisiert: Böden, teilw. Fenster, Türen ausgebaut

Weitere Services

Lust auf eine Besichtigung?
Eine Frage zur Immobilie?
Mit einer persönlichen Nachricht hast du bessere Chancen auf eine Antwort.
Mit der Nutzung der oben angegebenen Telefonnummer oder durch Klicken auf „Kontaktieren“ akzeptierst Du die Allgemeinen Nutzungsbedingungen, denen Du jederzeit widersprechen kannst. Weitere Informationen zum Datenschutz

Über den Anbieter

Aspenhaustraße 19, 72770 Reutlingen
partner badge
10 Jahre Partnerschaft
Frau Simone Walz
Frau Simone WalzDein Kontakt
Online-ID: 26G152HMDXY2
Referenznummer: 1639
Wie zufrieden bist du mit dieser Seite (nicht mit der Immobilie selbst)?