Version: 8.25.1Navigation überspringen
8,52 €
176,1 m² Bürofläche
Immowelt logo

Bürogebäude zur Miete - Erstbezug
8,52 €
/m²
176,1 m² Bürofläche

Repräsentative Büro/Praxisräume in gepflegtem Objekt in der Innenstadt mit Aufzug!

Die attraktive Hälfte der Büro-Etage befinden sich im 3. OG eines 2002 neu gebauten gepflegten und repräsentativen Wohn-und Geschäftshauses in der Zwickauer Innenstadt in sehr guter Lauflage.
Die Fläche eignet sich hervorragend für eine Nutzung als Büro oder Praxis.
Im Erdgeschoss befindet sich eine Apotheke und ein Friseur, in den oberen Geschossen Büros und Wohnungen. Die Obergeschosse sind bequem und barrierefrei über einen Aufzug zu erreichen
Unter dem Gebäude befindet sich eine geräumige Tiefgarage mit 95 Stellplätzen, in der Sie-PKW Stellplätze für Personal und Kunden anmieten können.

Merkmale

  • frei ab sofort
  • 3. Geschoss
  • Personenaufzug
- hochwertige Bodenbeläge
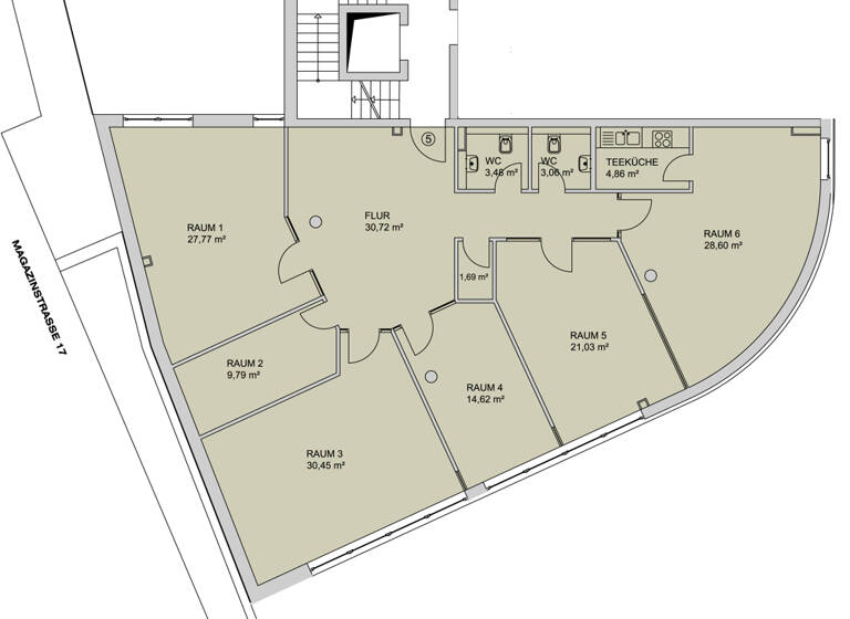
- 5 geräumige Büroräume
- Teeküche
- Serverraum
- 2 Toiletten
- Archivraum
- Aufzug

Grundrisse

Grundrisse
1 / 1

Realisiere Dein Projekt

Bausubstanz und Energie

Energieausweis

Endenergieverbrauch (Wärme)

  • Baujahr2002
  • Zustand der ImmobilieErstbezug
  • HeizungsartZentralheizung
  • EnergieträgerFernwärme
Immowelt logo

Mietkosten

Warmmiete
1.960 €
Nettomiete
8,52 €/m²
1.500 €
Nebenkosten
460 €
Heizkosten
in Warmmiete enthalten
Provision für Mieter
Nein inkl. MwSt.
Kaution
3.000,00 2 KM

Lage

address-icon
Magazinstraße 19InnenstadtZwickau (08056)
Magazinstraße/Dr.-Friedrichs-Ring in Zwickau ist ein, mit einer Vielzahl von repräsentativen Villen und villenartigen Gebäuden bebauter grüner Gürtel rund um die Zwickauer Innenstadt. Entlang der schönen Ringpromenade mit ihrem alten Baumbestand, finden Sie eine Vielzahl von Dienstleistungen, wie Banken, Arztpraxen, Kanzleien und Büros. Die Fußgängerzone und die Zwickau Arcaden befinden sich direkt vorm Haus.

Weitere Informationen

Sonstiges Stellplatzanmietung in Tiefgarage möglich
2 Kaltmieten Kaution Stichworte Gesamtfläche: 176,07 m², Bundesland: Sachsen, Wohnungsnr.: 5

Weitere Services

Lust auf eine Besichtigung?
Eine Frage zur Immobilie?
Mit einer persönlichen Nachricht hast du bessere Chancen auf eine Antwort.
Mit der Nutzung der oben angegebenen Telefonnummer oder durch Klicken auf „Kontaktieren“ akzeptierst Du die Allgemeinen Nutzungsbedingungen, denen Du jederzeit widersprechen kannst. Weitere Informationen zum Datenschutz

Über den Anbieter

Magazinstrasse 8-10, 08056 Zwickau
partner badge
6 Jahre Partnerschaft
Frau Silke KunstmannDein Kontakt
Online-ID: 2537BE84J1WV
Referenznummer: 1182_8
Mietwelten Zwickau
Mietwelten Zwickau
Bewertung: 5 von 5 Sternen
Mit einer persönlichen Nachricht hast du bessere Chancen auf eine Antwort.
Mit der Nutzung der oben angegebenen Telefonnummer oder durch Klicken auf „Kontaktieren“ akzeptierst Du die Allgemeinen Nutzungsbedingungen, denen Du jederzeit widersprechen kannst. Weitere Informationen zum Datenschutz
Wie zufrieden bist du mit dieser Seite (nicht mit der Immobilie selbst)?