Version: 8.25.1Navigation überspringen
10,85 €
550 m² Bürofläche  •  teilbar ab 550 m²
Immowelt logo

Bürofläche zur Miete • provisionsfrei
10,85 €
/m²
550 m² Bürofläche  •  teilbar ab 550 m²

Ausbau nach Mieterwunsch | Bürofläche in der Duisburger City | Glasfaseranschluss | Klimaanlage

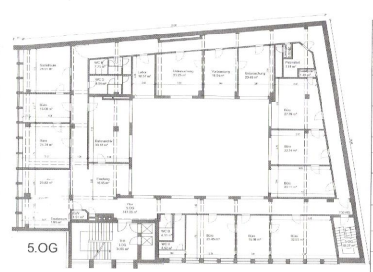
Bei dem attraktiven Geschäftshaus handelt es sich um eine beliebte Anlaufstelle verschiedenster Praxen, sowie Dienstleistern. Alle Ebenen des Gebäudes sind sowohl über das moderne Treppenhaus, als auch über einen Personenaufzug barrierefrei zu erschließen. Der Grundriss ist flexibel und kann nach den Wünschen des Mieters angepasst werden.

Derzeit stehen folgende Flächen zur Disposition:

5. OG: ca. 551 m²
6. OG: ca. 550 m²

Merkmale

  • Bezug: nach Vereinbarung
  • Barrierefrei
  • Personenaufzug
  • Bodenbelag: Teppich
  • voll klimatisiert
  • Raumaufteilung flexibel
. Verkabelung: CAT-7 Verkabelung vom Vormieter, Glasfaseranschluss vorhanden
. Verkabelungsort: Bodentanks
. Bodenbelag: Teppichboden
. Beleuchtung: LED-Spots
. Sonnenschutz: elektrische Außenverschattung
. Aufzug: Personenaufzug
. Kühlung: Klimaanlage

Die Ausstattung kann bei Bedarf angepasst werden!

Grundrisse

Grundrisse
1 / 1

Realisiere Dein Projekt

Bausubstanz und Energie

Möchtest du Details zum Energieverbrauch?info_energy_calculation-icon
  • Zustand der ImmobilieGepflegt
Immowelt logo

Mietkosten

Nettomiete
10,85 €/m²
10,85 €
Nebenkosten
3,50 €
Zusätzliche Kosten
Heizkosten
Provision für Mieter
provisionsfrei
Kaution
keine Angabe
Weitere Preisinformationen
Nettokaltmiete: 10,85 EUR

Lage

address-icon
AltstadtDuisburg (47051)
Der Anbieter hat die genaue Adresse nicht freigegeben
Die zentral gelegene Immobilie befindet sich in der Duisburger Innenstadt. Die A 59 und A 40 befinden sich in unmittelbarer Nähe. Des Weiteren sind Bus- und Bahnhaltestellen, sowie der naheliegende Hauptbahnhof in wenigen Gehminuten zu erreichen. In der direkten Nachbarschaft befindet sich das Forum Duisburg, welches als Zentrum für Einzelhandel, Gastronomie und Büro in der City bekannt ist.

Hotels in der Umgebung: Duisburger Hof, Mercure Hotels, Ibis, ferrotel Duisburg

Bedeutende Unternehmen in der Büromarktzone: TARGO Bank Zentrale, Finanzamt, IHK Duisburg

Weitere Informationen

Sonstiges Es gelten ausschließlich unsere AGB (www.ruhr-real.de/agb). Wir möchten Sie darauf hinweisen, dass die Angaben ausschließlich auf den uns vom Eigentümer übermittelten Unterlagen und Informationen basieren. Für Richtigkeit und Vollständigkeit übernehmen wir keine Gewähr. Zwischenvermietung vorbehalten. Stichworte Sonstiges: EDV-Verkabelung

Weitere Services

Lust auf eine Besichtigung?
Eine Frage zur Immobilie?
Mit einer persönlichen Nachricht hast du bessere Chancen auf eine Antwort.
Mit der Nutzung der oben angegebenen Telefonnummer oder durch Klicken auf „Kontaktieren“ akzeptierst Du die Allgemeinen Nutzungsbedingungen, denen Du jederzeit widersprechen kannst. Weitere Informationen zum Datenschutz

Über den Anbieter

Holsterhauser Platz 2, 45147 Essen
partner badge
6 Jahre Partnerschaft
Herr Jonas BruckmannDein Kontakt
Online-ID: 248AJ6GR6R3D
Referenznummer: 1841/E9
RUHR REAL GmbH
RUHR REAL GmbH
Mit einer persönlichen Nachricht hast du bessere Chancen auf eine Antwort.
Mit der Nutzung der oben angegebenen Telefonnummer oder durch Klicken auf „Kontaktieren“ akzeptierst Du die Allgemeinen Nutzungsbedingungen, denen Du jederzeit widersprechen kannst. Weitere Informationen zum Datenschutz
Wie zufrieden bist du mit dieser Seite (nicht mit der Immobilie selbst)?