Version: 8.24.0Navigation überspringen
458.000 €
5 Zimmer  •  155 m²  •  450 m² Grundstück
Immowelt logo

Einfamilienhaus zum Kauf • provisionsfrei
458000 €
2.955 €/m²
5 Zimmer  •  155 m²  •  450 m² Grundstück

Wir bauen auf Ihrem Grundstück ein Traumhaus zum Leben - individuell in Münster

Dieses attraktive Einfamilienhaus realisieren wir gemeinsam mit unserem erfahrenen Bauträger direkt auf Ihrem Grundstück. Die zeitlose Architektur, die durchdachte Grundrissgestaltung und die hochwertige Ausstattung sorgen für ein Zuhause, das sich ganz nach Ihnen richtet - modern, komfortabel und effizient.

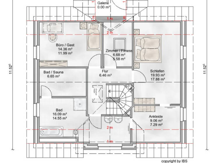
Im Erdgeschoss erwarten Sie ein großzügiger Wohn-Essbereich mit offener Küche und Zugang zur Terrasse, ein Gäste-WC sowie ein praktischer Hauswirtschaftsraum. Das Dachgeschoss bietet Raum für ein Kinderzimmer, ein Familienbad und einen komfortablen Elternbereich mit Schlafzimmer und Ankleide. Ein ausgebauter Spitzboden eröffnet zusätzliche Nutzungsmöglichkeiten - z.?B. als Büro, Hobbyraum oder Rückzugsort.

Optional ist auch bei diesem Objekt eine Garage mit den Maßen 3?×?7?m möglich - inklusive Tor, Stromanschluss, Wasseranschluss und Verblender - zum Aufpreis von 22.000?€.

Merkmale

  • 450 m² Grundstück
  • Haustiere erlaubt
  • Garage
  • Gäste-WC
  • Terrasse
Ausstattungshighlights
.effiziente Wärmepumpe für nachhaltige Energieversorgung
.Photovoltaikanlage zur Eigenstromerzeugung -gegen Aufpreis
.Fußbodenheizung im gesamten Haus
.edle Vinylböden in den Wohn- und Schlafräumen
.großformatige Fliesen in modernen Designs
.helles Tageslichtbad
.zusätzliches Gäste-Bad im Erdgeschoss
.elektrische Rollläden für mehr Komfort
.Energiestandard gemäß BEG 40
.praktisch ausgebauter Spitzboden

Grundrisse

Grundrisse
1 / 3

Realisiere Dein Projekt

Bausubstanz und Energie

Energieausweis

Ein Energieausweis ist für diesen Gebäudetyp nicht notwendig.
  • Baujahr2027
  • Zustand der Immobilieneuwertig
  • EnergieträgerLuft-/Wasser-Wärmepumpe
Immowelt logo

Preisdetails

Kaufpreis
458000 €
2.954,84 €/m²
Preis pro Stellplatz
22000 €
Provision für Käufer
provisionsfrei
Weitere Preisinformationen
1 Garagenstellplatz, Kaufpreis: 22.000,00 EUR
Geschätzte Gesamtkosten
496.930 €1
Kaufpreis
458.000 €
Notarkosten (1,5%)
6.870 €
Grunderwerbsteuer (6,5%)
29.770 €
Grundbucheintrag (0,5%)
2.290 €
1Der angezeigte Wert ist eine automatisch berechnete Schätzung von immowelt.
2Bei den Angaben handelt es sich um ortsübliche Werte. Individuelle Kosten können abweichen.

Lage

address-icon
CentrumMünster (48147)
Der Anbieter hat die genaue Adresse nicht freigegeben
Münster ist eine kreisfreie Stadt im nördlichen Nordrhein-Westfalen und zählt mit über 300.000 Einwohnern zu den dynamisch wachsenden Großstädten Deutschlands. Als traditionsreiche Universitätsstadt mit einer über 1.200-jährigen Geschichte vereint Münster historisches Erbe mit moderner Urbanität und hoher Lebensqualität.

Die Stadt gilt als bedeutendes Zentrum für Wissenschaft, Bildung, Verwaltung und Dienstleistungen in der Region Westfalen. Mit der Westfälischen Wilhelms-Universität, zahlreichen Hochschulen und Forschungseinrichtungen ist Münster ein renommierter Bildungsstandort mit überregionaler Strahlkraft. Das vielfältige kulturelle Angebot, darunter Museen, Theater, Festivals und eine lebendige Gastronomieszene, prägt das urbane Leben in der Stadt.

Münster ist bundesweit bekannt für sein hervorragendes Radwegenetz und die außergewöhnlich hohe Fahrradnutzung im Alltag. Die Infrastruktur ist flächendeckend gut ausgebaut. Neben einem leistungsfähigen ÖPNV bietet die Stadt durch die Anbindung an die Autobahnen A1 und A43 sowie den Flughafen Münster/Osnabrück (FMO) eine sehr gute regionale und überregionale Erreichbarkeit.

Das Stadtbild ist geprägt von einer gelungenen Mischung aus historischer Altstadt, modernen Quartieren, großzügigen Grünflächen und attraktiven Wohnlagen. Besonders hervorzuheben sind die Promenade - ein grüner Ring um die Innenstadt - und der Aasee, der als innerstädtisches Naherholungsgebiet dient.

Dank ihrer stabilen wirtschaftlichen Struktur, der starken Bildungslandschaft, der hohen sozialen Sicherheit und des nachhaltigen Stadtentwicklungskonzepts zählt Münster regelmäßig zu den lebenswertesten Städten Deutschlands.

Weitere Informationen

Sonstiges Dieses Haus ist mehr als nur ein Entwurf - es ist eine Einladung, Ihre ganz persönlichen Wohnwünsche zu verwirklichen.
Die gezeigten Grundrisse und Ausstattungen dienen zur Inspiration und lassen sich individuell anpassen.

Ob zusätzliches Kinderzimmer, Hobbyraum oder andere Ideen - wir planen mit Ihnen ein Zuhause, das wirklich zu Ihrer Familie passt.

Ebenfalls möglich: ein vollwertiges Kellergeschoss! Ob als Stauraum, Fitnessraum oder Rückzugsort - wir gestalten es mit Ihnen gemeinsam. Die Kosten hierfür ermitteln wir auf Grundlage eines Bodengutachtens, individuell und transparent.

Flexibel, persönlich und mit ganz viel Herz. Stichworte Anzahl der Schlafzimmer: 3, Anzahl der Badezimmer: 1, Anzahl der separaten WCs: 1, Anzahl Terrassen: 1, 2 Etagen

Weitere Services

Lust auf eine Besichtigung?
Eine Frage zur Immobilie?
Nachricht hinzufügen
Mit der Nutzung der oben angegebenen Telefonnummer oder durch Klicken auf „Kontaktieren“ akzeptierst Du die Allgemeinen Nutzungsbedingungen, denen Du jederzeit widersprechen kannst. Weitere Informationen zum Datenschutz

Über den Anbieter

Franz-Beiring-Straße 4, 46342 Velen
partner badge
Partnerschaft
Herr Alexander BaumeisterDein Kontakt
Keine Telefonnummer hinterlegt
Keine Telefonnummer hinterlegt
Online-ID: 2kt295g
Referenznummer: 2025-148
Dalhues Gebäudemanagement GmbH
Dalhues Gebäudemanagement GmbH
Bewertung: 4,7 von 5 Sternen
Nachricht hinzufügen
Mit der Nutzung der oben angegebenen Telefonnummer oder durch Klicken auf „Kontaktieren“ akzeptierst Du die Allgemeinen Nutzungsbedingungen, denen Du jederzeit widersprechen kannst. Weitere Informationen zum Datenschutz
Wie zufrieden bist du mit dieser Seite (nicht mit der Immobilie selbst)?