Version: 8.25.1Navigation überspringen
459.000 €
6 Zimmer  •  123,6 m²  •  EG
Immowelt logo

Wohnung zum Kauf - Erstbezug
459000 €
3.713 €/m²
6 Zimmer  •  123,6 m²  •  EG

Wohnraum selbst gestalten, so individuell wie Sie - Einzigartige Wohnung im Wildgarten

Wohntraum nach Maß - eine außergewöhnliche Wohnung, die Ihnen maximale Freiheit bei der Gestaltung und höchste Wohnqualität bietet.

Die ca. 124m² große Erdgeschosswohnung im beliebten Wildgarten befindet sich im Rohbau-Zustand und eröffnet Ihnen die Möglichkeit, Wände, Böden sowie Türen ganz nach Ihren persönlichen Vorstellungen auszubauen. So schaffen Sie sich ein Zuhause, das exakt Ihrem Stil und Ihren Bedürfnissen entspricht. Die Wohnung eignet sich ideal für Individualisten, Familien oder all jene, die ihren Wohntraum selbst verwirklichen möchten.

Technisch ist bereits bestens vorgesorgt: Eine Fußbodenheizung ist fixfertig eingebaut, zudem ist der Anschluss für eine Klimaanlage bereits vorbereitet. Damit sind die wichtigsten Grundlagen für modernen Wohnkomfort schon geschaffen. Außerdem ist ein Badezimmer mit WC und Walk-in Dusche sowie eine separate Toilette bereits ausgebaut.

Die Wohnung verfügt über bis zu sechs helle Zimmer mit außergewöhnlicher Raumhöhe und überzeugt durch einen flächigen Grundriss der von drei Seiten natürlich belichtet wird.  In außenliegender Sonnenschutz, bodentiefe Fenster teils französiche Fenster, sowie die Nordwestterrasse laden dazu ein, entspannte Stunden im Freien zu genießen - ob beim morgendlichen Kaffee oder zum Ausklang des Tages.

Auch die Lage lässt keine Wünsche offen: Dank sehr guter öffentlicher Verkehrsanbindung (Bus) erreichen Sie rasch die Innenstadt und andere zentrale Punkte Wiens. In unmittelbarer Umgebung befinden sich Apotheken, Krankenhaus, Schulen, Kindergärten, Supermärkte und Bäckereien - alles, was Sie für den täglichen Bedarf benötigen, ist bequem fußläufig erreichbar.

Lage und Infrastruktur

Vom und zum Wildgarten fährt man mit dem Bus (63A, zukünftig auch 63B) der eigens für den Wildgarten eine neue Haltestelle bekommen wird. Der Bus bringt Sie zum Bahnhof Hetzendorf oder Bahnhof Atzgersdorf mit den Schnellverbindungen der S-Bahn. Mit dem Fahrrad benötigen Sie ca. 20 Minuten in den Wienerwald bzw. Lainzer Tiergarten, oder Sie sind zu Fuß in ca. 15 Minuten im Hietzinger Bad. Den Flughafen erreicht man mit dem Auto in ca. 25 Minuten. Das Zentrum Wiens ist in ca. 30 Minuten erreicht und doch sind Grünflächen und Freizeitangebote in unmittelbarer Umgebung. Das bietet die Lage des WILDGARTENs.

Angebote des täglichen Bedarfs und der sozialen Infrastruktur - wie etwa Nahversorgung, zwei Kindergärten und Gastronomie - werden direkt am Areal geschaffen.

Nutzen Sie die Chance, Ihre Wohnträume von Grund auf zu realisieren.

Fotos: ©Lukas Schaller | © EHL Wohnen GmbH

Provisionsfrei für den Käufer!

 

Wir weisen darauf hin, dass zwischen dem Vermittler und dem zu vermittelnden Dritten ein familiäres oder wirtschaftliches Naheverhältnis besteht.

Der Vermittler ist als Doppelmakler tätig.

Infrastruktur / Entfernungen

Gesundheit
Arzt <1.250m
Apotheke <1.000m
Klinik <1.500m
Krankenhaus <1.000m

Kinder & Schulen
Schule <750m
Kindergarten <250m
Universität <3.750m
Höhere Schule <3.750m

Nahversorgung
Supermarkt <500m
Bäckerei <500m
Einkaufszentrum <1.750m

Sonstige
Geldautomat <1.250m
Bank <1.500m
Post <1.500m
Polizei <1.750m

Verkehr
Bus <250m
U-Bahn <1.750m
Straßenbahn <1.500m
Bahnhof <1.500m
Autobahnanschluss <1.750m

Angaben Entfernung Luftlinie / Quelle: OpenStreetMap

Merkmale

  • Bezug: ab sofort
  • Erdgeschoss
  • Personenaufzug
  • Terrasse
  • Bad mit Dusche
  • Bodenbelag: Fliesen, Parkett

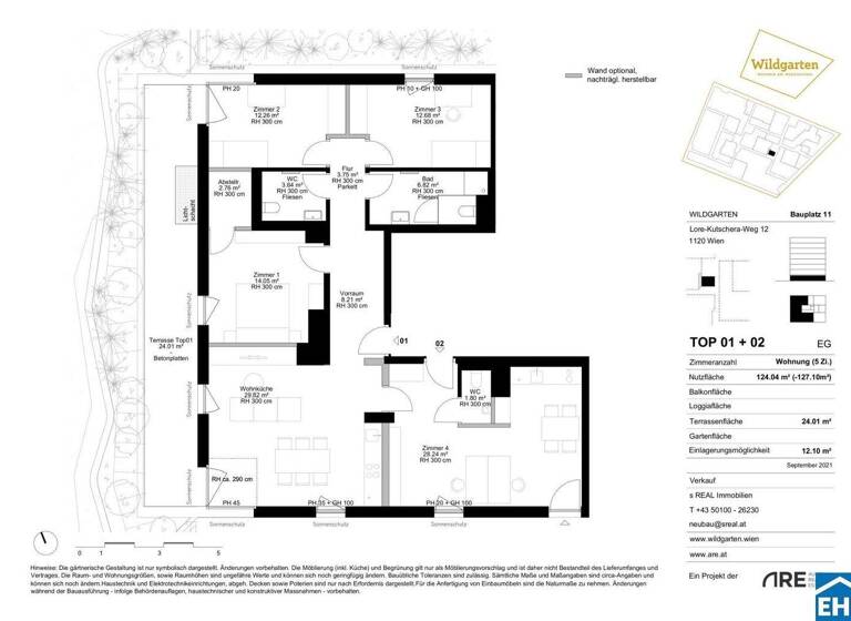
Grundrisse

Grundrisse
1 / 2

Realisiere Dein Projekt

Bausubstanz und Energie

Heizwärmebedarf (HWB)

B

Gesamtenergieeffizienz (fGEE)

A+
  • Baujahr2023
  • Zustand der ImmobilieNeubau, Erstbezug
  • HeizungsartFußbodenheizung
  • EnergieträgerFernwärme
Immowelt logo

Preisdetails

Kaufpreis
459000 €
3.712,99 €/m²
Provision für Käufer
Provision bezahlt der Abgeber.

Lage

address-icon
Lore-Kutschera-WegWien,Meidling (1120)

Weitere Informationen

Stichworte Nord-West-Balkon/Terrasse, Anzahl der Badezimmer: 1, Anzahl der separaten WCs: 2, Anzahl Terrassen: 1, Balkon-Terrassen-Fläche: 25,67 m², Bundesland: Wien, 21 Etagen, Wohnungsnr.: 1+2

Weitere Services

Lust auf eine Besichtigung?
Eine Frage zur Immobilie?
Nachricht hinzufügen
Mit der Nutzung der oben angegebenen Telefonnummer oder durch Klicken auf „Kontaktieren“ akzeptierst Du die Allgemeinen Nutzungsbedingungen, denen Du jederzeit widersprechen kannst. Weitere Informationen zum Datenschutz

Über den Anbieter

Prinz-Eugen-Straße 8-10, 1040 WIEN
partner badge
Partnerschaft
Frau Ingrid NeugebauerDein Kontakt
Online-ID: 23SPCISERMMC
Referenznummer: OBGC20230720163321463ab1aac8081
EHL Immobilien GmbH
EHL Immobilien GmbH
Bewertung: 4,5 von 5 Sternen
Nachricht hinzufügen
Mit der Nutzung der oben angegebenen Telefonnummer oder durch Klicken auf „Kontaktieren“ akzeptierst Du die Allgemeinen Nutzungsbedingungen, denen Du jederzeit widersprechen kannst. Weitere Informationen zum Datenschutz
Wie zufrieden bist du mit dieser Seite (nicht mit der Immobilie selbst)?