3-Zimmer Eigentumswohnung im Obergeschoss - barrierefrei mit Aufzug und Tiefgarage in Jena-Ost
Wohnpark Jenzigblick In den letzten Wochen wurde viel Zeit damit verbracht die Wohnanlage so umzuplanen, dass sie für die späteren Nutzer noch attraktiver wird. Dazu wurden aus dem ursprünglich sehr großen L-förmigen Baukörper mit einer großen Tiefgarage zwei kleinere Mehrfamilienhäuser mit zwei zugehörigen Tiefgaragen und einer gemeinsamen Tiefgaragenzufahrt entwickelt. Der Innenhof erhält dadurch mehr Licht und die Wohnungen im Bereich der ehemaligen Gebäudeinnenecke haben durch den großen Abstand mehr Privatsphäre untereinander. Die Häuser verfügen über einen Aufzug, alle Wohnungen sind komplett barrierefrei.
Es entstehen attraktive familien- und altengerechte Wohnungen unterschiedlicher Größe mit ansprechenden Außenbereichen inmitten eines der beliebtesten Stadtteile Jenas. Alle Wohnungen erhalten Tiefgaragen-Stellplätze und sind durch einen Aufzug barrierefrei zu erreichen. Rollstuhlgerechte Wohnungen stehen ebenso zur Verfügung. Die Fassadengestaltung erfolgt abwechslungsreich mit Holzwerkstoffelementen und Wärmedämmverbundsystem. Das Dach erhält eine ökologische Begrünung. Für Fahrräder, Kinderwagen und Müll entstehen im Außenbereich moderne Unterstellmöglichkeiten. Die Ausstattung erfolgt nach Bau- und Leistungsbeschreibung. Echtholzbeläge, Fußbodenheizungen, bodengleiche Duschen u.ä.m. sorgen für gehobenen Wohnkomfort. Energetisch wird das Gebäude nach aktuellen Standards mit effizienter Heiztechnik ausgeführt.
Merkmale
Bezug: 2027
1. Geschoss
Personenaufzug
Tiefgarage
Balkon
Terrasse
DSL-Anschluss
Barrierefrei, Rollstuhlgerecht
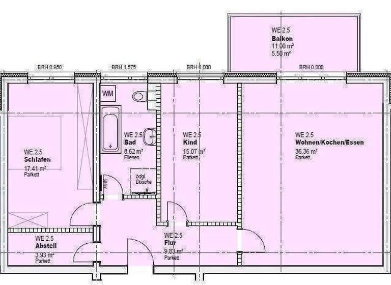
Grundrisse
Grundrisse
1 / 1
Realisiere Dein Projekt
Bausubstanz und Energie
Energieausweis
A
Zustand der ImmobilieNeubau, Erstbezug
HeizungsartZentralheizung: Fußbodenheizung
EnergieträgerGas, Luft-/Wasser-Wärmepumpe
Preisdetails
Kaufpreis
559000 €559.000 €
5.781,36 €/m²
Preis pro Stellplatz
23000 €23.000 €
Provision für Käufer
provisionsfrei
Geschätzte Gesamtkosten
598.130 €1
Kaufpreis
559.000 €
Kaufnebenkosten
39.130 €
2
Notarkosten (1,5%)
8.385 €
Grunderwerbsteuer (5%)
27.950 €
Grundbucheintrag (0,5%)
2.795 €
1Der angezeigte Wert ist eine automatisch berechnete Schätzung von immowelt.
2Bei den Angaben handelt es sich um ortsübliche Werte. Individuelle Kosten können abweichen.
Lage
Wenigenjena, Jena (07749)
Der Anbieter hat die genaue Adresse nicht freigegeben
Das Tümplingviertel befindet sich östlich zum Stadtzentrum von Jena. Es gehört mit zu den begehrten Wohnlagen von Jena. Hier ist es ruhig, grün und es ist alles zu Fuß erreichbar. Schulen, Kindergärten und Geschäfte des täglichen Bedarfs befinden sich ebenso in der Nähe wie der öffentliche Nahverkehr. Wie in kaum einer anderen Stadt Thüringens verbindet sich in Jena lebendige Urbanität mit hoher Lebensqualität und naturräumlicher Schönheit. Wissenschaft und Technologie erfahren durch Universität, Fachhochschule und viele mittelständische und große Unternehmen eine besondere Rolle. Jung, bunt und hip wird die Saalestadt vor allem durch die rund 25.000 Studenten, die neben einem ausgiebigen Nachtleben auch Wert auf Kunst und Kultur legen. Aber nicht nur Studenten, sondern auch Bewohner oder Besucher aller Altersklassen kommen beim vielseitigen Freizeit-und Serviceangebot voll auf ihre Kosten. Für die Freunde des Radwanderns bietet der Saale-Radweg neben leichten Touren für Familienausflüge auch anspruchsvolle Strecken für Radwanderprofis. Umso besonderer macht Jena die Lage im Saaletal mit seinen typischen Muschelkalkhängen. Infrastrukturell ist Jena bestens aufgestellt, von Einkaufsmöglichkeiten, über Ärzte bis hin zum Nah- und Fernverkehr.
Weitere Informationen
Wohnungsangebote
Es entstehen großzügig geschnittene Eigentumswohnungen mit 2 bis 5 Räumen zwischen 58 und 146 m². Jede Wohnung verfügt über eine Terrasse mit möglichem Gartenanteil ODER über einen großen Balkon ODER über eine Dachterrasse. Alle Wohnungen sind barrierefrei über Aufzüge zu erreichen.
Aktuell stehen noch verschiede 2- bis 5-Zimmer Wohnungen in den unterschiedlichsten Wohnetagen zur Verfügung. Gern senden wir Ihnen auf Anfrage ein komplettes Exposé der Wohnanlage mit sämtlichen Wohnungsgrundrissen.
https://www.jena-immobilien.de/jenzigblick
Besichtigungstermine
Bitte füllen Sie das Antwortformular für weitere Informationen aus. Hier können Sie für eine Beratung oder eine Besichtigung Ihren Terminwunsch eintragen.