


1 / 18



1 / 18
Doppelhaushälfte zum Kauf469900 €469.900 €3.469 €/m²4 Zimmer • 135,5 m²
469900 €469.900 €
3.469 €/m²
4 Zimmer • 135,5 m²
Neubau-Doppelhaushälfte in Andorf. - Hochwertige Basis mit Gestaltungsfreiheit.
In der Marktgemeinde Andorf im oberösterreichischen Innviertel entsteht aktuell diese moderne Doppelhaushälfte mit ca. 135?m² Wohnfläche auf einer Ebene.
Das Haus wird in einem erweiterten Ausbaustadium verkauft - Fassade, Ausmalung und Garagentor werden noch fertiggestellt, Böden und Küche sind nicht inkludiert.
_DIE VORTEILE DIESES HAUSES AUF EINEN BLICK:_
* Attraktive Wohnlage in Andorf.
* Moderne Bauweise und zeitgemäßer Grundriss.
* Ca. 135?m² Wohnfläche auf einer Ebene (Bungalow-Form).
* Gartenfläche ca. 182?m², Loggia ca. 19?m².
* Zwei Garagenplätze mit ca. 34?m² Fläche.
* Luftwärmepumpe mit Fußbodenheizung.
* Fassade, Ausmalung und Garagentor inkludiert.
DAS HAUS.
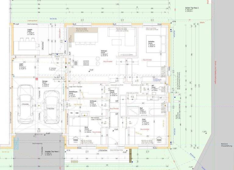
Das Haus erstreckt sich als moderner Bungalow über eine Ebene und verfügt über eine Wohnfläche von ca. 135,46?m².
Insgesamt vier Zimmer bieten ausreichend Platz für Wohnen, Arbeiten und Rückzug. Der offen gestaltete Wohnbereich ist mit direktem Zugang zur Loggia (ca. 19?m²) und dem Garten ausgelegt.
Zwei Abstellräume, ein Badezimmer mit Badewanne und ein separates WC sorgen für Komfort im Alltag.
Eine Doppelgarage mit ca. 34?m² ist Teil der Liegenschaft und bietet zusätzlichen Stauraum.
ZUSTAND UND AUSSTATTUNG.
Es handelt sich um einen hochwertigen Neubau aus dem Jahr 2024/25 in Massivbauweise mit Flachdach. Die Beheizung erfolgt über eine energieeffiziente Luftwärmepumpe mittels Fußbodenheizung.
Zum Zeitpunkt der Übergabe sind die Fassade, die Innenausmalung und das Garagentor fertiggestellt. Die Böden sowie die Küche sind nicht inkludiert und können vom künftigen Eigentümer frei gestaltet werden - ideale Voraussetzungen für Individualität.
Die Immobilie befindet sich somit in einem neuwertigen, belagsfertigen Zustand mit durchdachter Planung.
DIE LIEGENSCHAFT.
Der Grundstücks-Anteil umfasst ca. 387?m², davon entfallen ca. 182?m² auf die Gartenfläche. Es handelt sich um ein Doppelhaus, somit eine gemeinsam mit dem Nachbarhaus genutzte Parzelle. Das Grundstück ist vollständig als Bauland "Wohnen" gewidmet und liegt in einem modernen Wohngebiet. Die Liegenschaft ist erschlossen und bietet eine direkte Straßenzufahrt.
Zur Beantwortung weiterer Fragen sowie für Besichtigungstermine stehe ich Ihnen gerne täglich - auch am Wochenende - von 08:00 bis 22:00 Uhr zur Verfügung.
Ich freue mich über Ihre Kontaktaufnahme,
David Schnallinger
+43 664 468 54 64 [tel:+436644685464]
d.schnallinger@aktivit.org
Der Vermittler ist als Doppelmakler tätig.
Erteilen Sie uns ihren Suchauftrag und profitieren Sie von vielen Vorteilen und exklusiven Angeboten!
Ganz einfach und kostenlos unter: Jetzt Suchauftrag eingeben. [https://www.immofindsyou.at/partner-formular/partnerid-1]
Infrastruktur / Entfernungen
Gesundheit
Arzt <1.500m
Apotheke <1.500m
Kinder & Schulen
Schule <500m
Kindergarten <2.000m
Nahversorgung
Supermarkt <1.000m
Bäckerei <1.500m
Sonstige
Bank <1.000m
Geldautomat <1.000m
Post <1.000m
Polizei <500m
Verkehr
Bus <500m
Bahnhof <500m
Flughafen <9.500m
Angaben Entfernung Luftlinie / Quelle: OpenStreetMap
Das Haus wird in einem erweiterten Ausbaustadium verkauft - Fassade, Ausmalung und Garagentor werden noch fertiggestellt, Böden und Küche sind nicht inkludiert.
_DIE VORTEILE DIESES HAUSES AUF EINEN BLICK:_
* Attraktive Wohnlage in Andorf.
* Moderne Bauweise und zeitgemäßer Grundriss.
* Ca. 135?m² Wohnfläche auf einer Ebene (Bungalow-Form).
* Gartenfläche ca. 182?m², Loggia ca. 19?m².
* Zwei Garagenplätze mit ca. 34?m² Fläche.
* Luftwärmepumpe mit Fußbodenheizung.
* Fassade, Ausmalung und Garagentor inkludiert.
DAS HAUS.
Das Haus erstreckt sich als moderner Bungalow über eine Ebene und verfügt über eine Wohnfläche von ca. 135,46?m².
Insgesamt vier Zimmer bieten ausreichend Platz für Wohnen, Arbeiten und Rückzug. Der offen gestaltete Wohnbereich ist mit direktem Zugang zur Loggia (ca. 19?m²) und dem Garten ausgelegt.
Zwei Abstellräume, ein Badezimmer mit Badewanne und ein separates WC sorgen für Komfort im Alltag.
Eine Doppelgarage mit ca. 34?m² ist Teil der Liegenschaft und bietet zusätzlichen Stauraum.
ZUSTAND UND AUSSTATTUNG.
Es handelt sich um einen hochwertigen Neubau aus dem Jahr 2024/25 in Massivbauweise mit Flachdach. Die Beheizung erfolgt über eine energieeffiziente Luftwärmepumpe mittels Fußbodenheizung.
Zum Zeitpunkt der Übergabe sind die Fassade, die Innenausmalung und das Garagentor fertiggestellt. Die Böden sowie die Küche sind nicht inkludiert und können vom künftigen Eigentümer frei gestaltet werden - ideale Voraussetzungen für Individualität.
Die Immobilie befindet sich somit in einem neuwertigen, belagsfertigen Zustand mit durchdachter Planung.
DIE LIEGENSCHAFT.
Der Grundstücks-Anteil umfasst ca. 387?m², davon entfallen ca. 182?m² auf die Gartenfläche. Es handelt sich um ein Doppelhaus, somit eine gemeinsam mit dem Nachbarhaus genutzte Parzelle. Das Grundstück ist vollständig als Bauland "Wohnen" gewidmet und liegt in einem modernen Wohngebiet. Die Liegenschaft ist erschlossen und bietet eine direkte Straßenzufahrt.
Zur Beantwortung weiterer Fragen sowie für Besichtigungstermine stehe ich Ihnen gerne täglich - auch am Wochenende - von 08:00 bis 22:00 Uhr zur Verfügung.
Ich freue mich über Ihre Kontaktaufnahme,
David Schnallinger
+43 664 468 54 64 [tel:+436644685464]
d.schnallinger@aktivit.org
Der Vermittler ist als Doppelmakler tätig.
Erteilen Sie uns ihren Suchauftrag und profitieren Sie von vielen Vorteilen und exklusiven Angeboten!
Ganz einfach und kostenlos unter: Jetzt Suchauftrag eingeben. [https://www.immofindsyou.at/partner-formular/partnerid-1]
Infrastruktur / Entfernungen
Gesundheit
Arzt <1.500m
Apotheke <1.500m
Kinder & Schulen
Schule <500m
Kindergarten <2.000m
Nahversorgung
Supermarkt <1.000m
Bäckerei <1.500m
Sonstige
Bank <1.000m
Geldautomat <1.000m
Post <1.000m
Polizei <500m
Verkehr
Bus <500m
Bahnhof <500m
Flughafen <9.500m
Angaben Entfernung Luftlinie / Quelle: OpenStreetMap
Merkmale
- Bezug: Nach Vereinbarung
- 2 Stellplätze: 2 Garagen
- Badewanne
- Loggia
Grundrisse
Grundrisse
1 / 1
Realisiere Dein Projekt
Bausubstanz und Energie
Heizwärmebedarf (HWB)
C
Gesamtenergieeffizienz (fGEE)
A
- Baujahr2024
- Zustand der ImmobilieNeubau, Massivhaus, neuwertig
- HeizungsartZentralheizung: Fußbodenheizung
- EnergieträgerLuft-/Wasser-Wärmepumpe
Preisdetails
Kaufpreis
469900 €469.900 €
3.468,92 €/m²
Provision für Käufer
3% des Kaufpreises zzgl. 20% USt.
Weitere Preisinformationen
2 Garagenstellplätze
Lage

Andorf (4770)
Das Einfamilienhaus befindet sich in Andorf, einer lebenswerten Marktgemeinde im Bezirk Schärding im Innviertel. Die naturnahe Umgebung sowie die gute Anbindung an das regionale Zentrum Schärding, das rund 18 Km entfernt liegt, machen diesen Standort besonders attraktiv für Familien und Berufspendler.
INFRASTRUKTUR UND VERSORGUNG:
Ein Supermarkt ist nur 1,2 Km entfernt, eine Bäckerei befindet sich in 1,4 Km Entfernung. Eine Metzgerei liegt 1,6 Km entfernt, eine Drogerie 2,2 Km. Bank und Post sind jeweils rund 1,6 Km entfernt, eine Trafik ist in 1,7 Km erreichbar. Eine Tankstelle befindet sich ebenfalls in 1,6 Km Entfernung.
Gastronomisch bietet Andorf mit Restaurants, Cafés und einem Nahversorger im Ortszentrum eine gute Versorgung, ergänzt durch weitere Freizeitangebote.
BILDUNGSEINRICHTUNGEN:
Eine Volksschule befindet sich 1,3 Km entfernt, eine Mittelschule in nur 920 Metern. Mehrere Kinderbetreuungseinrichtungen sind ebenfalls in einem Umkreis von rund 2,0 Km gut erreichbar. Höhere Schulen und Fachrichtungen befinden sich in Schärding oder Ried im Innkreis.
VERKEHRSANBINDUNG:
Eine Bushaltestelle liegt etwa 1,5 Km entfernt, der Lokalbahnhof Andorf ist nur 830 Meter entfernt und bietet regelmäßige Verbindungen nach Schärding und Passau.
Mit dem Auto ist Schärding in ca. 20 Minuten erreichbar, der Flughafen Linz liegt etwa 80 Km entfernt und bietet nationale und internationale Flugverbindungen.
INFRASTRUKTUR UND VERSORGUNG:
Ein Supermarkt ist nur 1,2 Km entfernt, eine Bäckerei befindet sich in 1,4 Km Entfernung. Eine Metzgerei liegt 1,6 Km entfernt, eine Drogerie 2,2 Km. Bank und Post sind jeweils rund 1,6 Km entfernt, eine Trafik ist in 1,7 Km erreichbar. Eine Tankstelle befindet sich ebenfalls in 1,6 Km Entfernung.
Gastronomisch bietet Andorf mit Restaurants, Cafés und einem Nahversorger im Ortszentrum eine gute Versorgung, ergänzt durch weitere Freizeitangebote.
BILDUNGSEINRICHTUNGEN:
Eine Volksschule befindet sich 1,3 Km entfernt, eine Mittelschule in nur 920 Metern. Mehrere Kinderbetreuungseinrichtungen sind ebenfalls in einem Umkreis von rund 2,0 Km gut erreichbar. Höhere Schulen und Fachrichtungen befinden sich in Schärding oder Ried im Innkreis.
VERKEHRSANBINDUNG:
Eine Bushaltestelle liegt etwa 1,5 Km entfernt, der Lokalbahnhof Andorf ist nur 830 Meter entfernt und bietet regelmäßige Verbindungen nach Schärding und Passau.
Mit dem Auto ist Schärding in ca. 20 Minuten erreichbar, der Flughafen Linz liegt etwa 80 Km entfernt und bietet nationale und internationale Flugverbindungen.
Weitere Informationen
Sonstiges
ALLGEMEINER HINWEIS ZU IMMOBILIEN-ANGEBOTEN.
Die "Future in Living - Immobilien GmbH" stellt die Informationen über die präsentierten Immobilien mit größtmöglicher Sorgfalt zusammen und aktualisiert die Inhalte laufend. Eine Haftung oder Garantie für die Aktualität, die Richtigkeit und die Vollständigkeit der zur Verfügung gestellten Informationen kann jedoch nicht übernommen werden.
Wir benötigen folgende Daten für die Beantwortung ihrer Objektanfrage: Ihren Namen, ihre Telefonnummer sowie ihre E-Mail-Adresse. Wir verweisen ausdrücklich auf unsere Allgemeinen Geschäftsbedingungen und unsere Kundeninformationen unter: www.AKTIVIT.org/impressum. Durch weitere Inanspruchnahme unserer Leistungen erklären Sie deren Kenntnisnahme und Ihr ausdrückliches Einverständnis.
Bei etwaigen Fragen oder Unklarheiten, ersuchen wir um Kontaktaufnahme per E-Mail, telefonisch oder postalisch. Bei speziellen Fragestellungen, wie zu anfallenden Kaufnebenkosten, Finanzierungskosten, Förderungen, Immobilien-Ertragsteuer etc., empfehlen wir zusätzlich eine rechtsverbindliche Auskunft bei einem Steuerberater, Rechtsanwalt oder Notar vor Unterzeichnung eines Vertrags oder Angebots einzuholen.
WIR SUCHEN VERSTÄRKUNG IM TEAM.
Die Welt der Immobilien bietet laufend neue und spannende Herausforderungen. Wir arbeiten zielorientiert an innovativen Lösungen und Wegen, um unseren Kunden stets die beste Erfahrung zu bieten. Wenn auch Sie sich in der Welt der Immobilien zuhause fühlen und Interesse haben, Teil unseres Teams zu werden, freuen wir uns, Sie kennenlernen zu dürfen. Wir suchen laufend Verstärkung in gesamt Österreich und freuen uns auch über motivierte Quereinsteiger.
Mehr Infos unter: www.aktivit.org/karriere [https://www.aktivit.org/karriere] | oder via E-Mail an: karriere@AKTIVIT.org Stichworte Stellplatz vorhanden, Garage vorhanden, Nutzfläche: 135,46 m², Gesamtfläche: 135,46 m², Anzahl der Badezimmer: 1, Anzahl der separaten WCs: 1, Anzahl Loggias: 1, Balkon-Terrassen-Fläche: 18,94 m², Gartenfläche: 182,14 m², Bundesland: Oberösterreich, 1 Etagen
Die "Future in Living - Immobilien GmbH" stellt die Informationen über die präsentierten Immobilien mit größtmöglicher Sorgfalt zusammen und aktualisiert die Inhalte laufend. Eine Haftung oder Garantie für die Aktualität, die Richtigkeit und die Vollständigkeit der zur Verfügung gestellten Informationen kann jedoch nicht übernommen werden.
Wir benötigen folgende Daten für die Beantwortung ihrer Objektanfrage: Ihren Namen, ihre Telefonnummer sowie ihre E-Mail-Adresse. Wir verweisen ausdrücklich auf unsere Allgemeinen Geschäftsbedingungen und unsere Kundeninformationen unter: www.AKTIVIT.org/impressum. Durch weitere Inanspruchnahme unserer Leistungen erklären Sie deren Kenntnisnahme und Ihr ausdrückliches Einverständnis.
Bei etwaigen Fragen oder Unklarheiten, ersuchen wir um Kontaktaufnahme per E-Mail, telefonisch oder postalisch. Bei speziellen Fragestellungen, wie zu anfallenden Kaufnebenkosten, Finanzierungskosten, Förderungen, Immobilien-Ertragsteuer etc., empfehlen wir zusätzlich eine rechtsverbindliche Auskunft bei einem Steuerberater, Rechtsanwalt oder Notar vor Unterzeichnung eines Vertrags oder Angebots einzuholen.
WIR SUCHEN VERSTÄRKUNG IM TEAM.
Die Welt der Immobilien bietet laufend neue und spannende Herausforderungen. Wir arbeiten zielorientiert an innovativen Lösungen und Wegen, um unseren Kunden stets die beste Erfahrung zu bieten. Wenn auch Sie sich in der Welt der Immobilien zuhause fühlen und Interesse haben, Teil unseres Teams zu werden, freuen wir uns, Sie kennenlernen zu dürfen. Wir suchen laufend Verstärkung in gesamt Österreich und freuen uns auch über motivierte Quereinsteiger.
Mehr Infos unter: www.aktivit.org/karriere [https://www.aktivit.org/karriere] | oder via E-Mail an: karriere@AKTIVIT.org Stichworte Stellplatz vorhanden, Garage vorhanden, Nutzfläche: 135,46 m², Gesamtfläche: 135,46 m², Anzahl der Badezimmer: 1, Anzahl der separaten WCs: 1, Anzahl Loggias: 1, Balkon-Terrassen-Fläche: 18,94 m², Gartenfläche: 182,14 m², Bundesland: Oberösterreich, 1 Etagen
Weitere Services
Lust auf eine Besichtigung?
Eine Frage zur Immobilie?
Über den Anbieter
Future in Living - Immobilien GmbHMaklerbüro
Maiffredygasse 2, 8010 GRAZ
Partnerschaft

Herr David SchnallingerDein Kontakt
Online-ID: 2mybx5v
Referenznummer: OBGC2025041123002490074abd7319c


Future in Living - Immobilien GmbH
Wie zufrieden bist du mit dieser Seite (nicht mit der Immobilie selbst)?