Mehrfamilienhaus zum Kauf479900 €2.735 €/m²9 Zimmer • 175,5 m² • 333 m² Grundstück
479900 €
2.735 €/m²
9 Zimmer • 175,5 m² • 333 m² Grundstück
Vielseitiges Renditeobjekt: Gepflegtes Mehrgenerationenhaus mit drei Wohneinheiten und Nebengebäude
Merkmale
- Bezug: Nach Vereinbarung
- vermietet
- 333 m² Grundstück
- Einbauküche
- Badezimmer: Badewanne, Bad mit Fenster
- Keller
- Bodenbelag: Fliesen, Laminat, Kunststoff
- Terrasse
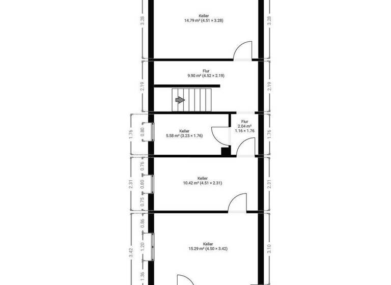
Grundrisse
Grundrisse
1 / 5
Bausubstanz und Energie
Energieausweis
H
- Baujahr1960
- Zustand der ImmobilieMassivhaus, Gepflegt
- HeizungsartZentralheizung
- EnergieträgerGas
Preisdetails
Kaufpreis
479900 €
2.735,25 €/m²
Provision für Käufer
3,57 % inkl. MwSt.
Die Käuferprovision beträgt 3,57 % (inkl. MwSt.) des beurkundeten Kaufpreises.
Die Käuferprovision beträgt 3,57 % (inkl. MwSt.) des beurkundeten Kaufpreises.
Weitere Preisinformationen
Ist-Mieteinnahmen pro Jahr: 27.600,00 EUR
Geschätzte Gesamtkosten
535.425 €1
Kaufpreis
479.900 €
Kaufnebenkosten
55.525 €
2Notarkosten (1,5%)
7.199 €
Grunderwerbsteuer (6%)
28.794 €
Provision für Käufer (3,57%)
17.132 €
Grundbucheintrag (0,5%)
2.400 €
1Der angezeigte Wert ist eine automatisch berechnete Schätzung von immowelt.
2Bei den Angaben handelt es sich um ortsübliche Werte. Individuelle Kosten können abweichen.
Lage

Langen, Langen (Hessen) (63225)
Der Anbieter hat die genaue Adresse nicht freigegeben
Weitere Informationen
Weitere Services
Lust auf eine Besichtigung?
Eine Frage zur Immobilie?
Über den Anbieter
Bahnhofstraße 168-170, 63263 Neu-Isenburg
10 Jahre Partnerschaft

Herr Benjamin DönitzDein Kontakt
Weitere Unterlagen
Online-ID: 26IPP3GUDVKJ
Referenznummer: 132811948#xE0oP
Wie zufrieden bist du mit dieser Seite (nicht mit der Immobilie selbst)?
