Neubau Doppelhaushälfte auf attraktivem Grundstück in Altenmünster
Stellen Sie sich vor, wie Ihre Kinder im Garten spielen, während Sie auf der Terrasse sitzen und den Alltag hinter sich lassen. Ein Ort, an dem man ankommt, loslässt und wirklich lebt. Genau das bietet Ihnen diese moderne Doppelhaushälfte in Altenmünster/Zusamzell.
Dieses Haus ist kein klassisches Reihenhaus, sondern ein echtes Zuhause für Familien, die Wert auf Ruhe, Platz und Lebensqualität legen, ohne die Nähe zur Stadt zu verlieren.
- Wohnfläche ca. 150 qm - vier bis fünf Zimmer - ideal für Familien - drei Etagen: Erdgeschoss, Obergeschoss und Dachgeschoss - Erweiterungspotenzial: Laut vorliegenden Genehmigungen kann die Wohnfläche auf bis zu ca. 170 qm erweitert werden
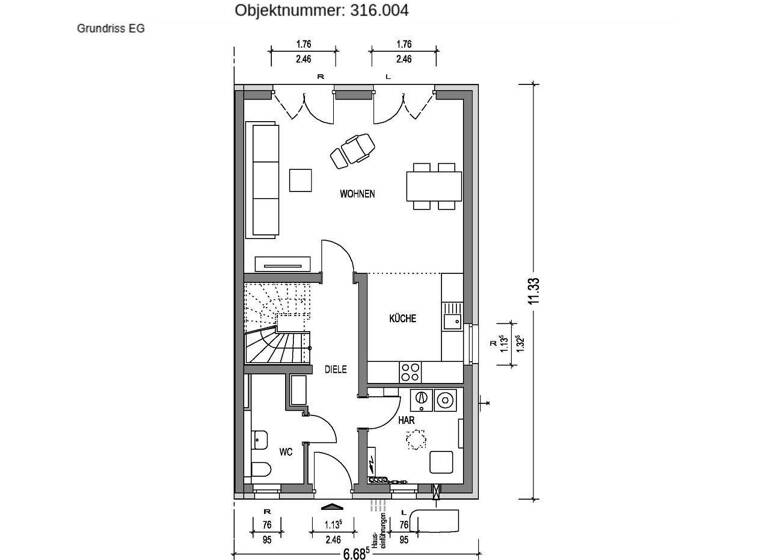
Im Erdgeschoss erwartet Sie ein offener Wohn und Essbereich mit viel Tageslicht. Hier spielt sich das Familienleben ab. Gemeinsames Kochen, Lachen, Hausaufgaben am Esstisch, gemütliche Abende auf dem Sofa.
Im Obergeschoss befinden sich mehrere Schlafzimmer, ideal als Elternschlafzimmer und Kinderzimmer. Jedes Zimmer bietet Rückzugsmöglichkeiten und Privatsphäre.
Das Dachstudio ist ein echtes Highlight: Perfekt als Spielzimmer, Homeoffice, Jugendzimmer oder Hobbyraum.
Weitere Angebote unter www.GARANT-IMMO.de
Merkmale
Bezug: nach Fertigstellung
271 m² Grundstück
- massive Bauweise mit Stahlbetondecken - energieeffiziente Ausführung nach GEG 2024 - Luft/Wasser-Wärmepumpe (Daikin) mit Fußbodenheizung & Kühlfunktion - Photovoltaikanlage (ca. 4,45 kWp) inklusive - 3-fach verglaste Kunststofffenster - elektrische Rollläden mit Alu-Panzer - kontrollierte Wohnraumlüftung - moderne weiße Putzfassade mit Wärmedämmverbundsystem - Satteldach mit hochwertigen Braas Dachsteinen - großzügige Raumhöhen im Erdgeschoss - Marken-Sanitärkeramik mit bodengleicher Dusche & Badewanne - Fliesen in Bad, Gäste-WC, Flur und Küche - umfangreiche Elektroausstattung inkl. Rauchwarnmelder - hochwertige Innentüren & massive Holztreppe - frostsichere Außenzapfstelle
Auf Wunsch kann die Doppelhaushälfte gegen Aufpreis mit einem Keller ausgeführt werden. Die Planung und Ausführung erfolgt durch den Bauträger entsprechend der individuellen Ausstattungs- und Nutzungswünsche des Käufers.
(Ausstattung gemäß Bau- und Leistungsbeschreibung. Änderungen vorbehalten.)
Grundrisse
Grundrisse
1 / 3
Realisiere Dein Projekt
Bausubstanz und Energie
Möchtest du Details zum Energieverbrauch?
Baujahr2026
Zustand der ImmobilieErstbezug
Preisdetails
Kaufpreis
518000 €518.000 €
3.453,33 €/m²
Provision für Käufer
3.094,00 EUR (inkl. MwSt.) inkl. MwSt. Die Maklercourtage für den Käufer beträgt 2.600,00 EUR zuzüglich der gesetzlichen MwSt., somit gesamt 3.094,00 EUR.
Geschätzte Gesamtkosten
564.983 €1
Kaufpreis
518.000 €
Kaufnebenkosten
46.983 €
2
Notarkosten (1,5%)
7.770 €
Grunderwerbsteuer (3,5%)
18.130 €
Provision für Käufer (3,57%)
18.493 €
Grundbucheintrag (0,5%)
2.590 €
1Der angezeigte Wert ist eine automatisch berechnete Schätzung von immowelt.
2Bei den Angaben handelt es sich um ortsübliche Werte. Individuelle Kosten können abweichen.
Lage
Zusamzell, Altenmünster (86450)
Der Anbieter hat die genaue Adresse nicht freigegeben
Die idyllische Lage verbindet Erholung und Alltag auf harmonische Weise: Während Kinder sicher aufwachsen und die Natur entdecken können, profitieren Berufspendler von der ausgezeichneten Anbindung. Augsburg erreichen Sie in nur ca. 25 Minuten, Ulm in etwa 35 Minuten und selbst München ist in rund 50 Minuten bequem erreichbar.
- ruhige Wohnstraße ohne Durchgangsverkehr - viele Familien in der Umgebung - Kindergarten und Schule schnell erreichbar - Spielplätze, Natur und Felder direkt in der Nähe - sicheres, gewachsenes Wohnumfeld
Weitere Informationen
Sonstiges
Bebaubarkeit: - geeignet für eine Doppelhaushälfte oder ein modernes Wohnkonzept - individuelle Architektenplanung möglich - ideale Voraussetzungen für ein familienorientiertes Wohnen
Der anteilige Grundstückspreis für eine Doppelhaushälfte beträgt EUR 130.000,- zzgl. einer Maklerprovision in Höhe von EUR 3.094,- inkl. MwSt. Alternativ besteht die Möglichkeit, das gesamte ca. 541 m² große Grundstück zu einem Kaufpreis von EUR 260.000,- zzgl. einer Maklerprovision von EUR 6.188,- inkl. MwSt. zu erwerben.
Nutzen Sie diese seltene Gelegenheit und verwirklichen Sie Ihr Traumhaus in einer der begehrtesten Lagen von Altenmünster.