Version: 8.26.0Navigation überspringen
650.000 €
Immowelt logo

Praxis zum Kauf
650000 €

Vielseitige Kapitalanlage mit Sofortnutzung und strategischem Entwicklungsspielraum

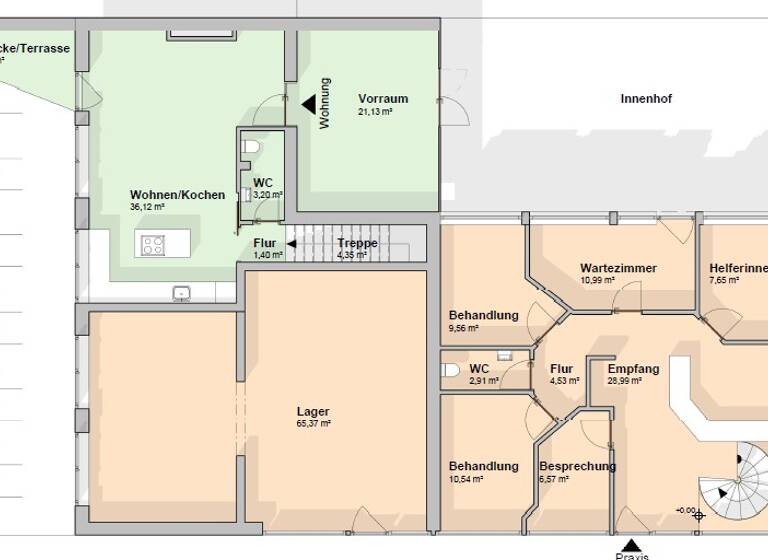
Zum Verkauf steht eine gepflegte, gemischt genutzte Immobilie in Aachen, bestehend aus einer barrierfreien Zahnarztpraxis sowie einer angrenzenden Wohnung und einer zusätzlichen Ausbaureserve. Das Objekt bietet damit eine seltene Kombination aus Direktnutzung und Entwicklungspotenzial - ideal für Eigennutzer aus dem Heilberufbereich oder Kapitalanleger mit klarer Vermietungsstrategie.

Die Praxisfläche umfasst ca. 180 m² und ist funktional sowie solide ausgebaut. Sämtliche Leitungen inklusive Elektrik wurden 2005 erneuert. Die Praxis verfügt über drei Behandlungsräume, ein Labor, ein Wartezimmer sowie einen Mitarbeiteraufenthaltsraum und bietet damit eine vollwertige, unmittelbar nutzbare Einheit.

Zusätzlich steht eine Rohbaufläche von ca. 65 m² als Ausbaureserve zur Verfügung. Auch hier wurden die Leitungen inklusive Elektrik im Jahr 2009 erneuert, sodass sich die Fläche - abhängig vom Nutzungskonzept und der Genehmigungslage - wirtschaftlich aktivieren lässt, beispielsweise als zusätzliche Praxis-, Büro- oder Nebenflächen oder für alternative Nutzungen.

Die angrenzende Wohnung verfügt über ca. 90 m² Wohnfläche (zzgl. ca. 21 m² Nutzfläche), eine barrierefreien Zugang und befindet sich in einem gepflegten, nutzbaren Zustand. Die Leitungen inklusive Elektrik wurden 2009 modernisiert. Die Einheit ist derzeit nicht vermietet und bietet somit flexible Nutzungsmöglichkeiten - sei es zur Eigennutzung oder zur Neuvermietung.

Darüber hinaus eröffnet die Immobilie weiteres Entwicklungspotenzial: Eine Aufstockung des Gebäudes erscheint (nach baurechtlicher Prüfung) grundsätzlich denkbar und könnte zusätzliche Wohn- oder Gewerbeflächen schaffen. Damit bietet das Objekt nicht nur eine sofortige Ertrags- bzw. Nutzungsperspektive, sondern auch langfristige strategische Erweiterungsmöglichkeiten.

Das 449 m² große Grundstück umfasst drei Stellplätze sowie eine Garage - ein wesentlicher Standortvorteil insbesondere für eine Praxisnutzung. Beheizt wird die Immobilie über Fernwärme. Das Gebäude stammt aus dem Baujahr 1968; wesentliche Umbaumaßnahmen wurden unter anderem 2005 durchgeführt, in diesem Zuge wurden auch die Fenster modernisiert.

Fazit: Eine vielseitige Immobilie mit unmittelbarer Nutzungsmöglichkeit, gesicherter Infrastruktur, Stellplätzen und zusätzlicher Flächenreserve - ergänzt um perspektivisches Erweiterungspotenzial - in einem nachgefragten Aachener Stadtgebiet mit attraktiven Entwicklungschancen für unterschiedliche Käuferprofile.

Merkmale

  • Keller
  • 4 Stellplätze: Garage, 3 Außen-Stellplätze
- konventionelle Massivbauweise
- Kunststoffrahmenfenster samt Isolierverglasung
- Leitungen inkl. Elektrik in der Praxis 2005 erneuert
- Leitungen inkl. Elektrik in der Wohnung 2009 erneuert
- barrierefrei Zahnarztpraxis
- barrierefreier Zugang zur Wohnung
- Fernwärme
- 3 Freistellplätze
- 1 Garage

Grundrisse

Grundrisse
1 / 2

Bausubstanz und Energie

Energieausweis

Endenergiebedarf (Wärme)

  • Zustand der ImmobilieGepflegt
  • EnergieträgerFernwärme
Immowelt logo

Preisdetails

Kaufpreis
650000 €
Provision für Käufer
3,57 % inkl. MWST
Weitere Preisinformationen
3 Stellplätze
1 Garagenstellplatz
Geschätzte Gesamtkosten
673.205 €1
Kaufpreis
650.000 €
Provision für Käufer (3,57%)
23.205 €
1Der angezeigte Wert ist eine automatisch berechnete Schätzung von immowelt.
2Bei den Angaben handelt es sich um ortsübliche Werte. Individuelle Kosten können abweichen.

Lage

address-icon
Aachen (52074)
Der Anbieter hat die genaue Adresse nicht freigegeben
Die Immobilie befindet sich in einer gefragten Wohnlage von Aachen, das für seine hohe Lebensqualität und ausgezeichnete Infrastruktur bekannt ist. Die Umgebung zeichnet sich durch eine gewachsene Wohnstruktur mit gepflegter Bebauung und einer angenehmen Nachbarschaft aus.

Die Nahversorgung ist hervorragend: Einkaufsmöglichkeiten des täglichen Bedarfs, Bäckereien, Apotheken, Ärzte sowie gastronomische Angebote befinden sich in komfortabler Reichweite. Auch Schulen, Kindergärten und weitere Bildungseinrichtungen sind gut erreichbar, was den Standort für Familien ebenso attraktiv macht wie für Paare oder Berufstätige.

Die Nähe zur Aachener Innenstadt eröffnet ein vielfältiges Angebot an Kultur, Einzelhandel und Gastronomie. Gleichzeitig profitieren Bewohner von attraktiven Freizeit- und Sportmöglichkeiten im direkten Umfeld. Neben weitläufigen Grünflächen und Naherholungsbereichen stehen unter anderem die Ulla-Klinger-Halle sowie weitere Sport- und Freizeiteinrichtungen zur Verfügung. Diese Kombination aus urbaner Infrastruktur und wohnortnahen Erholungsangeboten unterstreicht die hohe Lebensqualität dieses Standorts.

Die Verkehrsanbindung ist ausgezeichnet: Mehrere Buslinien gewährleisten eine schnelle Verbindung in die Innenstadt und zu umliegenden Stadtteilen. Zudem besteht eine gute Anbindung an die überregionalen Verkehrsachsen in Richtung Köln, Düsseldorf, Belgien und die Niederlande.

Die Lage verbindet urbanes Wohnen mit gewachsener Infrastruktur und sehr guter Erreichbarkeit.

Weitere Informationen

Sonstiges Die Informationen zur Immobilie und jegliche Objektunterlagen sind ohne Gewähr und basieren auf den Angaben des Eigentümers. Wir übernehmen keine Haftung für die Richtigkeit, Vollständigkeit und Aktualität der Daten. Stichworte Gesamtfläche: 386,00 m², vermietbare Fläche: 386,00 m², Grundstücksfläche: 449,00 m², 2 Etagen

Weitere Services

Lust auf eine Besichtigung?
Eine Frage zur Immobilie?
Nachricht hinzufügen
Mit der Nutzung der oben angegebenen Telefonnummer oder durch Klicken auf „Kontaktieren“ akzeptierst Du die Allgemeinen Nutzungsbedingungen, denen Du jederzeit widersprechen kannst. Weitere Informationen zum Datenschutz

Über den Anbieter

Roermonder Straße 388a, 52134 Herzogenrath
partner badge
Partnerschaft
Herr Oliver Rot
Herr Oliver RotDein Kontakt
Online-ID: 26868A5FGBM8
Referenznummer: 2026-JG-105
Wie zufrieden bist du mit dieser Seite (nicht mit der Immobilie selbst)?