2 Zimmer • 72 m² • 5. Geschoss • frei ab 01.05.2026
1 / 5
1 / 5
WG-Zimmer zum Kauf
49000 €49.000 €
681 €/m²
2 Zimmer • 72 m² • 5. Geschoss • frei ab 01.05.2026
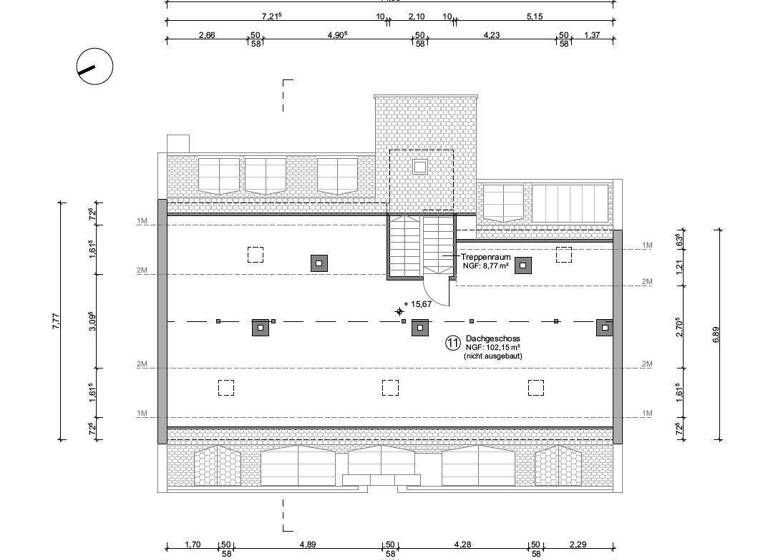
Dachrohling im kernsanierten Denkmal-Altbau - ca. 72 m² Wohnfläche realisierbar
Zum Verkauf steht ein Rohdachgeschoss mit großem Ausbaupotenzial in einem charmanten Altbau in der Feuerleinstraße in Nürnberg. Die Einheit bietet eine Bruttofläche von ca. 102 m², aus der nach dem Ausbau eine Wohnfläche von etwa 72 m² realisiert werden kann.
Geplant werden kann beispielsweise eine großzügige 2-Zimmer-Wohnung mit offenem Wohn- und Essbereich sowie integrierter Küche. Aufgrund der guten Raumstruktur eignet sich der Grundriss auch hervorragend für Kapitalanleger, die eine WG-Lösung realisieren möchten - ein Wohnkonzept, das gerade in dieser Lage sehr gefragt ist.
Das Gebäude wird 2026 umfassend kernsaniert. Die Sanierung erfolgt im Rahmen einer Denkmalschutzsanierung, wodurch der historische Charakter des Hauses erhalten bleibt und gleichzeitig moderne Gebäudetechnik integriert wird. Im Zuge der Sanierung wird eine moderne zentrale Luft-Wasser-Wärmepumpe installiert, das Treppenhaus vollständig erneuert und die gesamte technische Infrastruktur des Gebäudes modernisiert. Dabei werden unter anderem Heizungsleitungen, Steigleitungen sowie die komplette Stromanlage im Haus erneuert.
Ein großer Vorteil für den zukünftigen Ausbau: Die wichtigsten Leitungen wurden bereits bis ins Dachgeschoss geführt. Anschlüsse für Strom, Wasser, Heizung sowie Internet sind bereits vorhanden, wodurch die Umsetzung des Dachausbaus deutlich erleichtert wird.
Die zukünftige Wohnung befindet sich im 5. Obergeschoss ohne Aufzug und bietet dadurch eine ruhige Wohnlage über den Dächern des Hauses.
Merkmale
frei ab 01.05.2026
Denkmalschutz-Afa
WG-geeignet
Dachgeschoss, 5. Geschoss
- Anschlüsse für Strom, Wasser, Heizung und Internet bereits im Dachgeschoss vorhanden - ca. 72 m² mögliche Wohnfläche nach Ausbau - Denkmalschutzsanierung des gesamten Gebäudes (2026) - Heizungsleitungen erneuert - Steigleitungen erneuert - Stromanlage erneuert - moderne zentrale Luft-Wasser-Wärmepumpe
Grundrisse
Grundrisse
1 / 1
Realisiere Dein Projekt
Bausubstanz und Energie
Energieausweis
Ein Energieausweis ist für diesen Gebäudetyp nicht notwendig.
Baujahr2024
Zustand der Immobilierenovierungsbedürftig / sanierungsbedürftig
EnergieträgerElektro, Luft-/Wasser-Wärmepumpe
Preisdetails
Kaufpreis
49000 €49.000 €
680,56 €/m²
Provision für Käufer
Bitte beachte, das Angebot kann bei Vertragsabschluss die Zahlung einer Provision beinhalten. Weitere Informationen erhältst Du vom Anbieter.
Geschätzte Gesamtkosten
53.444 €1
Kaufpreis
49.000 €
Kaufnebenkosten
4.444 €
2
Notarkosten (1,5%)
735 €
Grunderwerbsteuer (3,5%)
1.715 €
Provision für Käufer (3,57%)
1.749 €
Grundbucheintrag (0,5%)
245 €
1Der angezeigte Wert ist eine automatisch berechnete Schätzung von immowelt.
2Bei den Angaben handelt es sich um ortsübliche Werte. Individuelle Kosten können abweichen.
Lage
Gostenhof, Nürnberg (90429)
Der Anbieter hat die genaue Adresse nicht freigegeben
Die Feuerleinstraße 33 befindet sich im beliebten Nürnberger Stadtteil Gostenhof, einem der spannendsten und sich dynamisch entwickelnden Viertel der Stadt. Die sogenannte Nürnberger Weststadt hat sich in den letzten Jahren zu einem lebendigen urbanen Quartier mit einer kreativen Mischung aus Wohnen, Kultur und Gastronomie entwickelt.
Das Umfeld ist geprägt von charmanten Altbauten, kleinen Cafés, Restaurants, Galerien und individuellen Geschäften. Gerade diese Mischung macht Gostenhof zu einem sehr gefragten Wohnstandort - insbesondere bei jungen Berufstätigen, Kreativen und Studierenden. Die kontinuierliche Aufwertung des Viertels sorgt zudem für eine positive Wertentwicklung und steigende Nachfrage nach Wohnraum.
Die Verkehrsanbindung ist hervorragend: Mehrere U-Bahn- und Straßenbahnlinien sowie Busverbindungen sind in wenigen Minuten erreichbar. Besonders die U-Bahn-Linie U1 Nürnberg verbindet den Stadtteil schnell mit der Nürnberger Innenstadt sowie mit dem Hauptbahnhof und den wichtigen Arbeitsstandorten der Region. Die Nürnberger Altstadt ist sowohl mit öffentlichen Verkehrsmitteln als auch mit dem Fahrrad in wenigen Minuten erreichbar.
Auch für Berufspendler ist die Lage attraktiv: Über den nahegelegenen Frankenschnellweg besteht eine schnelle Anbindung an die Autobahnen der Region, insbesondere an die Bundesautobahn A73, wodurch auch die Städte Fürth, Erlangen und das gesamte Ballungsgebiet Nürnberg schnell erreichbar sind.
In der Umgebung befinden sich zudem zahlreiche große Arbeitgeber und Unternehmensstandorte, darunter beispielsweise DATEV, Siemens sowie viele Unternehmen aus der Nürnberger Technologie- und Dienstleistungsbranche. Auch Hochschulen und Bildungseinrichtungen sind gut erreichbar, was die Lage zusätzlich für Studierende und junge Fachkräfte attraktiv macht.
Einkaufsmöglichkeiten, Ärzte, Apotheken, Schulen sowie Grünflächen befinden sich ebenfalls in unmittelbarer Nähe und sorgen für eine hohe Lebensqualität im Alltag.
Weitere Informationen
Sonstiges
Sollten Sie ein ausführliches Exposé anfordern, so überprüfen Sie bitte Ihren Spam-Ordner.
Für die Zusendung des Exposés / weitere Informationen zum Objekt sowie einen Terminwunsch bitte unbedingt nachfolgende Daten des Kaufinteressenten im Kontaktformular angeben
- kompletter Name - komplette Anschrift - E-Mail Adresse - Telefon - und /oder Mobilnummer
Alle Angaben (insbesondere Kaufpreis, Mieteinnahmen, Nebenkosten, Flächen- und Maßangaben) sind gemäß den uns vom Eigentümer erteilten Informationen. Evtl. beigefügte Grundrisse sind nicht maßstabsgetreu und eignen sich nicht zur Maßentnahme. Für die Richtigkeit und Vollständigkeit wird keine Haftung übernommen. Irrtum, Auslassung und Zwischenverwertung vorbehalten. Interessenten ist jegliche Weitergabe der durch uns erteilten Informationen an Dritte ohne unsere schriftliche Zustimmung nicht gestattet. Andernfalls haftet der Interessent bei Vertragsabschluss durch den Dritten schadenersatzpflichtig in Höhe der uns entgangenen Provision. Die von uns eingestellten Bilder und Texte unterstehen dem Urheberrecht und dürfen ohne unsere ausdrückliche Zustimmung nicht für gewerbliche Zwecke kopiert oder veröffentlicht werden. RE/MAX Casa Experte Nürnberg ist für den Verkäufer provisionspflichtig tätig und berechtigt, eine Verkäuferprovision in gleicher Höhe wie eine Käuferprovision zu berechnen.
Sie kennen jemanden, der seine Immobilie verkaufen möchte? Für jeden erfolgreich vermittelten Alleinauftrag erhalten Sie von uns eine Prämie von 10% aus der Gesamtprovision. Sie müssen lediglich den Kontakt zum Eigentümer herstellen. Rufen Sie uns einfach an oder schreiben Sie uns eine Mail!
Stichworte
Grundstücksfläche: 270,00 m², Anzahl der Schlafzimmer: 2, Bundesland: Bayern, 5 Etagen