Loftcharakter! 3-Zimmerwohnung mit gemĂĽtlicher Loggia! inkl. Garagenstellplatz!
Diese hochwertige 3-Zimmerwohnung mit Loftcharakter befindet sich am Rande der Innenstadt von Emden. Die Wohnung besticht durch eine groĂźzĂĽgige und durchdachte Gestaltung inklusive einer modernen, vollausgestatteten EinbaukĂĽche.
Die Sonne könne Sie auf der gemütlichen Loggia genießen.
Bei einer Wohnfläche von ca. 106m² teilt sich die Wohnung wie folgt auf:
Dachgeschoss: offener Wohn- und Essbereich mit direktem Zugang zur Loggia, modernes Tageslichtduschbad, HWR und Flur.
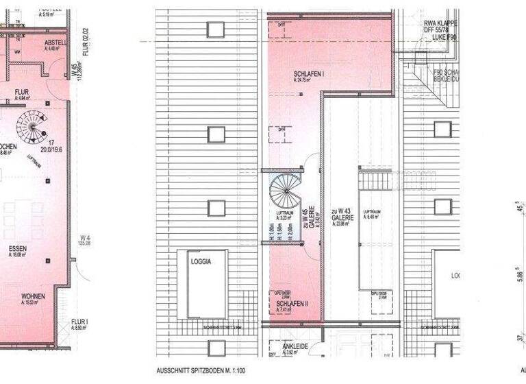
Spitzboden: moderne Galerie, Schlafzimmer I, Schlafzimmer II.
Des Weiteren verfĂĽgt die Wohnung ĂĽber einen Garagenstellplatz.
Merkmale
frei ab sofort
Dachgeschoss
Personenaufzug
Kelleranteil
Garage
Balkon
Diese helle und moderne Wohnung ist wie folgt ausgestattet:
- Wohnfläche ca. 106m² - 3-Zimmer - offener Wohn- Koch- und Essbereich mit moderner Einbauküche - Tageslichtduschbad mit barrierearmer Dusche - Hauswirtschaftsraum - moderne Vinylböden - Fußbodenheizung mit Einzelraumthermostaten - Loggia - Garagenstellplatz - Separates Kellerabteil
jährliche Nettokaltmieteinnahmen: 10.620,00€
Hausgeldvorauszahlung: 325,94€ im Monat.
Grundrisse
Grundrisse
1 / 1
Realisiere Dein Projekt
Bausubstanz und Energie
Energieausweis
B
Baujahr2013
Zustand der Immobilieneuwertig
HeizungsartFuĂźbodenheizung
EnergieträgerGas
Preisdetails
Kaufpreis
299950 €299.950 €
2.829,72 €/m²
Hausgeld
325.94 €325,94 €
Provision für Käufer
3,57 % inkl. MwSt.
Weitere Preisinformationen
1 Garagenstellplatz
Geschätzte Gesamtkosten
331.655 €1
Kaufpreis
299.950 €
Kaufnebenkosten
31.705 €
2
Notarkosten (1,5%)
4.499 €
Grunderwerbsteuer (5%)
14.998 €
Provision für Käufer (3,57%)
10.708 €
Grundbucheintrag (0,5%)
1.500 €
1Der angezeigte Wert ist eine automatisch berechnete Schätzung von immowelt.
2Bei den Angaben handelt es sich um ortsübliche Werte. Individuelle Kosten können abweichen.
Lage
Barenburg, Emden (26721)
Der Anbieter hat die genaue Adresse nicht freigegeben
Ca. 2 Km vom Emder Zentrum und dem Marktplatz gelegen. Das Stadtzentrum und die Fachhochschule sind bequem mit dem Fahrrad zu erreichen.
Diese schöne und moderne Wohnung befindet sich auf dem ehemaligen Kasernengelände am Stadtrand von Emden. Bis zum Emder Marktplatz benötigen Sie mit dem Fahrrad ca. 6 min. Hier finden Sie eine Vielzahl von gastronomischen Angeboten. Auch die Emder Fachhochschule ist in wenigen Minuten erreichbar. Einen Supermarkt und einen Bäcker finden Sie in unmittelbarer Nähe.
Die medizinische Versorgung ist durch zahlreiche Ärzte in der Stadt und durch das fußläufig entfernte Emder Klinikum sichergestellt.
Weitere Informationen
Sonstiges
Wir freuen. uns über Ihre Anfrage und stehen Ihnen gerne jederzeit zur Verfügung. Besichtigungstermine sind nach Absprache auch am Wochenende möglich.
In den Nebenkosten sind die Kosten fĂĽr Gas bereits enthalten. Der Strom wird durch den Mieter direkt mit dem Energieversorger abgerechnet.
Vor einer Besichtigung ist das Vorliegen einer Mieterselbstauskunft zwingend erforderlich. Diese erhalten Sie als Mail, zusammen mit dem Expose, gerne von uns.
Stichworte
Anzahl der Schlafzimmer: 2, Anzahl der Badezimmer: 1, Anzahl Balkone: 1, 3 Etagen