Version: 8.22.4Navigation überspringen
392.800 €
4 Zimmer  •  106 m²
Immowelt logo

Reihenmittelhaus zum Kauf - Erstbezug
392800 €
3.706 €/m²
4 Zimmer  •  106 m²

Hochwertige Doppelhaushälfte | Erstbezug 2026

Hohe Lebensqualität für Jungfamilien, nur 25 Minuten Autofahrt von der Wiener Stadtgrenze entfernt!
Zum Verkauf stehen 6 Doppelhaushälften im Zentrum von Ladendorf, nahe Mistelbach. Die Häuser verfügen jeweils über 3 Schlafzimmer im Obergeschoss und eine große Wohnküche im Erdgeschoss. Die Heizung erfolgt mittels einer nachhaltigen Luft-Wärmepumpe. Die Fertigstellung ist für Herbst 2026 vorgesehen.

Wählen Sie Ihr Lieblingshaus aus den unterschiedlichen Raumaufteilungen und Ausrichtungen: www.remax.at/de/pr-oase-28-in-ladendorf

Das Projekt befindet sich zwischen der Kapellenstraße und der Hauptstraße in Ladendorf. Das große Grundstück wurde in drei separate Grundstücke aufgeteilt, sodass nur 2 Häuser jeweils ein gemeinsames Wohnungseigentum bilden. Jedem Haus sind 2 Stellplätze zugeordnet. Die Häuser werden in Massivbauweise errichtet und sind nicht unterkellert.

Die Ausstattung umfasst alles, was man sich von einem modernen Haus nur wünschen kann:
- Heizung mit einer Luft-Wärmepumpe
- Fußbodenheizung inkl. Kühlfunktion
- Glasfaserinternetverbindung
- Sonnenschutz durch Raffstores
- 2 Toiletten, eine Dusche und eine Badewanne
Eine PV-Anlage, eine Klimaanlage oder eine E-Ladesäule für Elektroautos kann gegen Aufpreis angeboten werden. Eine Leerverrohrung ist standardmäßig eingebaut.

Lage
Die Marktgemeinde Ladendorf, auf einer Seehöhe von 228 m und an den Ausläufern der Leiser Berge gelegen, bietet eine hervorragende Lebensqualität. Die Infrastruktur ist gut ausgebaut und umfasst unter anderem eine Pfarrkirche, einen Arzt mit Apotheke, die Erste Bank, ein Kaufhaus sowie mehrere Fleischereien, Gasthäuser und Restaurants. Lokale Imbissbetriebe und Ab-Hof-Verkäufe erweitern das kulinarische Angebot. Zwei Gärtnereien und Tankstellen sorgen für zusätzliche Annehmlichkeiten. Für die Kleinen gibt es einen Kindergarten und eine Volksschule mit Nachmittagsbetreuung. Sport- und Freizeitmöglichkeiten wie ein Sportplatz, Tennisplätze, ein Hallenbad, eine Sauna, ein Gymnastikraum sowie zahlreiche Reit- und Radwege runden das Angebot ab.

Verkehrsanbindung
Nach Mistelbach benötigen Sie mit dem Auto lediglich 10 Minuten, mit der Bahn sogar nur 7 Minuten! Wien Floridsdorf erreichen Sie in 25 Minuten mit dem Auto, und mit der S2 oder dem REX fahren Sie mit den modernen Niederflurfahrzeugen von Ladendorf Bahnhof zum Praterstern in knapp einer Stunde.

Landesförderungen Niederösterreich
Bis zu € 10.000 Zuschuss und ein Darlehen mit 1 % Zinssatz sind möglich! In den Anhängen finden Sie ein Finanzierungsbeispiel dazu.
https://noe.gv.at/noe/Bauen-Neubau/Eigenheim_Reihenhaus.html

Kaufpreis und Kaufnebenkosten
Die Kaufpreise gelten für die belagsfertige Ausführung. Preise für schlüsselfertige Ausführung auf Anfrage.
- Grunderwerbsteuer: 3,5 % vom Kaufpreis inkl. Vertragserrichtungskosten
- Eintragungsgebühr: 1,1 % vom Kaufpreis inkl. Vertragserrichtungskosten.
Bei einer Hauptwohnsitzgründung sind Sie von der Gebühr befreit! Genauere Infos erhalten Sie nach einer Anfrage.
- Kosten der Vertragserrichtung samt Wohnungseigentumsbegründung und treuhändischer Abwicklung: 1,1 % vom Kaufpreis zzgl. Umsatzsteuer und Barauslagen.
- Provisionsfrei für Käufer.

Wir weisen auf ein wirtschaftliches Nahverhältnis zum Verkäufer aufgrund vorheriger Vermittlungen hin.

Infrastruktur / Entfernungen

Gesundheit
Arzt <6.000m
Apotheke <6.000m
Klinik <7.000m
Krankenhaus <8.000m

Kinder & Schulen
Schule <6.000m
Kindergarten <6.000m

Nahversorgung
Supermarkt <500m
Bäckerei <7.000m

Sonstige
Bank <500m
Geldautomat <7.000m
Polizei <500m
Post <500m

Verkehr
Bus <500m
Bahnhof <1.500m
Autobahnanschluss <8.500m

Angaben Entfernung Luftlinie / Quelle: OpenStreetMap

Merkmale

  • Bezug: Q3 2026
  • 2 Stellplätze: 2 Außen-Stellplätze
  • Terrasse

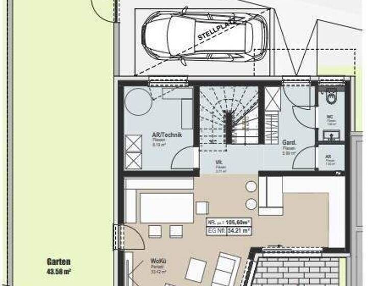
Grundrisse

Grundrisse
1 / 2

Virtueller Rundgang

Video

Realisiere Dein Projekt

Bausubstanz und Energie

Heizwärmebedarf (HWB)

B

Gesamtenergieeffizienz (fGEE)

A+
  • Baujahr2026
  • Zustand der ImmobilieNeubau, Massivhaus, Erstbezug
  • HeizungsartZentralheizung
  • EnergieträgerLuft-/Wasser-Wärmepumpe
Immowelt logo

Preisdetails

Kaufpreis
392800 €
3.705,66 €/m²
Provision für Käufer
Bitte beachte, das Angebot kann bei Vertragsabschluss die Zahlung einer Provision beinhalten. Weitere Informationen erhältst Du vom Anbieter.
Weitere Preisinformationen
2 Stellplätze

Lage

address-icon
Ladendorf (2126)

Weitere Informationen

Sonstiges
Projektseite - https://www.remax.at/de/pr-oase-28-in-ladendorf Stichworte Anzahl der Badezimmer: 1, Anzahl der separaten WCs: 2, Anzahl Terrassen: 2, Balkon-Terrassen-Fläche: 10,19 m², Bundesland: Niederösterreich

Weitere Services

Lust auf eine Besichtigung?
Eine Frage zur Immobilie?
Nachricht hinzufügen
Mit der Nutzung der oben angegebenen Telefonnummer oder durch Klicken auf „Kontaktieren“ akzeptierst Du die Allgemeinen Nutzungsbedingungen, denen Du jederzeit widersprechen kannst. Weitere Informationen zum Datenschutz

Über den Anbieter

Felberstr. 8, 1150 WIEN
partner badge
Partnerschaft
Herr Patrick KoukalDein Kontakt

Weitere Unterlagen

Online-ID: 2nmus5f
Referenznummer: OBGC20251216144252027eaa01b3786
RE/MAX Together - Kippis GmbH
RE/MAX Together - Kippis GmbH
Nachricht hinzufügen
Mit der Nutzung der oben angegebenen Telefonnummer oder durch Klicken auf „Kontaktieren“ akzeptierst Du die Allgemeinen Nutzungsbedingungen, denen Du jederzeit widersprechen kannst. Weitere Informationen zum Datenschutz
Wie zufrieden bist du mit dieser Seite (nicht mit der Immobilie selbst)?