Schönes Café in Heidgraben mit vielen Außen- und Innenplätze
Diese Gastronomiefläche wird aktuell als Café betrieben und soll auch weiterhin für diese Nutzung vermietet werden.
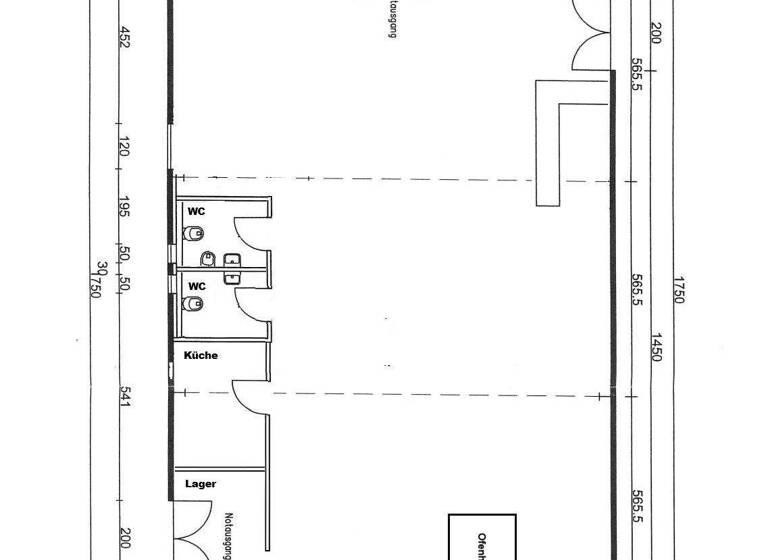
Herzstück der Immobilie ist eine großzügige Halle mit einem einladenden Gastraum, der derzeit über etwa 50 Sitzplätze verfügt und vielseitige Gestaltungsmöglichkeiten bietet. Ergänzt wird der Innenbereich durch Terrassenflächen im Außenbereich, die zusätzlichen Platz für Gäste schaffen und besonders in den wärmeren Monaten für eine angenehme Atmosphäre sorgen.
Zur Ausstattung gehören eine gut ausgestattete Küche sowie ein Verkaufstresen, der einen reibungslosen Serviceablauf ermöglicht. Separate WCs für Damen und Herren sind selbstverständlich vorhanden. Darüber hinaus bietet ein Abstellraum zusätzlichen Stauraum für Waren und Betriebsmaterialien.
Ein großer Vorteil ist, dass ein Großteil des vorhandenen Inventars übernommen werden kann, sodass ein schneller und unkomplizierter Start des Geschäftsbetriebs möglich ist.
Merkmale
frei ab 15.09.2026
- Moderne Halle mit großer Gastfläche (akt. ca. 50 Sitzplätze) - Außenbereich mit Terrassenflächen für zusätzliche Sitzplätze - Gut ausgestattete Küche - Verkaufstresen / Servicebereich - Separate WCs für Damen und Herren - Abstellraum - Inventar kann zum großen Teil übernommen werden
Grundrisse
Grundrisse
1 / 1
Realisiere Dein Projekt
Bausubstanz und Energie
Energieausweis
Endenergiebedarf (Wärme)
Endenergiebedarf (Strom)
Baujahr2013
HeizungsartOfen
EnergieträgerHolz
Mietkosten
Kaltmiete
700 €
Nebenkosten
100 €
Provision für Mieter
2,38 Nettomonatsmieten inkl. Mehrwertsteuer, zahlbar durch den Mieter
Kaution
2100 €2.100 €
Lage
Heidgraben (25436)
Der Anbieter hat die genaue Adresse nicht freigegeben
Die Gemeinde Heidgraben liegt ca. 18 km nordwestlich von Hamburg am Rande der Marschgebiete. Mit seinen rund 2.800 Einwohnern grenzt es an die Nachbarstädte Uetersen und Tornesch sowie an die Gemeinden Groß- und Klein Nordende. Das Ortszentrum findet sich im Bereich der Grundschule während das gesamte Gemeindegebiet eher zerstreut besiedelt ist. Für den täglichen Bedarf findet man im hurtig markt Heidgraben, das Einkaufs- und Veranstaltungszentrum der Gemeinde, einen Lebensmittelmarkt, einen Friseur, einen Backshop sowie einen Post Shop.
Gute Voraussetzungen für ein weiteres Wachstum Heidgrabens ist die zentrale Verkehrsanbindung. Mit dem öffentlichen Nahverkehr, durch die Busverbindungen der KViP und dem HVV, erreicht man bequem die umliegenden Gemeinden sowie die Nachbarstädte und die Bahnhöfe Tornesch und Elmshorn mit ihren Bahnlinien Hamburg, Kiel, Westerland (Sylt) und Flensburg. Die Nähe zur A23 über die Anschlussstelle Tornesch, die man in rund 10 Minuten mit dem PKW erreicht, bietet gute Anbindungen an das Autobahnnetz.
Die Gemeinde Heidgraben verfügt über einen Kindergarten, eine Grundschule sowie ein großzügiges Gemeindezentrum für Jung und Alt. Die weiterführenden Schulen, wie Gymnasien und Gemeinschaftsschulen, befinden sich in Uetersen, Tornesch und Elmshorn.
Weitere Informationen
Sonstiges
Die Verbrauchskosten (Strom und Wasser) muss der Mieter selbst direkt mit den Versorgern abrechnen.
Stichworte
Nutzfläche: 187,00 m², Gesamtfläche: 187,00 m², Distanz zum Flughafen: 31.00, Distanz zum Hauptbahnhof: 3.40, Distanz zur Autobahn: 6.70, Distanz zu U-/S-Bahn: 11.60, Distanz zum Bus: 0.60, Distanz vom Zentrum: 0.70