Version: 8.24.0Navigation überspringen
Mietkosten auf Anfrage
2 Zimmer  •  55 m²
Immowelt logo

Wohnung zur Miete
Mietkosten auf Anfrage
2 Zimmer  •  55 m²

Betreutes Wohnen im Seniorenzentrum "Christopherus" - Attraktives Neubauprojekt in Tiefenbach i. d. Oberpfalz

Im beschaulichen Tiefenbach entsteht zentrumsnah das Seniorenzentrum „Christopherus“, bestehend aus zwei getrennten Baukörpern. In einem Bauteil befinden sich Pflegeappartements. Das zweite Gebäude beinhaltet Betreute Wohnungen sowie eine ambulant betreute Senioren-WG.
Mit dem Bau wurde im Frühjahr 2025 begonnen.
Das Gebäude wird nach höchstem energetischem Standard (KfW40-NH-QNG) errichtet.

Insgesamt entstehen 14 lichtdurchflutete Wohneinheiten von 55 m² bis 66 m².
Hinzu kommt zu jeder Wohnung eine anteilige Gemeinschaftsfläche mit 12 m².

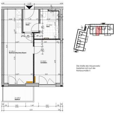
Die barrierefreien 2-Zimmer-Wohnungen befinden sich im 1. und 2. OG und verfügen über einen großzügigen Balkon. Die Wohnungen werden mit Küchen ausgestattet. Stellplätze bzw. Garagen können bei einigen Wohnungen mit angemietet werden.

Die Wohnungen stehen ab dem Frühjahr 2026 zur Vermietung. Mietanfragen nehmen wir jedoch bereits jetzt schon entgegen. Schnell sein lohnt sich!

Merkmale

  • Einbauküche
  • Personenaufzug
  • Garage, Außen-Stellplatz
  • Balkon
  • DSL-Anschluss
  • Barrierefrei, Rollstuhlgerecht
  • kontrollierte Be- und Entlüftungsanlage
  • Bad mit Dusche

Grundrisse

Grundrisse
1 / 1

Realisiere Dein Projekt

Bausubstanz und Energie

Energieausweis

A+
  • Baujahr2025
  • Zustand der ImmobilieNeubau
  • HaustypKfW 40
  • EnergieträgerLuft-/Wasser-Wärmepumpe
Immowelt logo

Mietkosten

Miete auf Anfrage
Kaution
keine Angabe

Lage

address-icon
Tiefenbach (93464)
Der Anbieter hat die genaue Adresse nicht freigegeben
Inmitten einer reizvollen, waldreichen Landschaft im Dreiwäldereck Bayerischer-, Böhmischer- und Oberpfälzer Wald liegt der Erholungsort Tiefenbach i. d. Opf. Herrliche Flora mit seltenen Pflanzen laden auf gut markierten Wegen zu herrlichen Spaziergängen und Wanderungen ein, bei denen man die Sehenswürdigkeiten der Gegend genießen kann. Neben Ruhe und Erholung, bietet der Ort ein ausreichendes Freizeitangebot, allem voran der nahegelegene Silbersee.

Weitere Informationen

Bauausführung Alle 14 Wohnungen verfügen über hochwertige Ausstattungsmerkmale:

- Barrierefreies Bauen nach DIN 18040-2
- Massivbau
- Barrierefreie Zugänge im gesamten Haus
- Breite Türen und Flure
- Barrierefrei und behindertengerecht
- Bodenebener Duschbereich
- Barrierefreie Nassräume
- Aufzug in die einzelnen Geschosse
- Notrufsystem in jeder Wohneinheit
- Brandmelder
- Ökologische Heizanlage mit nachwachsenden Rohstoffen

Stichworte Sonstiges/Wohnen: seniorengerechtes Wohnen Versorgung: Städtische Wasserversorgung, Eigene Stromversorgung

Weitere Services

Lust auf eine Besichtigung?
Eine Frage zur Immobilie?
Nachricht hinzufügen
Mit der Nutzung der oben angegebenen Telefonnummer oder durch Klicken auf „Kontaktieren“ akzeptierst Du die Allgemeinen Nutzungsbedingungen, denen Du jederzeit widersprechen kannst. Weitere Informationen zum Datenschutz

Über den Anbieter

Untere Brandstatt 5, 84364 Bad Birnbach
partner badge
Partnerschaft
Herr Josef EglsederDein Kontakt
Online-ID: 2dz7a56
SWB Sonnenwohnbau GmbH
SWB Sonnenwohnbau GmbH
Bewertung: 3 von 5 Sternen
Nachricht hinzufügen
Mit der Nutzung der oben angegebenen Telefonnummer oder durch Klicken auf „Kontaktieren“ akzeptierst Du die Allgemeinen Nutzungsbedingungen, denen Du jederzeit widersprechen kannst. Weitere Informationen zum Datenschutz
Wie zufrieden bist du mit dieser Seite (nicht mit der Immobilie selbst)?