Version: 8.24.0Navigation überspringen
Steinel & Dietel GmbH
3.000 €
500 m² Verkaufsfläche

Laden zur Miete
3.000 €
500 m² Verkaufsfläche

500 m² Gewerbefläche im Zentrum von Thiersheim - ehem. Verbrauchermarkt - direkt an Hauptverkehrsstraße

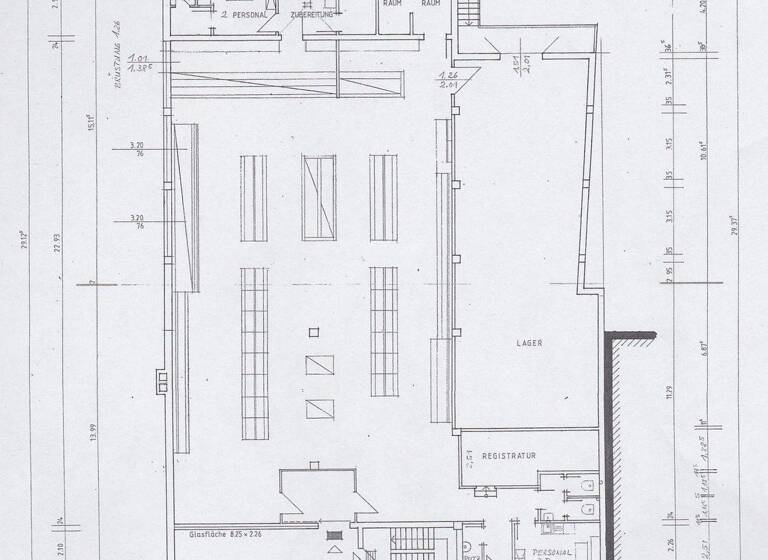
Der ehemalige Lebensmittelmarkt umfasst eine Fläche von ca. 500 m² und öffnete in den 1980er Jahren zum ersten Mal seine Türen. Das Objekt verfügt über eine Metzgertheke, Kühl- und Tiefkühlräume, einen Vorbereitungsraum, Lager sowie Personalräume.

Für Existenzgründer und solche, die es werden wollen, sind das ideale Voraussetzungen, um neu durchzustarten!

Das Gewerbeobjekt liegt direkt in der komplett neu gestalteten Ortsmitte. In diesem Zuge sind auf der genüberliegenden Straßenseite auch einige Parkplätze geschaffen worden. Zum Objekt selbst gehören 13 PKW-Stellplätze.

Die Immobilie wird vom Eigentümer nach Wunsch des neuen Mieters und unter Berücksichtigung der Nutzung umfassend renoviert. Dabei würde auch die vorhandene Ölheizung erneuert und auf eine Gasheizung umgestellt werden.

Zusätzlich zur Nettokaltmiete fallen Nebenkosten in Höhe von monatlich ca. 200 € an. Nicht mit enthalten sind Strom, Wasser, Abwasser und Öl bzw. Gas. Diese sind vom Mieter selber zu tragen.

Eine mögliche Erweiterung der Gewerbefläche um ca. 200 m² ist ebenfalls möglich. Der Mietpreis würde sich dann entsprechend angepasst.

Merkmale

  • Bezug: sofort

Grundrisse

Grundrisse
1 / 1

Realisiere Dein Projekt

Bausubstanz und Energie

Energieausweis

Ein Energieausweis ist für diesen Gebäudetyp nicht notwendig.
MediumRectangleTop

Mietkosten

Warmmiete
3.200 €
Nettomiete
3.000 €
Nebenkosten
200 €
Provision für Mieter
2,38 KM inkl. ges. MwSt. inkl. MwSt.
Kaution
2 Kaltmieten

Lage

address-icon
Thiersheim (95707)
Der Anbieter hat die genaue Adresse nicht freigegeben
Das Gewerbeobjekt befindet sich in zentraler Lage direkt am neu gestalteten Marktplatz des Marktes Thiersheim. Unterhalb der bekannten Wehrkirche ist ein wunderschöner Platz entstanden, der jetzt den Mittelpunkt der Gemeinde Thiersheim bildet.

Die Gemeinde im Landkreis Wunsiedel ist ein aufstrebender Ort mit rund 1800 Einwohnern. Der historische Marktplatz zusammen mit der Wehrkirche gelten als Wahrzeichen der Gemeinde. Früher war dieser Ort für reiche Vorkommen an Bodenschätzen, Mineralien und hochwertigem Speckstein über die Ortsgrenzen hinaus bekannt.

Heute hat sich Thiersheim durch die nahe gelegene Autobahnauffahrt zur A93 (nur ca. 2 Fahrminuten, ca. 1,5 km) zu einer aufstrebenden Marktgemeinde mit bester Infrastruktur und Ansiedlung zahlreicher Gewerbe- und Handwerksbetriebe entwickelt.

Im näheren Umkreis befinden sich die Orte Arzberg und Höchstädt im Fichtelgebirge, die beide nur etwa 8 Fahrminuten und 6 km entfernt liegen. Somit vergrößert sich das Einzugsgebiet des möglichen Lebensmittelhandels.

Weitere Informationen

Sonstiges Der Energieausweis ist durch den Eigentümer in Auftrag gegeben.

Hinweis: Bitte haben Sie dafür Verständnis, dass alle Angaben und Preise sowie Reservierungen unverbindlich sind und immer nur vorbehaltlich der Zustimmung des Eigentümers gelten. Ein Rechtsanspruch auf einen Kauf- oder Mietvertrag kommt erst durch Gegenzeichnung desselbigen durch den Eigentümer zustande.

Alle objektbezogenen Angaben im Exposé stammen vom Eigentümer. Die Richtigkeit und Vollständigkeit wurde von uns nicht geprüft und daher übernehmen wir keine Haftung.

Die Weitergabe der zur Verfügung gestellten Objektunterlagen und des von uns erstellten Exposés sind nicht gestattet. Bei Zuwiderhandlung bleiben Schadensersatzansprüche vorbehalten. Stichworte Gesamtfläche: 500,00 m², Bundesland: Bayern

Weitere Services

Lust auf eine Besichtigung?
Eine Frage zur Immobilie?
Nachricht hinzufügen
Mit der Nutzung der oben angegebenen Telefonnummer oder durch Klicken auf „Kontaktieren“ akzeptierst Du die Allgemeinen Nutzungsbedingungen, denen Du jederzeit widersprechen kannst. Weitere Informationen zum Datenschutz

Über den Anbieter

Brüder-Grimm-Str. 48, 95032 Hof
partner badge
10 Jahre Partnerschaft
Frau Birgit DietelDein Kontakt
Online-ID: 2n57q5e
Referenznummer: 01678
Steinel & Dietel GmbH
Steinel & Dietel GmbH
Bewertung: 4,6 von 5 Sternen
Nachricht hinzufügen
Mit der Nutzung der oben angegebenen Telefonnummer oder durch Klicken auf „Kontaktieren“ akzeptierst Du die Allgemeinen Nutzungsbedingungen, denen Du jederzeit widersprechen kannst. Weitere Informationen zum Datenschutz
MediumRectangleTop
MediumRectangleBottom
MediumRectangleTop
Wie zufrieden bist du mit dieser Seite (nicht mit der Immobilie selbst)?