Version: 8.25.1Navigation überspringen
ohne-makler.net - Immobilien selbst vermarkten
375.000 €
2 Zimmer  •  58,5 m²  •  EG

Wohnung zum Kauf • provisionsfrei
375000 €
6.414 €/m²
2 Zimmer  •  58,5 m²  •  EG

Stuck, Charme & Kiezflair: ein Raumwunder im historischen Bergmannkiez! Provisionsfrei!

Das repräsentative Eckhaus befindet sich in Bestlage im Bergmannkiez und ist Teil des denkmalgeschützten Bauensembles Chamissoplatz. Errichtet im Jahr 1890 von Ludwig Dolz, beeindruckt das Gebäude durch seine historische Gründerzeitarchitektur mit einer reich verzierten Fassade, großzügigen Deckenhöhen und zahlreichen original erhaltenen Altbaudetails wie kunstvollen Stuckverzierungen und klassischen Doppelkastenfenstern.
Das Haus verfügt über zwei Eingänge Fedicinstr. 30 und Kloedenstr. 4, sowie ein beeindruckendes historisches Foyer mit stilvollen Treppenhäusern mit hölzernen Handläufen.

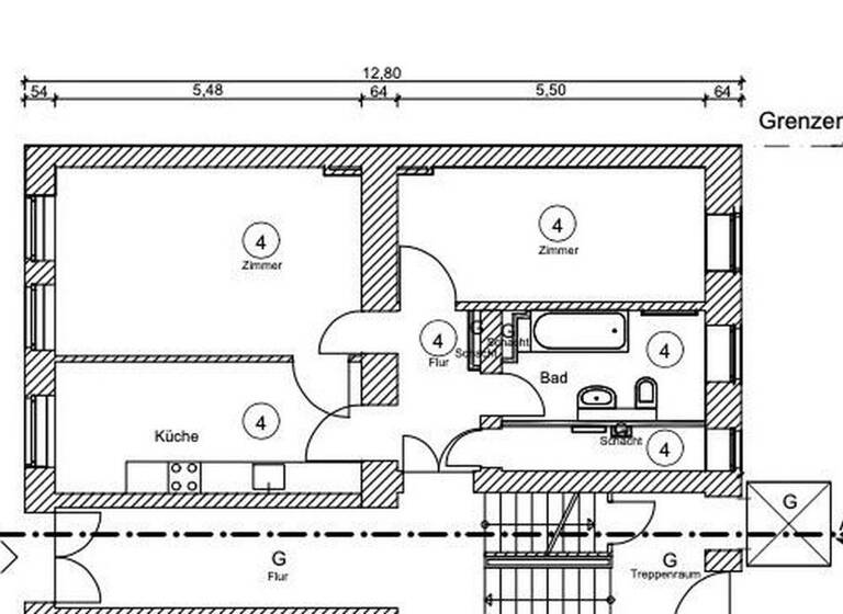
Diese schöne Wohnung mit ca. 58,47 m2 Wohnfläche befindet sich im Erdgeschoss mit Eingang in der Fidicinstraße 30 und überzeugt mit ihrem klassischen Altbaucharme.
Beim Betreten durch die eindrucksvolle historische Eingangstür öffnet sich eine zentrale Diele, von der aus alle Räume direkt und effizient erschlossen werden - ein durchdachter Grundriss, der Funktionalität und Großzügigkeit harmonisch vereint.
Besonderes Highlight ist der original erhaltene Stuck im großen Zimmer - ein beeindruckendes Zeugnis historischer Handwerkskunst, das der Wohnung außergewöhnlichen Charakter und stilvolle Atmosphäre verleiht.
Die beindruckende Deckenhöhe von ca. 3,30m unterstreicht den Altbaucharme zusätzlich und schafft ein großzügiges, offenes Raumgefühl.
Die Wohnung verfügt zudem über eine separate Küche, ein geräumiges und helles Badezimmer sowie eine praktische Abstellkammer mit Waschmaschinenanschluss.

+++ Diese Wohnung ist ein Raumwunder und bietet ungeahnte Möglichkeiten der Raumgestaltung! Wir helfen Ihnen gern dabei! +++

Trotz der zentralen Lage bietet die Wohnung eine angenehme Ruhe. Der großzügige Innenhof ist funktional gestaltet und verfügt über Sitzbänke, einen Sandkasten und überdachte Fahrradständer. Dank des Denkmalschutzes bleibt der einzigartige Altbaucharakter bewahrt und sorgt für eine geschützte Wohnkultur mit besonderem Flair.

Merkmale

  • Bezug: sofort
  • Denkmalschutz-Afa
  • Erdgeschoss
  • Badewanne
  • Keller
Keller, Vollbad, Sonstiges (s. Text)

Bemerkungen:
+ "Durchgestecktes" Wohnen sorgt für optimale Lichtverhältnisse
+ Durchdachter Grundriss mit klarer Raumaufteilung und zentraler Diele
+ Aufwendig verzierte Decken mit original erhaltenem Stuck
+ Großzügige Deckenhöhe ca. 3,30 m
+ Historischer Holzdielenboden in der gesamten Wohnung (außer Bad)
+ Originale Doppelkastenfenster mit klassischen Griffoliven zur Straßenseite
+ Außenrolläden
+ Alte Kassettentüren mit stilvollen Zargen und originalen Beschlägen
+ Großes, modernes Tageslichtbad mit Fenster
+ Handtuchheizkörper
+ Praktische Abstellkammer mit Waschmaschinenanschluss
+ Gegensprechanlage
+ Eigenes Kellerabteil für zusätzlichen Stauraum

+ Die Wohnung wurde ca. 2013 umfassend saniert (inklusive Elektrik, Rohrleitungen, Badezimmer, gespachtelte Wände)

Grundrisse

Grundrisse
1 / 2

Realisiere Dein Projekt

Bausubstanz und Energie

Energieausweis

D
  • Baujahr1901
  • HeizungsartZentralheizung
  • EnergieträgerGas
MediumRectangleTop

Preisdetails

Kaufpreis
375000 €
6.413,55 €/m²
Hausgeld
203 €
Provision für Käufer
provisionsfrei; keine Provision, courtagefrei
Geschätzte Gesamtkosten
405.000 €1
Kaufpreis
375.000 €
Notarkosten (1,5%)
5.625 €
Grunderwerbsteuer (6%)
22.500 €
Grundbucheintrag (0,5%)
1.875 €
1Der angezeigte Wert ist eine automatisch berechnete Schätzung von immowelt.
2Bei den Angaben handelt es sich um ortsübliche Werte. Individuelle Kosten können abweichen.

Lage

address-icon
Fidicinstr. 30KreuzbergBerlin (10965)
Kreuzberg gehört zu den vielseitigsten Bezirken Berlins. Hier kommen Menschen aus der ganzen Welt zusammen: die jungen Wilden aus Kunst und Kultur, die digitale Bohème der Start-up Szene sowie Entrepreneure jeden Alters mit internationalem Background.
Dieser Mix der verschiedensten Strömungen macht Kreuzberg zum angesagten Place to be der Stadt.
Mittendrin: Viktoriapark (ca. 1,5 km von Kloedenstr. entfernt) und das Tempelhofer Feld (ca. 900 m von Kloedenstr. entfernt), die größte innerstädtische Freizeitfläche der Welt - ideal, um den Kopf in Windeseile freizubekommen vom Buzz der City. Direkt daran taucht man ein in den Bergmannkiez, eine der beliebtesten Lagen Kreuzbergs mit einer weitgehend intakten Gründerzeitbebauung.
Im direkten Wohnumfeld bieten schöne Cafés, trendige Bars, Top-Restaurants, typische Berliner Eckkneipen, originelle Läden für den täglichen Bedarf, diverse Supermärkte und die Marheineke-Markthalle viel Abwechslung. Im Sommer finden im Kiez verschiedene Straßenfeste statt, darunter das Bergmannstraßenfest, das Jazz-Liebhaber anzieht. Auch kleinere Flohmärkte und Kulturveranstaltungen sorgen für eine lebendige Atmosphäre.

Die ÖPNV-Anbindung ist durch die Nähe zu mehreren U-Bahn-Stationen (U-Bahnhof Mehringdamm U6 und U 7) und Buslinien ( 140, M19, N7) hervorragend. Auch Radfahrer sind bestens angebunden. Bis zum Gendarmenmarkt zum Beispiel sind es gerade mal 2,7 Kilometer, meist auf breitem Radweg.
Infrastruktur (im Umkreis von 5 km):
Apotheke, Lebensmittel-Discount, Allgemeinmediziner, Kindergarten, Grundschule, Realschule, Gymnasium, Gesamtschule, Öffentliche Verkehrsmittel

Weitere Informationen

Sonstiges Heizungsart: Zentralheizung
Energieträger: Gas

Sukzessive Sanierung des Hauses 2013-2023:

+ Fassade und Brennwerttherme: Sanierung und Modernisierung ca. 2023
+ Dachgeschossausbau: ca. 2018
+ Sanierung der Stränge, Hauselektrik, Keller und Innenhof: ca. 2014/2015
+ Es stehen keine Instandhaltungsmaßnahmen/Sonderumlagen an.

Für weitere Informationen und eine Besichtigung stehen wir Ihnen gerne zur Verfügung:

Angelika Lehmann & Anna Donets
0172 -391 99 99 & 0172 - 304 53 60





+ Der Verkauf erfolgt ohne zusätzliche Käuferprovision
++ Wir weisen darauf hin, dass die von uns zur Verfügung gestellten Objektinformationen, Unterlagen, etc. vom Verkäufer stammen. Eine Haftung für die Vollständigkeit oder Richtigkeit der Angaben können wir daher nicht übernehmen. Gerne unterstützen wir unseren Kund/innen dabei, die darin enthaltenen Objektinformationen und Angaben auf ihre Richtigkeit hin zu überprüfen. Alle Immobilienangebote sind freibleibend und vorbehaltlich Irrtümer, Zwischenverkauf- oder sonstiger Zwischenverwertung und Änderungen.

Makleranfragen nicht erwünscht. Nach § 7 UWG sind unaufgeforderte Kontaktaufnahmen durch Makler ohne ausdrückliche Einwilligung des Empfängers verboten!

ohne-makler (OM) ist weder Anbieter noch Vermittler der Immobilie. OM betreibt eine Plattform für Immobilieneigentümer, die unter anderem die gleichzeitige Veröffentlichung einzelner Inserate auf mehreren Immobilienportalen ermöglicht. Die Inhalte dieser Inserate werden ausschließlich von Dritten verantwortet. Für die Richtigkeit, Vollständigkeit oder Rechtmäßigkeit der Angaben übernimmt OM keine Haftung. Hinweise auf mögliche Rechtsverstöße können jederzeit gemeldet werden und werden nach Prüfung umgehend bearbeitet. Stichworte Anzahl der Schlafzimmer: 2, Anzahl der Badezimmer: 1, Bundesland: Berlin, 5 Etagen

Weitere Services

Lust auf eine Besichtigung?
Eine Frage zur Immobilie?
Nachricht hinzufügen
Mit der Nutzung der oben angegebenen Telefonnummer oder durch Klicken auf „Kontaktieren“ akzeptierst Du die Allgemeinen Nutzungsbedingungen, denen Du jederzeit widersprechen kannst. Weitere Informationen zum Datenschutz

Über den Anbieter

Humboldtstr. 25 A, 21509 Glinde
partner badge
Partnerschaft
Angebot vom EigentümerDein Kontakt

Weitere Unterlagen

Online-ID: 2683F1QHTDBL
Referenznummer: 367895
ohne-makler.net - Immobilien selbst vermarkten
ohne-makler.net - Immobilien selbst vermarkten
Nachricht hinzufügen
Mit der Nutzung der oben angegebenen Telefonnummer oder durch Klicken auf „Kontaktieren“ akzeptierst Du die Allgemeinen Nutzungsbedingungen, denen Du jederzeit widersprechen kannst. Weitere Informationen zum Datenschutz
MediumRectangleTop
MediumRectangleBottom
MediumRectangleTop
Wie zufrieden bist du mit dieser Seite (nicht mit der Immobilie selbst)?