Zur Vermietung steht eine attraktive Büro- und Praxisfläche im 1.OG in verkehrsgünstiger Lage. Diese durchdacht konzipierte Einheit eignet sich hervorragend für verschiedene geschäftliche Nutzungen und bietet die perfekte Grundlage für Ihren unternehmerischen Erfolg. Die großzügige Fläche von ca. 395 Quadratmetern ist hell und einladend gestaltet. Sie umfasst mehrere flexible Büro- bzw. Praxisräume. Der Bürokomplex hat eine zeitlose Fassade und helle Räume, welche eine angenehme Arbeitsatmosphäre ermöglichen.
Zusätzlich ist es möglich die Flächen aufzuteilen in eine große Fläche mit ca. 341 m² und eine kleinere Fläche mit ca. 54 m². Die Flächen können auch separat angemietet werden. Auch die größere Fläche von 341 m² könnte in sich noch einmal unterteilt werden. Somit können Flächen in verschiedenen Größen angeboten werden und Ihren Bedürfnissen angepasst werden. Sprechen Sie uns gerne hierauf an um Details zu besprechen.
Die Büroräume verfügen über einen Glasfaseranschluss und werden über Fernwärme beheizt. Bei Bedarf können mehrere Parkplätze zu je 30,00€/Monat, zzgl. MwSt. angemietet werden.
Merkmale
frei ab sofort
Bodenbelag: Teppich
In den Büros befinden sich Teppichböden, die WCs sind gefliest. Die Räume sind mit Holztüren ausgestattet. Durch den separaten Eingang sind die Räumlichkeiten von den anderen Büroflächen des Gebäudes getrennt. Das komplette Gebäude ist mit Kunstoffenstern mit Isolierverglasung ausgestattet. Durch die großen Fenster, wirken die Räume natürlich hell.
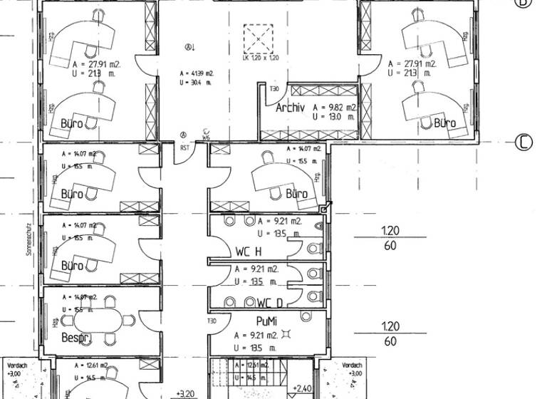
Grundrisse
Grundrisse
1 / 1
Realisiere Dein Projekt
Bausubstanz und Energie
Energieausweis
Endenergiebedarf (Wärme)
Baujahr2001
Zustand der ImmobilieGepflegt
Mietkosten
Nettomiete
3.555 €
Nebenkosten
990 €
Provision für Mieter
provisionsfrei
Kaution
10665 €10.665 €
Weitere Preisinformationen
Nettokaltmiete: 3.555,00 EUR
Lage
Langenwiedenweg 78, Werl (59457)
Die im Industriegebiet liegende Bürofläche bietet eine optimale Anbindung an die A44 in Richtung Dortmund, Kassel und an die A445 in Richtung Arnsberg. Die A1 und A2 sind ebenfalls in kurzer Zeit zu erreichen. Das Werler Zentrum liegt mit dem Auto ca. 5 Minuten entfernt. In naher Umgebung befinden sich Restaurants und Hotels. Der nächste Bahnhof ist mit dem Auto innerhalb von 2 Minuten zu erreichen und der nächst gelegene Flughafen in Dortmund ist 21 Minuten entfernt.
Weitere Informationen
Sonstiges
Wir weisen ausdrücklich darauf hin, dass wir trotz sorgfältiger Prüfung der uns gegenüber gemachten Aussagen sowie der zur Verfügung gestellten Unterlagen, für die von uns gemachten Angaben keine Haftung übernehmen. Alle Angaben beruhen auf Informationen des Eigentümers.
Stichworte
Stellplatz vorhanden