Version: 8.22.4Navigation überspringen
256.000 €
5,5 Zimmer  •  133 m²  •  156 m² Grundstück
Immowelt logo

Einfamilienhaus zum Kauf
256000 €
1.925 €/m²
5,5 Zimmer  •  133 m²  •  156 m² Grundstück

Geräumiges Einfamilienhaus mit vielen Zimmern in Tarrenz zu kaufen!

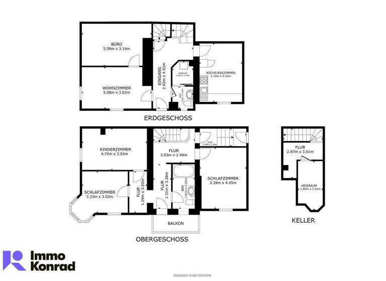
Dieses gepflegte Einfamilienhaus bietet auf ca. 133 m² Wohnfläche dank seiner durchdachten Raumaufteilung sowohl Familien, aber auch Unternehmen, die Wohnraum für ihre Mitarbeiter suchen, viel Platz. Insgesamt stehen 5,5 Zimmer auf zwei Ebenen sowie zusätzliche Nutzflächen im Keller zur Verfügung.

Im Erdgeschoss gelangt man über den Eingangsbereich in einen kleinen Flur, von dem aus das Wohnzimmer, ein Gäste-WC mit angrenzendem Waschraum sowie die Küche mit Esstisch erreichbar sind. Vom Wohnzimmer aus führt der Weg in ein weiteres Zimmer, das sich ideal als Büro, Gäste- oder Arbeitszimmer eignet. Über den Flur erreicht man außerdem die Treppe in den Keller, der zusätzlichen Stauraum sowie den Heizraum bietet.

Im Obergeschoss befinden sich zwei Schlafzimmer sowie ein Badezimmer mit Duschbadewanne und WC. Vom Flur aus gelangt man auf den Balkon, der einen Blick über die angrenzenden Felder bietet. Ein weiteres, helles Schlafzimmer am Ende des Flurs überzeugt mit einem schönen Erker, der eine besonders freundliche und wohnliche Atmosphäre schafft.

Merkmale

  • Bezug: sofort
  • 156 m² Grundstück
  • Keller
  • Gäste-WC
- Baujahr 1925
- Einfamilienhaus mit ca. 133 m² Wohnfläche
- Grundstück ca. 156 m²
- 3-fach Insektenschutz
- 5,5 Zimmer auf zwei Ebenen
- Keller und zusätzlicher Nutzflächenbereich vorhanden
- Erdgeschoss mit Eingangsbereich, WC, Waschraum, Wohnzimmer, separatem Büro, Küche mit Esstisch
- Obergeschoss mit drei Schlafzimmern, Badezimmer, Balkon

Grundrisse

Grundrisse
1 / 1

Virtueller Rundgang

3D tour

Realisiere Dein Projekt

Bausubstanz und Energie

Heizwärmebedarf (HWB)

E

Gesamtenergieeffizienz (fGEE)

C
  • Baujahr1928
  • Zustand der ImmobilieGepflegt
  • EnergieträgerÖl
Immowelt logo

Preisdetails

Kaufpreis
256000 €
1.924,81 €/m²
Provision für Käufer
3% zzgl. 20% USt. inkl. MwSt.

Lage

address-icon
Tarrenz (6464)
Der Anbieter hat die genaue Adresse nicht freigegeben
Die Lage in Tarrenz überzeugt zuerst durch kurze Wege und eine unkomplizierte Anbindung. Mehrere Bushaltestellen liegen in der direkten Umgebung, sodass der Alltag auch ohne Auto flexibel bleibt. Für längere Strecken ist der Bahnhof Imst-Pitztal in wenigen Kilometern erreichbar, und über die Anschlussstelle Imst an die Inntalautobahn A12 sind Innsbruck und das Tiroler Oberland gut angebunden. Der Flughafen Innsbruck ist mit dem Auto in rund 40 bis 50 Minuten erreichbar.

Im direkten Umfeld zeigt sich eine Infrastruktur, die den Tagesablauf angenehm leicht macht. Ein Supermarkt wie Spar, eine Bäckerei, Gasthäuser sowie medizinische Versorgung sind in der Nähe. Auch für Sportbegeisterte bietet die Umgebung viele Möglichkeiten wie Spaziergänge, Radtouren oder auch Bouldern in der Boulderhalle Tarrenz.

Weitere Informationen

Stichworte Nutzfläche: 165,00 m², Anzahl der Schlafzimmer: 3, Anzahl der Badezimmer: 2, Kellerfläche: 10,83 m², Dachbodenfläche: 22,50 m², Bundesland: Tirol, 2 Etagen, modernisiert: Fenster, Elektrik, Böden, Bad und Sanitär

Weitere Services

Lust auf eine Besichtigung?
Eine Frage zur Immobilie?
Nachricht hinzufügen
Mit der Nutzung der oben angegebenen Telefonnummer oder durch Klicken auf „Kontaktieren“ akzeptierst Du die Allgemeinen Nutzungsbedingungen, denen Du jederzeit widersprechen kannst. Weitere Informationen zum Datenschutz

Über den Anbieter

Immo Konrad
Immo KonradMaklerbüro
Grabenweg 68, 6020 Innbsbruck
partner badge
3 Jahre Partnerschaft
Herr Okan YilmazDein Kontakt
Online-ID: 2nu2s5d
Referenznummer: 1293
Immo Konrad
Immo Konrad
Bewertung: 3,4 von 5 Sternen
Nachricht hinzufügen
Mit der Nutzung der oben angegebenen Telefonnummer oder durch Klicken auf „Kontaktieren“ akzeptierst Du die Allgemeinen Nutzungsbedingungen, denen Du jederzeit widersprechen kannst. Weitere Informationen zum Datenschutz
Wie zufrieden bist du mit dieser Seite (nicht mit der Immobilie selbst)?