Version: 8.25.1Navigation überspringen
ohne-makler.net - Immobilien selbst vermarkten
525.000 €
2,5 Zimmer  •  65 m²  •  2. Geschoss

Wohnung zum Kauf • provisionsfrei
525000 €
8.077 €/m²
2,5 Zimmer  •  65 m²  •  2. Geschoss

Altbau-Erstbezug Torstraße - 2,5 Zimmer | 3,60 m Decken | Design-Sanierung

Diese außergewöhnlich hochwertig sanierte Altbauwohnung befindet sich im 2. Obergeschoss eines denkmalgeschützten Gründerzeithauses aus dem Jahr 1900 in der Torstraße in Berlin-Mitte. Die Wohnung beeindruckt sofort durch ihre spektakulären Deckenhöhen von ca. 360 cm und den restaurierten historischen Gipsstuck, der dem Objekt eine besondere Großzügigkeit und Eleganz verleiht. Auf ca. 65 m² wurde ein modernes Wohnkonzept umgesetzt, das den Charme eines Altbaus mit zeitgemäßer Gestaltung kombiniert. Der neu verlegte Fischgrätparkettboden aus Eiche sorgt für Wärme und eine hochwertige Atmosphäre. Vom Flur aus sind alle Räume perfekt strukturiert angeordnet: Zunächst ein praktischer Abstellraum, gefolgt vom stilvollen Gäste-WC mit Design-Tapete. Anschließend erreicht man den Hauswirtschaftsraum mit integriertem Waschmaschinenanschluss und viel Stauraum. Das große Badezimmer ist ein absolutes Highlight der Wohnung. Handgefertigte Zementfliesen, hochwertige Wandkeramik, ein Waschtisch von Duravit, schwarze Armaturen von Steinberg und ein eingelassener Duschbereich unter einem restaurierten Backsteinbogen schaffen ein exklusives, hotelähnliches Ambiente. Badewanne und großzügige Dusche befinden sich hier in einem harmonischen Gesamtdesign. Das ruhige Schlafzimmer bietet dank hoher Fenster und Stuckdecke eine angenehme Rückzugsatmosphäre. Am Ende des Flurs öffnet sich der lichtdurchflutete Wohn- und Küchenbereich, der mit viel Raumhöhe und Blick zur Hofseite überzeugt. Die gezeigte Küche ist Teil eines professionellen Home-Stagings und dient der besseren räumlichen Vorstellung; sämtliche Anschlüsse für eine individuelle Küchenlösung sind vorbereitet. Auch die gezeigten Möbel und Accessoires gehören nicht zum Kaufpreis, können auf Wunsch aber separat erworben werden. Eine neue Gasetagenheizung, hochwertige Markenprodukte und ein stimmiges Gesamtkonzept runden diese besondere Immobilie ab.
Diese Wohnung ist die perfekte Wahl für Käufer, die Design, hochwertige Sanierung und authentischen Altbaucharme im Herzen Berlins suchen.

Objektzustand: Erstbezug nach Sanierung

Merkmale

  • Bezug: sofort
  • Denkmalschutz-Afa
  • 2. Geschoss
  • Badezimmer: Badewanne, Bad mit Dusche
  • Keller
  • Bodenbelag: Fliesen, Parkett
Keller, Vollbad, Duschbad, Gäste-WC, Parkett, Fliesen, Sonstiges (s. Text)

Bemerkungen:
. Komplettsanierung 2025 - Erstbezug nach Sanierung
. Imposante Deckenhöhe ca. 360 cm mit restaurierten Gipsstuckelementen
. Neu verlegter Eiche-Fischgrätparkett (PARAT, Naturöl/Wachs)
. Hochwertige Gasetagenheizung (neu 2025)
. Denkmalgeschütztes Gründerzeithaus aus 1890 (Ensemble-Denkmalschutz)
. Großes Designer-Badezimmer mit:
- handgefertigten Zementfliesen
- Wandfliesen "Lume Bone Lux"
- Duravit Qatego Waschtisch
- schwarzen Steinberg-Armaturen
- Badewanne & großzügiger Dusche
- eingelassenem Duschbereich unter historischem Backsteinbogen
. Separate Gäste-Toilette mit hochwertiger Design Tapete von Hooked on Walls
. Hauswirtschaftsraum (HWR) mit Waschmaschinenanschluss & Stauraum
. Moderne neue elektrische Installationen & neue Lichtspots
. Hochwertige Holztüren mit schwarzen Beschlägen
. Praktischer Abstellraum direkt am Eingang
. Offener Wohn- und Küchenbereich zur Hofseite
. Gezeigte Küche ist Home-Staging - Anschlüsse für Einbauküche vorhanden
. Alle Möbel, Lampen & Dekorationen sind nicht im Kaufpreis enthalten, können aber auf Wunsch separat erworben werden
. Ruhiges Schlafzimmer mit Stuck, hohen Fenstern & edler Atmosphäre
. Kellerabteil vorhanden
. Fahrradstellplätze im Innenhof
. Besonders gefragte Lage in der berühmten Torstraße - mitten im Herzen von Berlin-Mitte

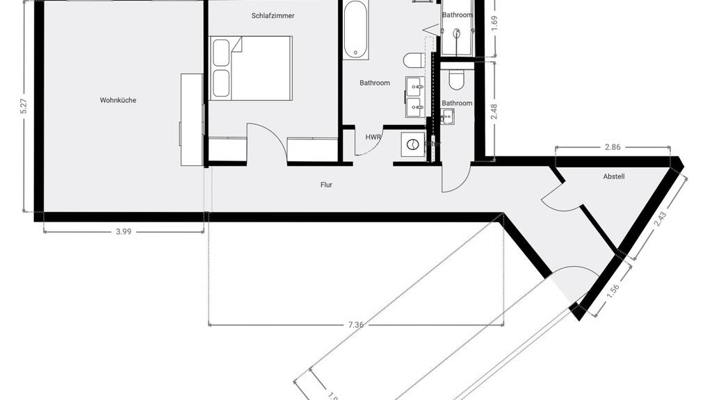
Grundrisse

Verschaffe dir einen genauen Überblick über die Raumaufteilung.selection_property_house-icon

Realisiere Dein Projekt

Bausubstanz und Energie

Energieausweis

D
  • Baujahr1900
  • Zustand der Immobilierenoviert / saniert
  • HeizungsartEtagenheizung
  • EnergieträgerGas
MediumRectangleTop

Preisdetails

Kaufpreis
525000 €
8.076,92 €/m²
Hausgeld
150 €
Provision für Käufer
provisionsfrei; keine Provision, courtagefrei
Geschätzte Gesamtkosten
567.000 €1
Kaufpreis
525.000 €
Notarkosten (1,5%)
7.875 €
Grunderwerbsteuer (6%)
31.500 €
Grundbucheintrag (0,5%)
2.625 €
1Der angezeigte Wert ist eine automatisch berechnete Schätzung von immowelt.
2Bei den Angaben handelt es sich um ortsübliche Werte. Individuelle Kosten können abweichen.

Lage

address-icon
Torstraße 220bMitteBerlin (10115)
Die Wohnung befindet sich in absoluter Bestlage von Berlin-Mitte, direkt an der berühmten Torstraße - einem der lebendigsten und begehrtesten Hotspots der Hauptstadt. Kaum eine Straße steht so sehr für das moderne, kreative und internationale Berlin wie die Torstraße: hier treffen Szene, Gastronomie, Design, Architektur und urbaner Lifestyle aufeinander.
In unmittelbarer Umgebung befinden sich trendige Cafés, hochwertige Restaurants, Bars, Concept Stores, Galerien und kleine Boutiquen - alles, was Berlin-Mitte heute ausmacht. Das Umfeld ist geprägt von historischem Altbaubestand, zeitgenössischer Architektur und einer einzigartigen kulturellen Vielfalt. Die Anbindung ist hervorragend: Mehrere Tram- und U-Bahnlinien (u. a. U8, U2, U6 sowie diverse Tramlinien) sind in wenigen Minuten zu Fuß erreichbar. Über den Alexanderplatz, Rosenthaler Platz oder Hackeschen Markt erreicht man sämtliche Knotenpunkte der Stadt in kürzester Zeit. Gleichzeitig bieten ruhige Seitenstraßen, begrünte Innenhöfe und zahlreiche kleine Parks in der Umgebung angenehme Rückzugsmöglichkeiten vom urbanen Leben. Die Torstraße zählt zu den Straßenzügen, die in den letzten Jahren eine enorme Aufwertung erfahren haben und heute als Premium-Lage für Eigentumswohnungen gelten - sowohl für Eigennutzer als auch für Kapitalanleger. Kurzum: Eine der begehrtesten, pulsierendsten und wertstabilsten Lagen Berlins - urban, authentisch, zentral und voller Charakter.
Infrastruktur (im Umkreis von 5 km):
Apotheke, Lebensmittel-Discount, Allgemeinmediziner, Kindergarten, Grundschule, Hauptschule, Realschule, Gymnasium, Gesamtschule, Öffentliche Verkehrsmittel

Weitere Informationen

Sonstiges Heizungsart: Etagenheizung
Energieträger: Gas

Hat dieses Angebot Ihr Interesse geweckt?

Dann freuen wir uns über Ihre Anfrage. Bitte nutzen Sie dafür das Kontaktformular oder rufen Sie uns direkt an, wenn Sie weitere Informationen wünschen oder einen Besichtigungstermin vereinbaren möchten.

Dieses Angebot erfolgt direkt vom Eigentümer und ist provisionsfrei.
Alle Angaben wurden nach bestem Wissen zusammengestellt. Eine Gewähr für die Vollständigkeit, Richtigkeit und Aktualität können wir jedoch nicht übernehmen.

Makleranfragen nicht erwünscht. Nach § 7 UWG sind unaufgeforderte Kontaktaufnahmen durch Makler ohne ausdrückliche Einwilligung des Empfängers verboten!

ohne-makler (OM) ist weder Anbieter noch Vermittler der Immobilie. OM betreibt eine Plattform für Immobilieneigentümer, die unter anderem die gleichzeitige Veröffentlichung einzelner Inserate auf mehreren Immobilienportalen ermöglicht. Die Inhalte dieser Inserate werden ausschließlich von Dritten verantwortet. Für die Richtigkeit, Vollständigkeit oder Rechtmäßigkeit der Angaben übernimmt OM keine Haftung. Hinweise auf mögliche Rechtsverstöße können jederzeit gemeldet werden und werden nach Prüfung umgehend bearbeitet. Stichworte Anzahl der Schlafzimmer: 1, Anzahl der Badezimmer: 1, Anzahl der separaten WCs: 1, Bundesland: Berlin, 5 Etagen

Weitere Services

Lust auf eine Besichtigung?
Eine Frage zur Immobilie?
Nachricht hinzufügen
Mit der Nutzung der oben angegebenen Telefonnummer oder durch Klicken auf „Kontaktieren“ akzeptierst Du die Allgemeinen Nutzungsbedingungen, denen Du jederzeit widersprechen kannst. Weitere Informationen zum Datenschutz

Über den Anbieter

Humboldtstr. 25 A, 21509 Glinde
partner badge
Partnerschaft
Privat von Tim AlbeckDein Kontakt
Keine Telefonnummer hinterlegt
Keine Telefonnummer hinterlegt
Online-ID: 26VJQWZ66AFG
Referenznummer: 443315
ohne-makler.net - Immobilien selbst vermarkten
ohne-makler.net - Immobilien selbst vermarkten
Nachricht hinzufügen
Mit der Nutzung der oben angegebenen Telefonnummer oder durch Klicken auf „Kontaktieren“ akzeptierst Du die Allgemeinen Nutzungsbedingungen, denen Du jederzeit widersprechen kannst. Weitere Informationen zum Datenschutz
MediumRectangleTop
MediumRectangleBottom
MediumRectangleTop
Wie zufrieden bist du mit dieser Seite (nicht mit der Immobilie selbst)?