Version: 8.22.4Navigation überspringen
16 €
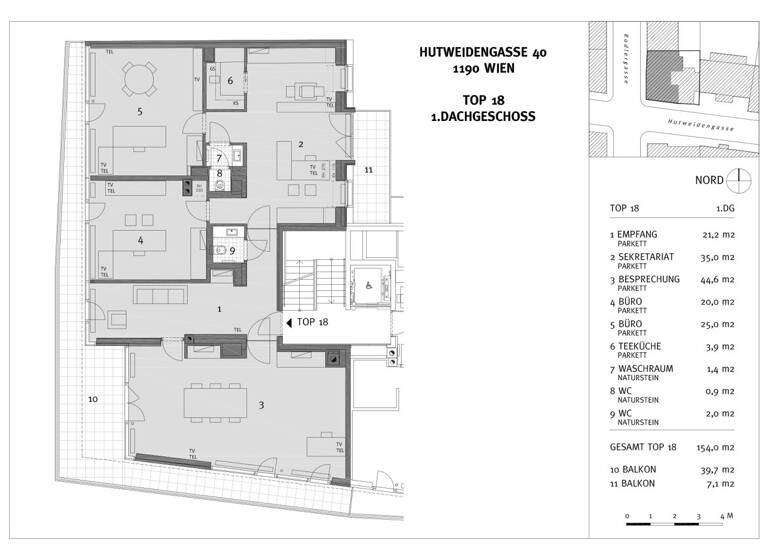
154 m² Bürofläche
Immowelt logo

Bürofläche zur Miete
16 Euro pro Quadratmeter
154 m² Bürofläche

Lichtdurchflutetes DG-Büro mit Balkon und Garage

Das zur Vermarktung stehende alarmgesicherte Büro liegt im 1. DG eines modernen Wohnhauses Hutweidengasse/Rodlergasse und umfasst ca. 154m². Das Gebäude verfügt über einen sehr repräsentativen und gepflegten Eingangsbereich und eine Tiefgarage.

Das moderne und gut ausgestattete Büro verfügt über eine effiziente Raumaufteilung und gliedert sich in einen Empfangsbereich mit ca. 20m², zwei kleinere Büros mit 20-25m², einen größeren Büro-/Besprechungsraum mit ca. 35m² und einen offenen Bereich mit ca. 35m².
Darüber hinaus verfügt das Büro über zwei Balkone mit in Summe ca. 47m² welche der Bürofläche exklusiv zugeteilt sind.
Das Büro ist sehr hell und würde sich neben einer Büronutzung auch für eine Arztpraxis eignen. Die moderne Grundausstattung umfasst u.a. eine strukturierte EDV- Verkabelung, eine Klimatisierung, eine hochwertig ausgestattete Küche als auch stilvolle Sanitärgruppen.
Des Weiteren verfügt die Top 18 über ein zugeteiltes großzügiges Kellerabteil.

Durch den in unmittelbarer Nähe gelegenen Billa Plus, sowie einigen Restaurants und Geschäften in der Krottenbachstraße und Obkirchergasse ist eine gehobene Nahversorgung gesichert. An das öffentliche Netz ist man durch die Schnellbahn S45 und Buslinie 35A gut angebunden.

Merkmale

  • Garage
- Parkettboden
- 2 WCs
- Klimatisierung
- Raumhohe Innentüren
- Küche
- Strukturierte EDV-Verkabelung
- Alarmanlage
- außenliegender Sonnenschutz
- großzügiges Kellerabteil
- barrierefrei
- ca. 47m² Balkon

Grundrisse

Grundrisse
1 / 1

Realisiere Dein Projekt

Bausubstanz und Energie

Heizwärmebedarf (HWB)

C

Gesamtenergieeffizienz (fGEE)

Der Anbieter hat keine Daten zum Energieausweis hinterlegt.
Immowelt logo

Mietkosten

Monatliche Miete
16 €/m²
Nicht in Gesamtmiete enthalten
Miete pro Stellplatz
150 €
Provision für Mieter
Bitte beachte, das Angebot kann bei Vertragsabschluss die Zahlung einer Provision beinhalten. Weitere Informationen erhältst Du vom Anbieter.
Kaution
keine Angabe
Weitere Preisinformationen
1 Garagenstellplatz, Miete: 150,00 EUR

Lage

address-icon
Wien (1190)
Der Anbieter hat die genaue Adresse nicht freigegeben
Verkehrsanbindung:
- U-Bahn: U4 Heiligenstadt; U4, U6 Spittelau
- S-Bahn: S45
- Buslinie: 35A

Weitere Informationen

Sonstiges Wir weisen darauf hin, dass zwischen dem Vermittler und dem Auftraggeber ein wirtschaftliches Naheverhältnis besteht. Der Vermittler ist als Doppelmakler tätig. Stichworte Garage vorhanden, Nutzfläche: 154,00 m², Bundesland: Wien

Weitere Services

Lust auf eine Besichtigung?
Eine Frage zur Immobilie?
Nachricht hinzufügen
Mit der Nutzung der oben angegebenen Telefonnummer oder durch Klicken auf „Kontaktieren“ akzeptierst Du die Allgemeinen Nutzungsbedingungen, denen Du jederzeit widersprechen kannst. Weitere Informationen zum Datenschutz

Über den Anbieter

Prinz-Eugen-Strasse 8-10, 1040 WIEN
partner badge
Partnerschaft
Herr Heinrich Resmann
Herr Heinrich ResmannDein Kontakt
Online-ID: 2lf8t5f
Referenznummer: 12122_2
EHL Gewerbeimmobilien GmbH
EHL Gewerbeimmobilien GmbH
Nachricht hinzufügen
Mit der Nutzung der oben angegebenen Telefonnummer oder durch Klicken auf „Kontaktieren“ akzeptierst Du die Allgemeinen Nutzungsbedingungen, denen Du jederzeit widersprechen kannst. Weitere Informationen zum Datenschutz
Wie zufrieden bist du mit dieser Seite (nicht mit der Immobilie selbst)?