Das Objekt befindet sich im Bezirk Berlin-Mitte. Auf rund 70.000 m² Bruttogeschossfläche entsteht hier ein Mix aus Büro-, Einzelhandels-, Gastronomie- und Hotelflächen. Das Gelände der historischen Schultheiss Brauerei erstrahlt wieder in neuem Glanz und wird als Stadtteilquartier zum Treffpunkt für Menschen aus dem Kiez und Umgebung.Die Bürofläche befindet sich in einem denkmalgeschützten Altbau in der historischen Remisengasse, die zum Schlendern und Entspannen einlädt. Das Mietobjekt wird umfassend saniert und bildet eine perfekte Kombination aus Alt und Neu. Sie bietet Raum für sowohl junge als auch etablierte Unternehmen.
The property is located in the Berlin-Mitte district. A mix of office, retail, restaurant and hotel space is being created here on a gross floor area of around 70,000 m². The site of the historic Schultheiss Brewery is once again shining in new splendor and, as a district quarter, is becoming a meeting place for people from the neighborhood and the surrounding area.The office space is located in a listed old building in the historic Remisengasse, which invites people to stroll and relax. The rental property is being extensively renovated and forms a perfect combination of old and new. It offers space for both young and established companies.
Merkmale
Bezug: 9 Monate
Bodenbelag: Parkett
Urban Flexibel Effizient Ausbau nach Mieterwunsch Openspace Parkett Kappendecke Highspeed Internet
Urban Flexible Efficient Expansion according to tenant requirements Openspace Parquet Chapel ceiling Highspeed Internet
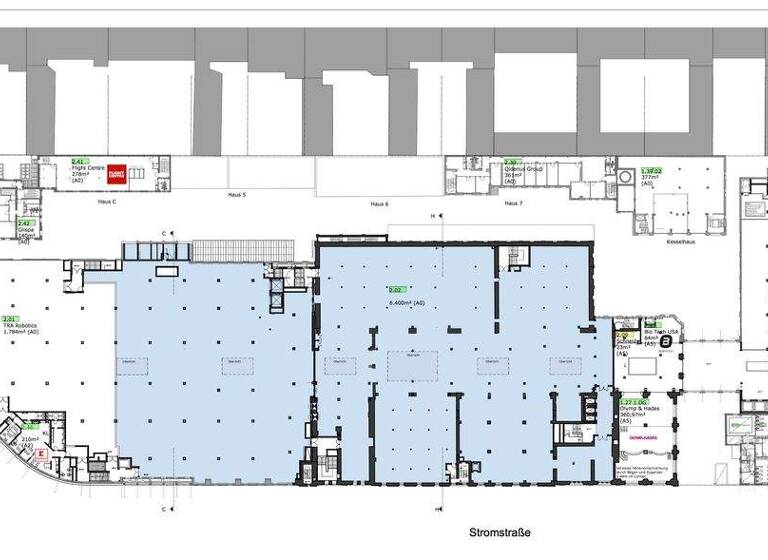
Grundrisse
Grundrisse
1 / 1
Realisiere Dein Projekt
Bausubstanz und Energie
Der Anbieter hat keine Informationen zum Energieverbrauch bereit gestellt.
Zustand der Immobilierenoviert / saniert
Mietkosten
Nettomiete zzgl. Nebenkosten
nicht angegeben
Nebenkosten
4 €
Provision fĂĽr Mieter
Bitte beachte, das Angebot kann bei Vertragsabschluss die Zahlung einer Provision beinhalten. Weitere Informationen erhältst Du vom Anbieter.
Kaution
keine Angabe
Weitere Preisinformationen
ab 27 EUR/qm
Lage
Moabit, Berlin (10559)
Der Anbieter hat die genaue Adresse nicht freigegeben
Das neue Schultheiss Quartier befindet sich nur wenige Minuten vom Hauptbahnhof entfernt. Öffentliche Verkehrsmittel wie S- und U-Bahn sowie diverse Buslinien sind direkt vor dem Objekt vorhanden. Der Anschluss an die A100 und den Flughafen Tegel sind innerhalb weniger Fahrminuten erreichbar.Darüber hinaus bietet der Food Court der neuen Shopping Mall im Schultheiss Quartier viele verschiedene Auswahlmöglichkeiten für eine abwechslungsreiche Mittagspause mit Kollegen. Auch die nahegelegene Arminius-Markthalle bietet viele Köstlichkeiten für einen kurzen Break.
The new Schultheiss Quartier is located only a few minutes from the main train station. Public transportation such as S-Bahn and U-Bahn as well as various bus lines are available directly in front of the property. The connection to the A100 and Tegel Airport can be reached within a few minutes' drive.In addition, the food court of the new shopping mall in Schultheiss Quartier offers many different choices for a varied lunch break with colleagues. The nearby Arminius Market Hall also offers many delicacies for a short break.
Weitere Informationen
Sonstiges
Bitte beachten Sie unsere AGB: Dieses Angebot ist provisionspflichtig!
- EG (Haus E) = 752qm , teilbar ab 68 qm
- 1. OG (Haus E) = 440 qm, teilbar ab 55 qm
- 1. OG = 2.073,50 qm Bezug nach 6 Monaten
- EG - 1. OG = 7.235 qm
- Kesselhaus UG- 5. OG = 1.910,00 qm
Haus 5 und 6 EG = 550 qm
Haus 7 EG - 3. OG = 838 qm
Please note our general terms and conditions: This offer is subject to commission!