

H&R Immobilien-Verwaltungs-GmbH
Firma H+P Projekt eGbR
022 ···
Nr. anzeigenPreise & Kosten
Provision für Käufer
provisionsfrei
Lage
Schlebusch ist ein idyllischer Stadtteil im Osten von Leverkusen. Es gilt als sicherer, ruhiger und familienfreundlicher Wohnort mit hoher Lebensqualität. Die unmittelbare Nähe zur Natur, die zu Fuß erreichbaren Einkaufs- und Freizeitmöglichkeiten, alle wichtigen Arztpraxen und das Klinikum Leverkusen machen Schlebusch zum...
Die Wohnung
Wohnungslage
Erdgeschoss
Wohnanlage
Energie & Heizung
Warum sehe ich diese Anzeige? – Du siehst diese Anzeige basierend auf Ihrer Navigation auf unserer Website und den Suchkriterien, die du verwendet hast.
Energieausweistyp
Bedarfsausweis
Gebäudetyp
Wohngebäude
Wesentliche Energieträger
Luftwärmepumpe
Gültigkeit
22.05.2025 bis 21.05.2035
Endenergiebedarf
18,80 kWh/(m²·a)
Weitere Energiedaten
Heizungsart
Luft-/Wasser-Wärmepumpe, Zentralheizung
Details
Objektbeschreibung
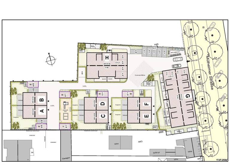
In zentraler Lage von Leverkusen-Schlebusch entsteht ein grünes Wohnquartier mit insgesamt 3 Doppelhäusern und 2 Mehrfamilienhäusern.
Die hier angebotene Wohnung befindet sich in einem der beiden Mehrfamilienhäuser (Haus H) mit 5 hochwertigen Neubauwohnungen. Die Wohnungen haben eine Größe von 2 bis 3 Zimmern und bieten...
Ausstattung
. Ausstattung und Raumgestaltung sind individuell anpassbar
. Hauswirtschaftsraum innerhalb der Wohnung
. modernes Heizsystem mit Wärmepumpe und Photovoltaikanlage
. Fußbodenheizung mit Einzelraumsteuerung
. Fenster mit Kunststoffrahmen und Dreifachverglasung
. elektrische Rollläden an allen Fenstern
. Bäder...
Preisinformation
1 Stellplatz
Weitere Informationen
Sonstiges
Hinweis: Alle Angaben wurden mit großer Sorgfalt auf Basis der vom Projektleiter erhaltenen Informationen zusammengestellt. Eine Haftung für Irrtümer oder fehlerhafte Angaben kann nicht übernommen werden. Wir bitten zu beachten, dass sich das Projekt noch in der Planungsphase befindet und die verwendeten...
Anbieter der Immobilie
H&R Immobilien-Verwaltungs-GmbH
Steinbrecher Weg 8a, 51427 Bergisch Gladbach

Online-ID: 2mzwr56
Referenznummer: Haus H - W. 1
Finde Angebote wie dieses
Hier geht es zu unserem Impressum, den Allgemeinen Geschäftsbedingungen, den Hinweisen zum Datenschutz und nutzungsbasierter Online-Werbung.