Version: 8.25.1Navigation überspringen
Mietkosten auf Anfrage
233,4 m² Bürofläche  •  teilbar ab 233,4 m²
Immowelt logo

Bürofläche zur Miete • provisionsfrei
Mietkosten auf Anfrage
233,4 m² Bürofläche  •  teilbar ab 233,4 m²

antaris Immobilien GmbH ** Attraktive Büroflächen für viele Branchen geeignet! **

Der Bürokomplex überzeugt durch seine zeitgemäße Ausstattung, große Fensterfronten und eine lichtdurchflutete Arbeitsumgebung. Die Räumlichkeiten sind flexibel gestaltbar, sodass individuelle Nutzungskonzepte realisiert werden können. Der Gebäudekomplex verfügt über mehrere Treppenhäuser sowie Personen-aufzüge, die einen bequemen Zugang zu allen Einheiten ermöglichen.

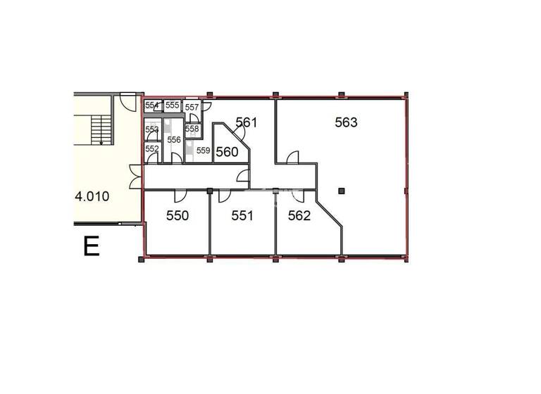
Im Dachgeschoss des attraktiven Bürogebäudes steht aktuell eine grossräumige Büroeinheit mit ca. 233,43 m² zur Vermietung.
Die Räumlichkeiten werden derzeit durch den Eigentümer saniert. Mieterwünsche können gern berücksichtigt werden. Die Mietfläche vefrügt über 2 Teeküchenanschlüsse und mehrere WC-Bereiche.

weitere verfügbare Flächen in diesem Objekt:

EG Einheit mit ca. 220,67 m² - ab sofort
2.OG Einheit mit ca. 120,04 m² - ab 01.01.26
DG Einheit mit ca. 222,00 m² - ab sofort
DG Einheit mit ca. 220,71 m² - ab sofort


Die Büroräume bieten eine angenehme Arbeitsatmosphäre und eine effiziente Raumaufteilung. Die Leichtbauweise der Büroräume erlaubt in der Regel eine flexible Raumgestaltung. Die technische Infrastruktur umfasst eine moderne Verkabelung, gepflegte Teppichböden sowie eine helle Beleuchtung. Vereinzelt sind Außenjalousien vorhanden, die zusätzlichen Sonnenschutz bieten. Die Mieteinheiten sind größtenteils mit Teeküchenanschlüssen ausgestattet und verfügen über getrennte WC-Bereiche.

Innerhalb einer Bürogemeinschaft sind außerdem Einzelbüros ab ca. 20,00 m² bis zu 40,00 m² verfügbar. Zahlreiche Sanitäreinheiten und moderne Teeküchen sind in den Treppenhauskernen angeordnet und werden von den Mietern gemeinschaftlich genutzt.

Stellplätze stehen auf dem Grundstück ebenfalls zur Anmietung zur Verfügung.

Energieausweis vorhanden: ja
Energiekennwert: 81,00 kWh(m²-a)
Energieeffizienzklasse: C
Energieträger: Erdgas schwer
Ausstelldatum: 15.03.2018
Art des Energieausweises: Verbrauch
Baujahr technische Anlage: 1995

Merkmale

  • Einbauküche
  • Personenaufzug
  • Außen-Stellplatz
  • Kantine
  • Raumaufteilung flexibel
  • Bodenbelag: Teppich

Grundrisse

Grundrisse
1 / 1

Realisiere Dein Projekt

Bausubstanz und Energie

Energieausweis

Endenergieverbrauch (Wärme)

  • Baujahr1995
Immowelt logo

Mietkosten

Miete auf Anfrage
Provision für Mieter
provisionsfrei; mieterprovisionsfrei
Kaution
keine Angabe

Lage

address-icon
LinderbachErfurt (99099)
Der Anbieter hat die genaue Adresse nicht freigegeben
Der Bürokomplex befindet sich in einer der gefragtesten Geschäfts- und Handelsadressen Erfurts. Durch die direkte Anbindung an die Nord-Süd-Tangente ist das Objekt sowohl mit dem Auto als auch mit öffentlichen Verkehrsmitteln optimal erreichbar. In unmittelbarer Nähe befinden sich die Bundesstraßen 4 und 7, was eine schnelle Verbindung in alle Richtungen ermöglicht. Eine Haltestelle des öffentlichen Nahverkehrs liegt direkt am Objekt.

Das Areal ist von einer pulsierenden Geschäftsatmosphäre geprägt und bietet eine Vielzahl an gastronomischen und kulturellen Einrichtungen. Die moderne Architektur des Gebäudes fügt sich harmonisch in das dynamische Umfeld ein und sorgt für ein attraktives Arbeitsumfeld.

Weitere Informationen

Sonstiges Provision
Der Maklervertrag mit der antaris Immobilien GmbH kommt entweder durch eine schriftliche Vereinbarung oder durch die Inanspruchnahme unserer Maklertätigkeit auf Basis der Anforderung des Objekt-Exposés und der beinhalteten Bestimmungen zustande (siehe auch AGB). Abweichend von unseren Allgemeinen Geschäftsbedingungen ist das Objekt für den Käufer bzw. Mieter provisionsfrei.

Widerrufsrecht
Sie können Ihre Vertragserklärung innerhalb von 14 Tagen ohne Angaben von Gründen in Textform (z.B. Brief, E-Mail) widerrufen. Die Frist beginnt nach Erhalt dieser Belehrung in Textform, jedoch nicht vor Vertragsabschluss und auch nicht vor Erfüllung unserer Informationspflichten gem. Art. 246 § 2 i.V.m. § 1 Abs. 1 und 2 EGBGB. Zur Wahrung der Widerrufsfrist genügt die rechtzeitige Absendung des Widerrufs. Im Falle eines wirksamen Widerrufs sind die beiderseits empfangener Leistungen zurück zu gewähren und ggf. bezogene Nutzungen (z.B. Zinsen) herauszugeben. Können Sie uns die empfangenen Leistungen sowie Nutzungen (z.B. Gebrauchsvorteile) nicht oder teilweise nicht oder nur in verschlechtertem Zustand zurückgewähren bzw. herausgeben, müssen Sie uns insoweit Wertersatz leisten. Dies kann dazu führen, dass Sie die vertraglichen Zahlungsverpflichtungen für den Zeitraum bis zum Widerruf gleichwohl erfüllen müssen. Verpflichtungen zur Erstattung von Zahlungen müssen innerhalb von 30 Tagen erfüllt werden.
Die Frist beginnt für Sie mit der Absendung Ihrer Widerrufserklärung, für uns mit deren Empfang. Das Widerrufsrecht erlischt vorzeitig, wenn der Vertrag von beiden Seiten auf Ihren ausdrücklichen Wunsch vollständig erfüllt ist, bevor Sie Ihr Widerrufsrecht ausgeübt haben.

Weitere Angebote finden Sie unter www.antaris-immobilien.de! Stichworte Sonstiges: Getrennte Damen- und Herren-WCs

Weitere Services

Lust auf eine Besichtigung?
Eine Frage zur Immobilie?
Mit einer persönlichen Nachricht hast du bessere Chancen auf eine Antwort.
Mit der Nutzung der oben angegebenen Telefonnummer oder durch Klicken auf „Kontaktieren“ akzeptierst Du die Allgemeinen Nutzungsbedingungen, denen Du jederzeit widersprechen kannst. Weitere Informationen zum Datenschutz

Über den Anbieter

Juri-Gagarin-Ring 96-98, 99084 Erfurt
partner badge
6 Jahre Partnerschaft
Frau Sandy ThorwirthDein Kontakt
Online-ID: 259UHGYI6TEE
Referenznummer: VMB57/G1/Eh13
Antaris Immobilien GmbH
Antaris Immobilien GmbH
Bewertung: 4,2 von 5 Sternen
Mit einer persönlichen Nachricht hast du bessere Chancen auf eine Antwort.
Mit der Nutzung der oben angegebenen Telefonnummer oder durch Klicken auf „Kontaktieren“ akzeptierst Du die Allgemeinen Nutzungsbedingungen, denen Du jederzeit widersprechen kannst. Weitere Informationen zum Datenschutz
Wie zufrieden bist du mit dieser Seite (nicht mit der Immobilie selbst)?