Version: 8.26.0Navigation überspringen
320.000 €
Immowelt logo

Grundstück zum Kauf
320000 €

Bauland Icici, Opatija - Okolica, 1.368m2

Ein Baugrundstück von 1368 m2 in Icici steht zum Verkauf, mit einer Baugenehmigung und bezahlten Versorgungsleistungen.

Das Grundstück befindet sich in einer wunderschönen Lage, in einer Sackgasse, umgeben von Grün, Natur und Ruhe, nur 10 Minuten zu Fuß vom Meer und dem Strand (weniger als 5 Minuten mit dem Auto).
Das Zentrum von Opatija ist 10 Minuten mit dem Auto entfernt.

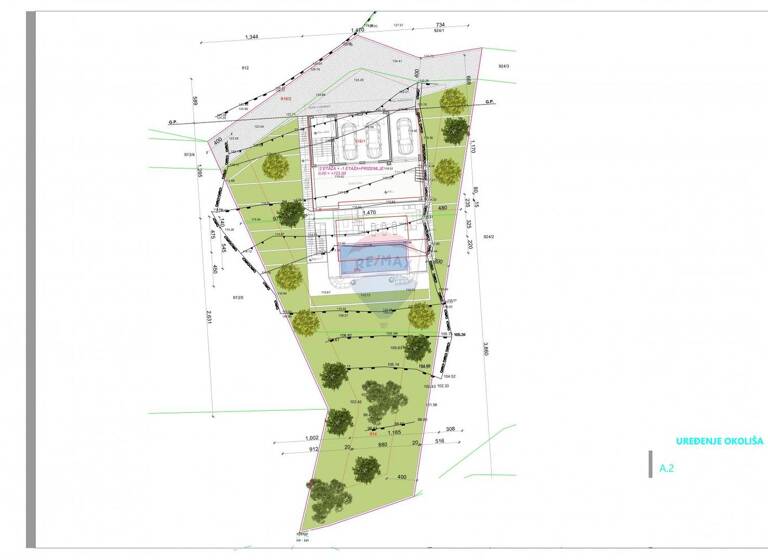
Das Grundstück verfügt über ein Vorprojekt, eine gültige Standortgenehmigung, ein Gesamtprojekt, eine gültige Baugenehmigung und bezahlte Nebenkosten für ein individuelles Wohngebäude (Villa) mit einem Swimmingpool und einem Nebengebäude.
Die Villa hat ein modernes Design, elegante und einfache Linien mit grosszügigen Glaswänden.
Die Villa hat eine Bruttofläche von 363,31 m2, d.h. 287,5 m2 Nettofläche, und erstreckt sich über 3 Etagen.
Von jeder Etage und auch vom Infinity-Pool (Überlauf) aus hat man einen freien Blick auf das Meer und die Inseln.

Erdgeschoss: Eingangshalle, Garagenaufgang (61,84 m2) + Außenparkplatz und Gründach (97,07 m2)
Stock -1: 3 Schlafzimmer, 2 Bäder, Garderobe, Abstellraum, Flur, Treppenhaus (107,71 m2) + Terrasse 43,91 m2
Stock -2: Wohnzimmer mit Küche und Esszimmer, Arbeitszimmer, Bad, Waschküche, Hauswirtschaftsraum, Abstellraum unter der Treppe, Eingangshalle und Flur (121,59 m2) + Terrasse 92,40 m2, überdachte Terrasse 17,05 m2 und Schwimmbad 33 m2

Nebengebäude: Taverne, Poolausstattung und Toilette (44,63 m2) + Terrasse 74,08 m2.

Dieses Grundstück ist ideal für diejenigen, die Lebensqualität zu schätzen wissen und in der Nähe des Meeres leben wollen, während sie gleichzeitig Ruhe und einen schönen Blick auf das Meer genießen.

Wenn Sie auf der Suche nach einem Grundstück für den Bau eines Eigenheims oder für eine Investition sind, wird dieses Grundstück alle Ihre Erwartungen erfüllen.

Vjeran Saina
Prodajni predstavnik
Mob: +385 91 641 7001
Tel: +385 51 551 871
Licenca: 191/2019
E-mail: v.saina@remax-opatija.hr
remax-centarnekretnina.com

ID CODE: 300421024-667

Grundrisse

Grundrisse
1 / 13
Immowelt logo

Preisdetails

Kaufpreis
320000 €
Provision für Käufer
Bitte beachte, das Angebot beinhaltet bei Vertragsabschluss die Zahlung einer Provision. Weitere Informationen erhältst Du vom Anbieter.

Lage

address-icon
Opatija - Okolica (51410)
Der Anbieter hat die genaue Adresse nicht freigegeben

Weitere Informationen

Stichworte Gesamtfläche: 1.368,00 m², Nebenzentrumslage

Weitere Services

Lust auf eine Besichtigung?
Eine Frage zur Immobilie?
Nachricht hinzufügen
Mit der Nutzung der oben angegebenen Telefonnummer oder durch Klicken auf „Kontaktieren“ akzeptierst Du die Allgemeinen Nutzungsbedingungen, denen Du jederzeit widersprechen kannst. Weitere Informationen zum Datenschutz

Über den Anbieter

Krešimirova 12A, 51000 RIJEKA
Remax Centar nekretninaDein Kontakt
Online-ID: 24VNGEBAKS81
Referenznummer: 300421024-667
Wie zufrieden bist du mit dieser Seite (nicht mit der Immobilie selbst)?