EHL Immobilien GmbH

Frau Helena Rohrauer

Einzigartige Wohnatmosphäre im grünen WILDGARTEN

€ 990
Gesamtmiete inkl. BK
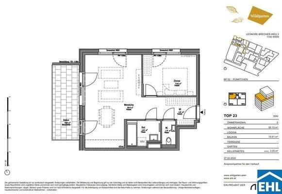
50,13 m²
Wohnfläche ca.
2
Zimmer

Der Anbieter dieses Objekts hat gegenüber der AVIV Germany GmbH als Betreiber dieses Online-Marktplatzes erklärt, nicht als Unternehmer im Sinne des § 1 KSchG zu handeln. Die im Verbraucherschutzrecht der Union verankerten Verbraucherrechte (insbesondere Informationspflichten und Rücktritts- bzw. Widerrufsrechte) finden auf den Vertrag zwischen dem Anbieter des Objekts und Ihnen (dem Interessenten) keine Anwendung.

Gewerblicher Anbieter

Der Anbieter dieses Objekts hat gegenüber der AVIV Germany GmbH als Betreiber dieses Online-Marktplatzes erklärt, als Unternehmer im Sinne des § 1 KSchG zu handeln.

AdresseLeonore-Brecher-Weg
1120 Wien 
(Liesing)
Auf Karte ansehen

Preise & Kosten

Gesamtmiete

inkl. Betriebskosten

€ 990
Nettokaltmiete € 779,19 Betriebskosten € 120,81

Kaution

2.970,00 €

Provision für Mieter

Gemäß Erstauftraggeberprinzip bezahlt der Abgeber die Provision.

Lage

Die Wohnung

Wohnungslage

5. Geschoss

Bezug

ab sofort

  • Bad mit Wanne
  • Balkon
  • Einbauküche, offene Küche
  • Böden: Fliesenboden, Parkett
  • Zustand: gepflegt

Wohnanlage

  • Baujahr: 2020
  • Zustand: Neubau
  • Personenaufzug

Energie & Heizung

Heizwärmebedarf (HWB)

B

28,04 kWh/(m²·a)

Gesamtenergieeffizienz (fGEE)

A

0,70

Weitere Energiedaten

Energieträger

Fernwärme

Heizungsart

Fußbodenheizung

Details

Objektbeschreibung

WOHNQUARTIER WILDGARTEN - Wohnen auf der Sonnenseite Wiens direkt am Rosenhügel

Dieses großartige Wohnprojekt im 1120 Wiener Gemeindebezirk zeichnet sich sowohl durch die ruhige und naturverbundene Lage in der Umgebung des Lainzer Tiergartens und Schloss Schönbrunn als auch durch die Nähe zur Innenstadt aus. Auf...

Mehr anzeigen

Preisinformation

Nettokaltmiete: 779,19 EUR

Weitere Informationen

Sonstiges

Video - https://download.ehl.at/hLngW6s8

Stichworte
West-Balkon/Terrasse, Anzahl der Badezimmer: 1, Anzahl der separaten WCs: 1, Anzahl Balkone: 1, Balkon-Terrassen-Fläche: 10,61 m², Kellerfläche: 3,05 m², Bundesland: Wien, Wohnungsnr.: 23

Dokumente

file_pdfLagereportangle_rightfile_pdfDokument 1angle_right

Anbieter der Immobilie

Partner

EHL Immobilien GmbH

im Durchschnitt  4,50  Sterne
(bei 13 Bewertungen)

Prinz-Eugen-Straße 8-10, 1040 WIEN

user

Frau Helena Rohrauer

Dein Ansprechpartner

Anbieter-Website Anbieter-Profil Anbieter-Impressum

Online-ID: 2m4ua5x

Referenznummer: OBGC20200819170552000ca9e627381

Finde Angebote wie dieses

imageimageimage

Hier geht es zu unserem Impressum, den Allgemeinen Geschäftsbedingungen, den Hinweisen zum Datenschutz und nutzungsbasierter Online-Werbung.