Version: 8.26.0Navigation überspringen
Hechler & Twachtmann Immobilien GmbH
665 €
53 m² Bürofläche

Bürofläche zur Miete
665 €
53 m² Bürofläche

Büroräume zentral in Stuhr - Moordeich!

Diese geräumige Büroeinheit befindet sich im Erdgeschoss eines gepflegten Geschäftshauses in zentraler Lage von Stuhr - Moordeich und in direkter Nähe zum Autobahndreieck A1/A28. Ab 2025 befindet sich in ca. 100 Meter Entfernung eine Straßenbahnhaltestelle. Die Einheit ist in einem gepflegten Zustand und steht ab sofort zur Verfügung!

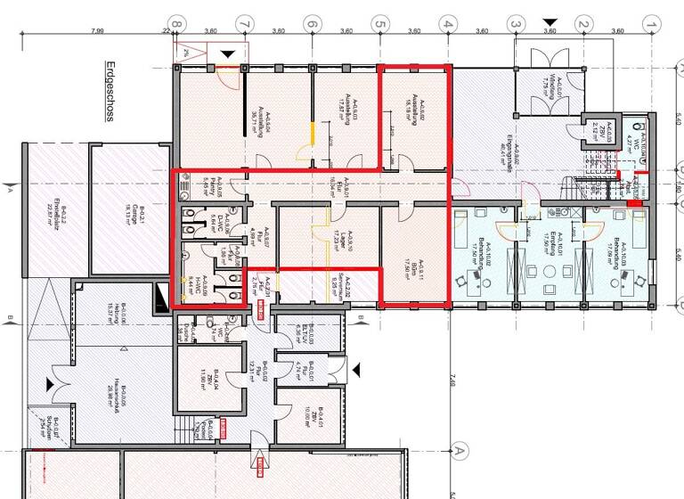
Über einen mit Natursteinen ausgestatteten, ansprechenden Eingangsbereich/Treppenhaus ist die Büroeinheit mit rund ca. 86,00 m² zu erreichen. Ein großer, langer Flur, aus dem alle Räume zu erreichen sind, empfängt den Besucher. Es stehen drei helle Büroräume mit Größen von je ca. 17 m² zur Verfügung. Ebenfalls ist ein Lagerraum vorhanden.

Aktuell ist keine Einbauküche vorhanden, Anschlüsse sind jedoch vorhanden. Darüber hinaus steht Ihnen ein frisch modernisiertes WC zur Verfügung. Die Toiletten werden als Gemeinschaftsfläche vermietet und müssen sich mit dem Mieter der restlichen Fläche geteilt werden.

Die Einheit ist mit Vinyl und Fliesen ausgestattet und alle Wände sind weiß gestrichen.

Auf dem Grundstück stehen diverse Pkw-Stellplätze für die Allgemeinheit zur Verfügung.

Die Büroeinheit ist barrierefrei zu erreichen.

Merkmale

  • Bezug: Sofort.
  • Erdgeschoss
  • Gäste-WC
  • Bodenbelag: Fliesen, Laminat
- drei Büroräume
- Küche auf Wunsch möglich
- frisch modernisiertes WC (Gemeinschaftsfläche)
- grauer Vinylboden und Fliesen
- Wände Raufaser weiß
- weiße Kunststofffenster
- elektrische Jalousien
- CAT-7-EDV Verkabelung
- Stellplätze auf dem Grundstück
- Ölzentralheizung

Grundrisse

Grundrisse
1 / 1

Bausubstanz und Energie

Energieausweis

Endenergieverbrauch (Wärme)

Endenergieverbrauch (Strom)

  • Baujahr1973
  • Zustand der ImmobilieGepflegt
MediumRectangleTop

Mietkosten

Warmmiete
1.040 €
Nettomiete
665 €
Nebenkosten
375 €
Heizkosten
in Warmmiete enthalten
Provision für Mieter
3,57 % inkl. MwSt. zzgl. MwSt.
Kaution
1995 €
Weitere Preisinformationen
Nettokaltmiete: 665,00 EUR

Lage

address-icon
MoordeichStuhr (28816)
Der Anbieter hat die genaue Adresse nicht freigegeben
Ideal gelegen für Firmen, unweit von Bremen, erweist sich die Gemeinde Stuhr als angenehmer Standort. Der Ortsteil Moordeich grenzt direkt an die Landesgrenze zu Bremen, Stadtteil Huchting.

Das Wohn- und Geschäftshauses befindet sich in hinterer Bebauung der Moordeicher Landstraße und künftig in direkter Nähe zur Straßenbahnhaltestelle, jedoch bereits jetzt gut angebunden durch die BSAG.

Weitere Informationen

Sonstiges Es liegt ein Energieverbrauchsausweis vor.
Dieser ist gültig bis 27.6.2033.
Endenergieverbrauch für die Wärme beträgt 132.00 kwh/(m²*a).
Endenergieverbrauch für den Strom beträgt 25.60 kwh/(m²*a).
Wesentlicher Energieträger der Heizung ist Öl.

Bei den Nebenkosten handelt es sich um eine Pauschale, da die Kosten nicht getrennt ablesbar sind. Strom ist in der Nebenkostenpauschale enthalten.

Die Räumlichkeiten "Ausstellung" gehören nur zur mietbaren Fläche.

Bitte beachten Sie, dass für die Anmietung dieser Immobilie auf Wunsch des Vermieters folgende Voraussetzungen gelten:

- Mindestvertragslaufzeit von 2 Jahren mit Verlängerungsoption
- Nachweis über positive Bonität (durch Vorlage aktueller BWA)
- bei Neugründungen ggf. erhöhte Kaution nach Absprache
- keine negativen Schufa-Einträge

Wir bitten um Ihr Verständnis für diese Vorgaben, vielen Dank!

SCHON GEWUSST?
Wir veröffentlichen unsere Immobilienangebote auf unserer Website bereits bis zu einer Woche vor der Vermarktung in den bekannten Immobilien-Portalen. Dies findet - falls noch erforderlich - erst später statt.

Sie möchten künftig kein neues Angebot mehr verpassen? Ein Anruf oder eine E-Mail mit Ihrem Suchwunsch genügt. Als registrierter Kunde erhalten Sie alle Exposés zu passenden Immobilien bereits VOR offiziellem Vermarktungsstart!

0421-95700810, anfrage@hechler-twachtmann.de
Dieser Service ist natürlich kostenfrei und unverbindlich.

Der Makler behält sich ausdrücklich vor, für beide Seiten vermittelnd (auch provisionspflichtig) tätig zu werden. Stichworte Lagerfläche: 17,00 m², Gesamtfläche: 86,00 m², Bundesland: Niedersachsen

Weitere Services

Lust auf eine Besichtigung?
Eine Frage zur Immobilie?
Mit einer persönlichen Nachricht hast du bessere Chancen auf eine Antwort.
Mit der Nutzung der oben angegebenen Telefonnummer oder durch Klicken auf „Kontaktieren“ akzeptierst Du die Allgemeinen Nutzungsbedingungen, denen Du jederzeit widersprechen kannst. Weitere Informationen zum Datenschutz

Über den Anbieter

Blockener Straße 4, 28816 Stuhr
partner badge
Partnerschaft
Frau Corinna HennekeDein Kontakt
Online-ID: 25G3B7TK88DA
Referenznummer: HC015M
MediumRectangleTop
Wie zufrieden bist du mit dieser Seite (nicht mit der Immobilie selbst)?